Részletes leírás
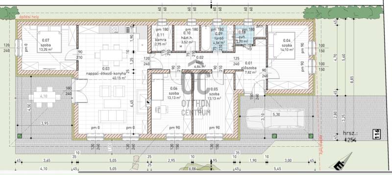
Kerepes szívében, a csendes és családbarát Szilasliget városrészben kínálunk eladásra egy új építésű, prémium kivitelezésű házat, amely ideális választás lehet családosok számára. Az ingatlan alapterülete 122 négyzetméter, és egy 717 négyzetméteres telken helyezkedik el. Elosztása: Amerikai konyhás nappali és 4 hálószoba, 2 fürdőszoba, kamra, háztartási helység, közlekedő, előszoba. A házhoz tartozó 17,8 négyzetméteres terasz tökéletes helyszín a családi összejövetelekhez vagy a pihenéshez. A kiváló állapotú ingatlan hőszivattyús fűtésrendszerrel redelkezik így a modern kényelmet és energiatakarékosságot egyaránt biztosítja. A motoros , szúnyoghálós redőnyök nemcsak a praktikusságot növelik, hanem a biztonságot is, így Ön és családja mindig biztonságban tudhatja otthonát. Ez az ingatlan nem csak egy otthon, hanem egy életstílus, amely a modern, exkluzív megoldások mellett a természet közelségét is magában hordozza. A világos, tágas terek és a gondosan megtervezett elrendezés minden igényt kielégít, legyen szó pihenésről vagy aktív családi programokról. Bármilyen kérdése merül fel az ingatlannal vagy a vásárlási folyamattal kapcsolatban, bizalommal kereshet minket. Szívesen állunk rendelkezésére, hogy segítsünk Önnek megtalálni álmai otthonát, ahol a család minden tagja boldogan élhet.

Pest megye, Kerepes
 

Ingatlan adatai
Irányár: 128 990 000 Ft
Típus: ház
Kategória: eladó
Alapterület: 122 m2
Fűtés: -
Állapota: új
Szobák száma: 5
Építés éve: 2026
Szintek száma: -
További adatok
Telekterület: 717 m2
Kert mérete: 717 m2
Erkély mérete: 18 m2
Felszereltség: -
Parkolás: -
Kilátás: -
Egyéb extrák:  
-
Hirdető adatai
Hirdető neve: Otthon Centrum
Kapcsolattartó: Szabó Tünde
Hirdető telefonszáma: +36 70 469 3446
Honlap: -

Üzenetet küldhet a hirdetőnek:
Az Ön neve:
Az Ön e-mail címe:
Üzenet: