Részletes leírás
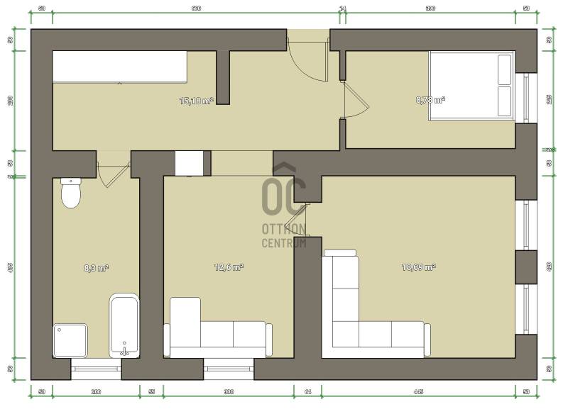
Paraméterek:- belső hasznos alapterület 63nm, - vegyesfalazatú, vályog és tégla falazat,- 2 külön nyíló szoba, + nappali,- konvektorok és kandalló biztosítja a fűtést,- a konyhai részen új vízvezetékek vannak,- a villanyvezetékek felújítása megtörtént,- 926nm teljesen körbekerített telek.Az ingatlanhoz hozzá lett építve kb 30nm plusz helyiség, ami a főépülettel összebontva, tovább növeli a lakóteret.Irodánkban bankfüggetlen hitelközvetítéssel állunk ügyfeleink rendelkezésére!A hirdetésben szereplő információk a megbízótól származnak, azért az iroda felelősséget nem vállal.Ez az ingatlan a \"Felező csomag\" megbízási portfólióhoz tartozik. Részletek az Otthon Centrum weboldalán.

Pest megye, Abony
 

Ingatlan adatai
Irányár: 32 000 000 Ft
Típus: ház
Kategória: eladó
Alapterület: 63 m2
Fűtés: gáz (konvektor)
Állapota: -
Szobák száma: 3
Építés éve: 1960
Szintek száma: -
További adatok
Telekterület: 926 m2
Kert mérete: 926 m2
Erkély mérete: -
Felszereltség: -
Parkolás: -
Kilátás: -
Egyéb extrák:  
-
Hirdető adatai
Hirdető neve: Otthon Centrum
Kapcsolattartó: Rimóczi Ágnes
Hirdető telefonszáma: +36 70 461 9121
Honlap: -

Üzenetet küldhet a hirdetőnek:
Az Ön neve:
Az Ön e-mail címe:
Üzenet: