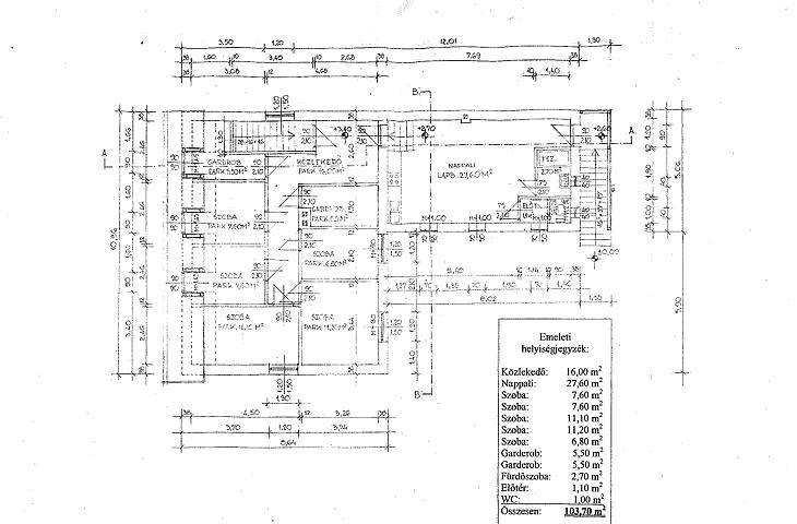
Részletes leírás
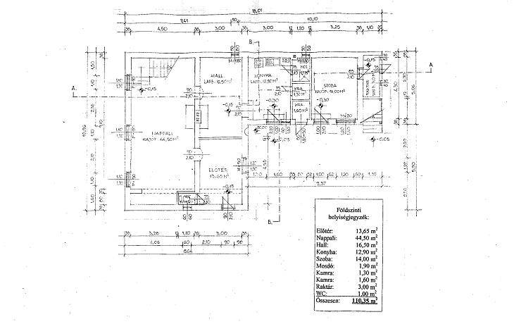
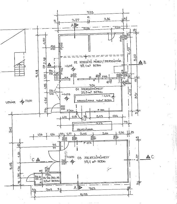
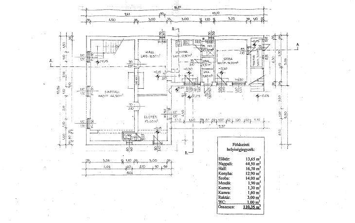
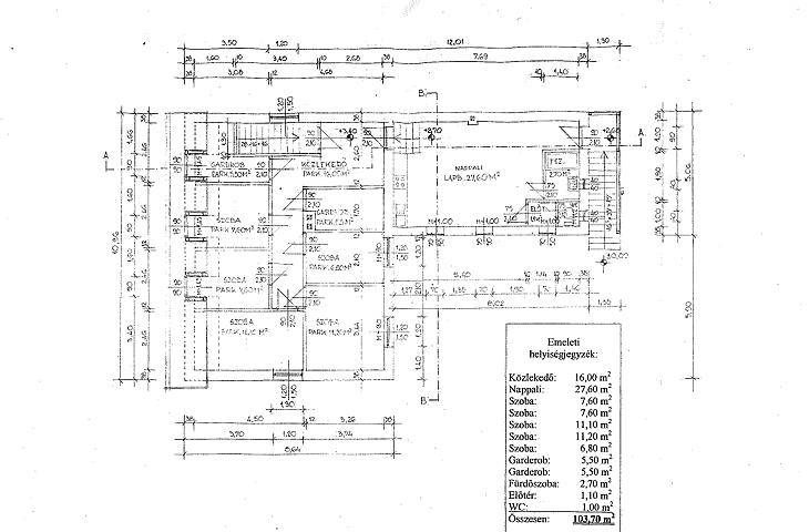
RÁKOSKERESZTÚR CSENDES, CSALÁDI HÁZAS ÖVEZETÉBEN KÍNÁLUNK MEGVÉTELRE EGY ÖNÁLLÓ, KÉT SZINTES, FELÚJÍTANDÓ ÁLLAPOTÚ, 214 NM-ES CSALÁDI HÁZAT, AMELY EGY 550 NM-ES TELKEN HELYEZKEDIK EL.A ház B30-as téglából épült, stabil beton alappal és vasbeton gerendás födémmel. A villanyvezetékek cseréje megtörtént.Az ingatlan fűtéséről gázkonvektorok gondoskodnak, a meleg vízellátás pedig szintenként eltérő módon megoldott: a földszinten központi átfolyós gázvízmelegítő, míg az emeleten cirkó rendszer biztosítja a komfortot. A nyílászárók a földszinten vegyes állapotúak, részben már korszerű műanyagra cseréltek, míg a többi helyiségben és az emeleten fa nyílászárók találhatók.5 szobába hűtő – fűtő klíma lett felszerelve. A burkolatok a földszinten: nappaliban parketta, a további helyiségekben járólap található. Az emeleten a szobák parkettásak, az egyik gardróbszoba padlószőnyeggel burkolt, a többi helyiség pedig járólappal ellátott.Az ingatlanhoz tartozó telek számos extra lehetőséget kínálKét különálló szerelőműhely található a telkenKét garázs szerelőaknával, amely ideális autószereléshez vagy vállalkozási tevékenységhezEgy külön szerszámtároló helyiség is rendelkezésre állEgyállásos garázs a lakóépülethez kapcsolódvaAkár 5 autó számára biztosított felszíni beállási lehetőségKIALAKÍTÁS: Földszint: Előszoba, hall, nappali, konyha + étkező, kádas fürdőszoba, 2 wc, 2 kamra, előtér, raktár.Emelet: 5 szoba, nappali, fürdőszoba, wc, 2 gardrób, előtér, közlekedő.KÖRNYÉK:A városközponthoz közel helyezkedik el. Közelben, pár perc sétára található bevásárlási lehetőség, gyógyszertár, bölcsőde, óvoda, iskola, játszótér.A közelben a következő tömegközlekedési lehetősége elérhetőek: 161 A, 46, 97 E, 161, 161 E, 162, 162 A, 169 E, 195, 198, 202 E, 261 E, 262 buszok, valamint a 956, 990, 998 éjszakai járatok. FINANSZÍROZÁS:Az ingatlan banki finanszírozással is megvásárolható, melyben irodánk ingyenes tanácsadással áll rendelkezésükre.IRÁNYÁR: 129,9 M FT VEVŐINK RÉSZÉRE A KÖZVETÍTÉS DÍJTALAN!A hirdetésben szereplő adatok tájékoztató jellegűek.

Budapest, XVII.kerület
Rákoskeresztúr 

Ingatlan adatai
Irányár: 129 900 000 Ft
Típus: ház
Kategória: eladó
Alapterület: 214 m2
Fűtés: -
Állapota: felújítást igényel
Szobák száma: 8
Építés éve: 1985
Szintek száma: -
További adatok
Telekterület: 550 m2
Kert mérete: 550 m2
Erkély mérete: -
Felszereltség: -
Parkolás: -
Kilátás: kertre néző
Egyéb extrák:  
-
Hirdető adatai
Hirdető neve: MPD Hungary Kft.
Kapcsolattartó: Tec 17 Ingatlan Kft.
Hirdető telefonszáma: +36705048744
Honlap: -

Üzenetet küldhet a hirdetőnek:
Az Ön neve:
Az Ön e-mail címe:
Üzenet: