Részletes leírás
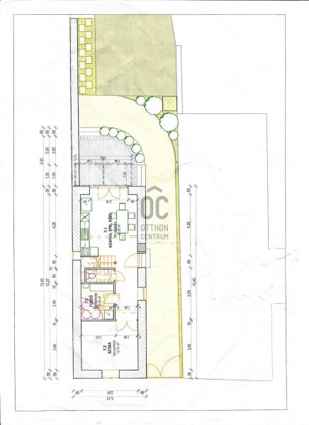
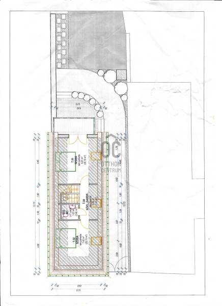
Kivételes lehetőség Tapolca belvárosában – két ház egy telken, közvetlen patakparton!Tapolca szívében, mégis egy csendes, nyugodt utcában kínálunk megvételre egy igazán hangulatos, különleges adottságokkal rendelkező ingatlant. A kis telken két különálló ház található, a kert végében pedig a festői Tapolca-patak csörgedezik – ennél romantikusabb környezetet nehéz elképzelni!Főépület – karakteres kőházA kőből épült, kétszintes ház elrendezése praktikus és otthonos:A földszinten a bejárattól jobbra egy étkezős konyha található, melyből egy beépített teraszra léphetünk. A terasz egyik fala hangulatos látszókő burkolatot kapott, ami igazán egyedi atmoszférát teremt.A bejárattól balra a közlekedőből egy mosdó nyílik sarokkáddal, majd a folyosó végén egy tágas, világos szobába érkezünk.A bejárattal szemben indul a lépcső az emeletre, ahol két szoba és egy további mosdó kapott helyet.Az egyik emeleti szobából egy kis teraszra léphetünk ki, ahonnan kellemes kilátás nyílik a környékre.Különálló garzonlakásA főépület előtt egy téglából épült, 20 nm-es garzonlakás található, amely mérete ellenére rendkívül praktikusan lett kialakítva. Saját konyhával és mosdóval rendelkezik, így tökéletes:* vendégek fogadására,* külön élő családtagnak,* vagy akár kiadásra.Hangulatos kert patakparttalAz apró kert igazi ékszerdoboz:Egyedileg épített, szép és kiválóan működő kemence teszi teljessé a kerti élményeket.A telek végében a Tapolca-patak csörgedezik, ami különleges, ilyen telek nem sok van már!Befektetésnek is kiválóAz ingatlan elhelyezkedése rendkívül kedvező: a környék dinamikusan fejlődik, a városi rendezvények helyszíne 1-2 perc sétára található. A két külön lakrész miatt kiváló lehetőség akár nyári kiadásra is, így nemcsak otthonnak, hanem befektetésnek is remek választás.Ha egy igazán egyedi hangulatú, több lehetőséget rejtő ingatlant keres Tapolca belvárosában, ne hagyja ki ezt az alkalmat!

Veszprém megye, Tapolca
 

Ingatlan adatai
Irányár: 79 900 000 Ft
Típus: ház
Kategória: eladó
Alapterület: 90 m2
Fűtés: gáz (cirko)
Állapota: -
Szobák száma: 4
Építés éve: 1960
Szintek száma: -
További adatok
Telekterület: 277 m2
Kert mérete: 277 m2
Erkély mérete: 3 m2
Felszereltség: -
Parkolás: -
Kilátás: -
Egyéb extrák:  
-
Hirdető adatai
Hirdető neve: Otthon Centrum
Kapcsolattartó: Száz Petra
Hirdető telefonszáma: +36 70 469 3406
Honlap: -

Üzenetet küldhet a hirdetőnek:
Az Ön neve:
Az Ön e-mail címe:
Üzenet: