Részletes leírás
Eladó újépítésű lakások Szolnok belváros közelében, modern társasházban!Szolnok egyik kedvelt, belvároshoz közeli részén kínálunk megvételre egy most épülő, mindössze 7 lakásos, exkluzív megjelenésű társasházban kialakított lakásokat. A kis lakásszám nyugodt, családias környezetet biztosít, miközben minden fontos szolgáltatás könnyedén elérhető.A lakások tervezésénél kiemelt szerepet kapott a praktikus elrendezés és a mai kor igényeinek megfelelő műszaki tartalom. Kétféle alaprajz közül választhat:– amerikai konyhás nappali + 1 hálószoba– amerikai konyhás nappali + 2 hálószobaÁra : 1 050 000 Ft/nmA modern épület egyik legnagyobb előnye a korszerű, energiatakarékos hőszivattyús rendszer, amely padló- és mennyezeti hűtés-fűtést biztosít. Ennek köszönhetően alacsony fenntartási költségek mellett, egyenletes hőérzet és magas komfort biztosított minden évszakban.Főbb jellemzők:• újépítésű, modern társasház• mindössze 7 lakás – csendes, nyugodt lakókörnyezet• hőszivattyús padló- és mennyezeti hűtés-fűtés• praktikus, jól kihasználható terek• ideális saját otthonnak vagy befektetésnek• várható átadás: 2026 májusA lakásokhoz fedett gépkocsi beálló vásárolható, (ára: 5 millió ) így a parkolás is kényelmesen megoldott.Az ingatlan kiváló választás mindazok számára, akik modern, energiatakarékos otthont keresnek jó elhelyezkedéssel, vagy hosszú távon értékálló befektetésben gondolkodnak.Irodánkban bankfüggetlen hitel-ügyintézéssel állunk ügyfeleink rendelkezésére!A hirdetésben szereplő információkat a megbízótól kaptuk, irodánk azokért felelősséget nem vállal!Ha felkeltettem érdeklődését, kérem hívjon és nézzük meg együtt !

Jász-Nagykun-Szolnok megye, Szolnok
 

Ingatlan adatai
Irányár: 75 873 000 Ft
Típus: lakás (újépítésű)
Kategória: eladó
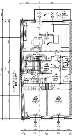
Alapterület: 72 m2
Fűtés: házközponti egyedi méréssel
Állapota: új
Szobák száma: 3
Építés éve: 2026
Szintek száma: -
További adatok
Telekterület: -
Kert mérete: -
Erkély mérete: 6 m2
Felszereltség: -
Parkolás: -
Kilátás: kertre néző
Egyéb extrák:  
-
Hirdető adatai
Hirdető neve: Otthon Centrum
Kapcsolattartó: Szűcsné Rácz Erzsébet
Hirdető telefonszáma: +36 70 469 3171
Honlap: -

Üzenetet küldhet a hirdetőnek:
Az Ön neve:
Az Ön e-mail címe:
Üzenet: