Részletes leírás
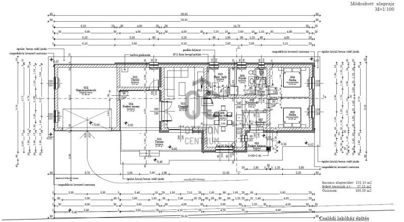
Képzelje el, hogy egy új, modern otthon várja Önt Keszthely csendes és barátságos Kertvárosában. Ez a prémium kivitelezésű ház nem csupán lakóhely, hanem egy életstílus megtestesítője, amely ideális választás azoknak, akik értékelik a kényelmet és a minőséget. Az ingatlan 168 négyzetméteres alapterülettel rendelkezik, amely két különnyíló szobát, egy hatalmas nappalit, konyha-étkezőt, egy elegáns fürdőszobát, külön vendég WC-kézmosó helyiséget, mosókonyhát, előszobát, közlekedő helyiségeket, kazánházat, két autó számára fűtött garázst és összesen 37,11 négyzetméteres teraszokat foglal magában. A ház állapota kiváló, modern megoldásokkal felszerelt, mint például a beépített vízlágyítóval szerelt vízvezeték-rendszer, az elektromos redőnyök, LED hangulatvilágítás és a videókaputelefon, amelyek a mindennapokat kényelmesebbé és biztonságosabbá teszik. Az ingatlan fűtése gáz cirkó rendszerrel padlófűtéssel megoldott, míg a hűtésről klíma gondoskodik, így az év bármely szakaszában kellemes hőmérsékletet biztosít. Az épület 20 cm külső falszigetelést kapott, illetve a födém is 30 cm-t. A kazánház és a Hörmann elektromos garázskapuval ellátott garázs is fűtött, utóbbi lehetőséget biztosít elektromos autó töltésére is, így a fenntartható közlekedés iránt elkötelezett Ügyfeleink számára is ideális választás.A műanyag hőszigetelt nyílászárók 3 rétegű üveggel ellátottak, elektromos redőnyökkel, szúnyoghálóval felszereltek. Az ingatlanon ipari áram is rendelkezésre áll, illetve elektromos kapu szolgálja a további kényelmet.Az akadálymentesített kialakítás lehetővé teszi, hogy mindenki könnyedén használhassa az ingatlant, az udvaron 280 négyzetméteren térkő található.A környék ellátottsága kiváló, boltok, éttermek és szolgáltatások könnyen elérhetők, míg a közlekedési lehetőségek is kedvezőek: a város tömegközlekedése gyors és megbízható, így a napi ingázás sem jelent problémát. Keszthely nem csupán a Balaton közelsége miatt vonzó, hanem a város kulturális élete, szabadidős lehetőségei és a természet közelsége miatt is. A csendes környék ideális otthont biztosít a kikapcsolódásra vágyók számára, miközben a város nyújtotta lehetőségek is könnyen elérhetők. Ez az ingatlan tehermentes, így azonnal birtokba vehető. Amennyiben az ingatlan elnyerte a tetszését, hívjon bizalommal és megtekintésre időpontot egyeztetünk!Szolgáltatásaink körében szakszerű tanácsadással, bank-semleges hitel-ügyintézéssel és kedvező díjszabású ügyvéddel nyújtunk segítséget!

Zala megye, Keszthely
 

Ingatlan adatai
Irányár: 162 000 000 Ft
Típus: ház
Kategória: eladó
Alapterület: 168 m2
Fűtés: gáz (cirko)
Állapota: új
Szobák száma: 3
Építés éve: 2024
Szintek száma: -
További adatok
Telekterület: 1 772 m2
Kert mérete: 1 772 m2
Erkély mérete: 37 m2
Felszereltség: -
Parkolás: -
Kilátás: -
Egyéb extrák:  
-
Hirdető adatai
Hirdető neve: Otthon Centrum
Kapcsolattartó: Irimi Barbara
Hirdető telefonszáma: +36 70 388 5961
Honlap: -

Üzenetet küldhet a hirdetőnek:
Az Ön neve:
Az Ön e-mail címe:
Üzenet: