Részletes leírás
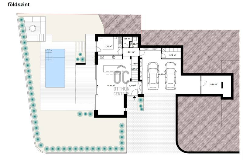
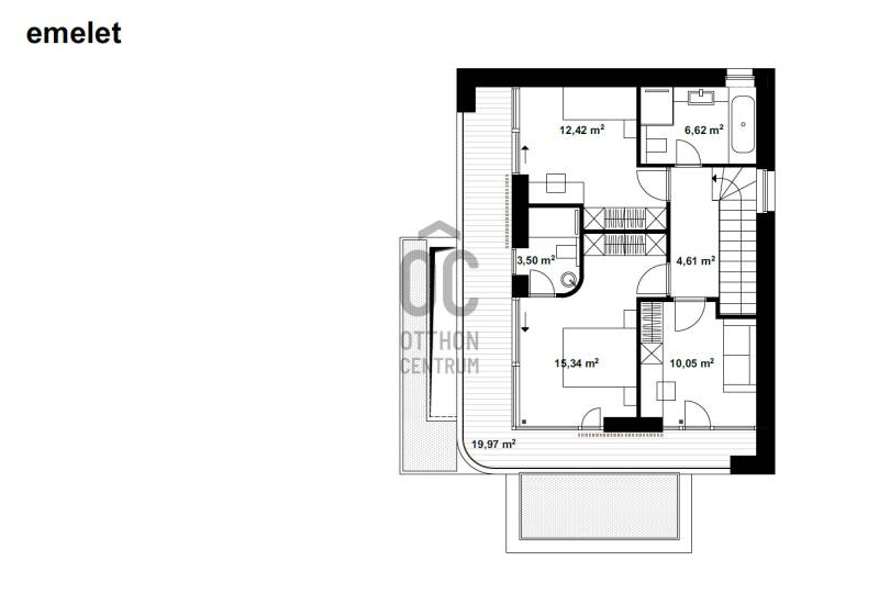
Újépítésű családi ház saját medencével, parkosított környezetben ÜDV ITTHON!Letisztult, kortárs építészet, valódi zöld környezet és magas műszaki tartalom – egy önálló családi otthon, amely a kerttel átgondolt egységet alkot.AZ ÉPÜLET ÉS KÖRNYEZET Három önálló épület egy nagy telken (önálló helyrajzi számon), igényesen parkosított környezetben: - gondosan megtervezett növényzet - gyepfelületek - automata öntözőrendszerrel ellátott kert - 6×3 méteres medence - otthoni wellness a nappali teraszárólEgy épület eladó már csak!FŐBB ADATOK- Nettó hasznos alapterület: 193 m² - Terasz: 44 m² - Különálló medence: 18 m² - Bruttó: 215 m² - Saját, kizárólagos használatú privát kert: 520 m² Funkcionális elosztás: - Nappali + 4 szoba - 2 fürdőszoba - 1 külön WC - Tároló - Fűtött garázs (3 autónak)- Mosókonyha - Gépészeti helyiség MŰSZAKI TARTALOM – HŐSZIVATTYÚ, KOMFORT, ENERGIAHATÉKONYSÁG - Önálló hőszivattyús rendszer - Szobánként külön vezérelhető mennyezethűtés- Padlófűtés a kiegyenlített hőérzetért - 30-as Porotherm X-Therm „okostégla” falszerkezet - 20 cm Dryvit hőszigetelés – korszerű, energiahatékony épületburok KULCSRAKÉSZ – PRÉMIUM RÉSZLETEKKEL Az épület elkészült, az ár tartalmazza: - Belsőépítész által tervezett, egységes belső koncepció - Asztalos által készített egyedi beltéri ajtók - Fürdőszobai beépített szekrények - Prémium TRES csaptelepek - Gépesített NOBILIA konyhabútor - Kültéren: parkosítás, öntözőrendszer, saját privát medenceKINEK AJÁNLOM? Annak, aki: - újépítésű házat, komplett életteret keres, - értékeli a magas műszaki tartalmat és az alacsonyabb üzemeltetési költségeket, - fontosnak tartja a privát kertet és a saját medencét, - hosszú távra, értékálló, prémium otthonban gondolkodik.Önnek nem mindennapos egy ilyen ingatlan megvásárlása, nekem minden napom erről szól. Ha szeretné részletesen átbeszélni a műszaki tartalmat és a személyre szabási lehetőségeket, keressen bizalommal – nézzük meg együtt, mit adhat Önnek ez az otthon.Budapest, Buda, II. kerület, 2. kerület, Remetekertváros, eladó ház, újépítésű, 5 szoba, nappali és 4 háló, 2 fürdő, vendég wc, 3 állásos garázs, nagy terasz, medence

Budapest, II.kerület
 

Ingatlan adatai
Irányár: 570 000 000 Ft
Típus: ház
Kategória: eladó
Alapterület: 215 m2
Fűtés: -
Állapota: új
Szobák száma: 5
Építés éve: 2025
Szintek száma: -
További adatok
Telekterület: 520 m2
Kert mérete: 520 m2
Erkély mérete: 45 m2
Felszereltség: -
Parkolás: -
Kilátás: -
Egyéb extrák:  
-
Hirdető adatai
Hirdető neve: Otthon Centrum
Kapcsolattartó: Pieke Dénes
Hirdető telefonszáma: +36 70 388 5291
Honlap: -

Üzenetet küldhet a hirdetőnek:
Az Ön neve:
Az Ön e-mail címe:
Üzenet: