Részletes leírás
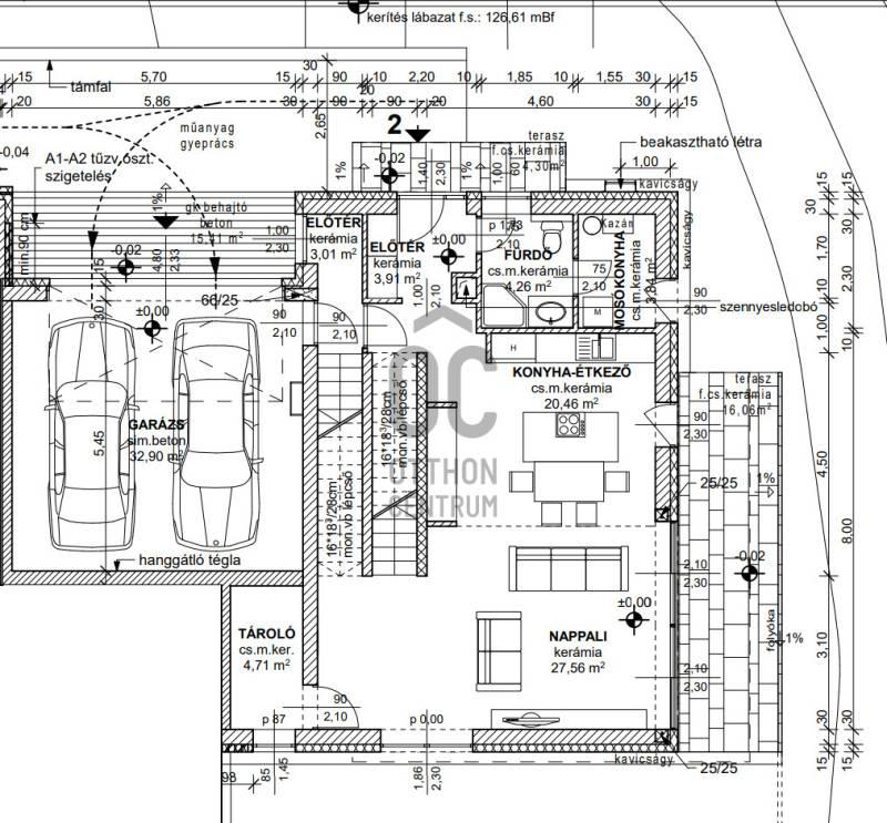
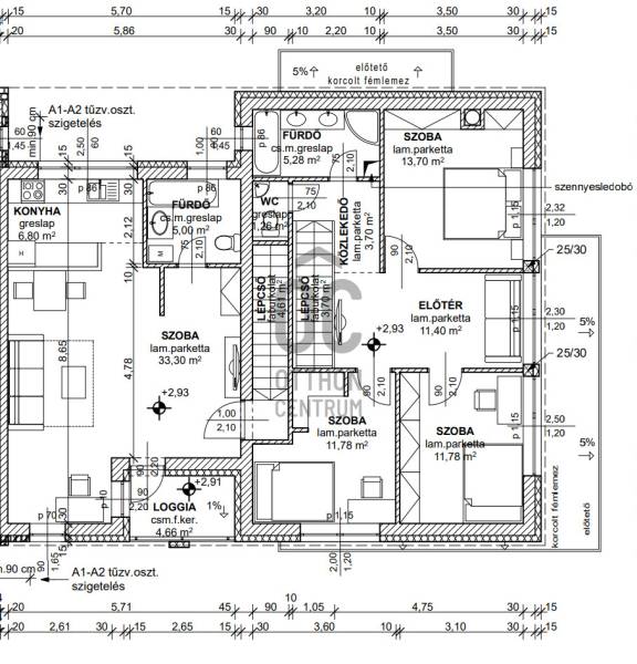
Sashalmon csendes utcájában eladó ez a 214 m2-es kétszintes prémium kivitelezésű és felszereltségű ikerházfél, melyben található egy külön bejáratú 45 m2-es emeleti kis lakás 4,5 m2 terasszal és egy 169 m2-es kétszintes lakás dupla garázzsal, illetve a 33 m2-es terasszal. A ház szinte új építésű amely 2016-ban épült. A két lakás igény szerint egybe nyitható. Szerkezet:•30-as porotherm tégla•betonfödém a földszint és emelt fölött is•15 cm homlokzatszigetelés, 15 cm aljzatszigetelés és 35 cm tető hőszigetelés•3 rétegű, 7 légkamrás nyílászárók elektromos alumínium redőnnyel és szúnyoghálóval•hűtő-fűtő 16 Kwh-os Panasonic All in one hőszivattyú, minden helyiségben padlófűtés, a garázsban isa hálószobákban fal hűtés•kétleállású garázs + egy fedett gépkocsibeállóFelszereltség:•a hálószobákban beépített szekrények•a nappaliban és az emeleti lakásban 1-1 db fali klíma található•elektromos redőnyök távirányítóval + applikáción keresztül használható•3 zónás riasztórendszer színes érintőképernyős LCD kijelzővel és applikációról is működtethető•8 csatornás kamerarendszer telefonos applikációval•elektromos kerítés és garázskapu távirányítóval és távoli vezérlés funkcióval•10,2 KWH-os napelemrendszer 3 x 25 amperes SZALDÓ MÉRŐVEL•3 x 16 amperes GEO TARIFÁS óra napi 20 órában kedvezményes tarifával•parkosított udvar öntözőrendszerrel•3x6 méteres épített medence külön hősszivattyús fűtési rendszerrel.Meglepően alacsony rezsiköltség:Villany költség 10 000 Ft/ hóVíz 17 000 Ft/hóSzemét díj 3400 Ft/ hóGáz nincs az ingatlanban.A rezsi díj a két lakásra együtt értendő beleértve a medencefűtést és az öntözőrendszert is.

Budapest, XVI.kerület
 

Ingatlan adatai
Irányár: 286 900 000 Ft
Típus: ház
Kategória: eladó
Alapterület: 214 m2
Fűtés: -
Állapota: -
Szobák száma: 6
Építés éve: 2016
Szintek száma: -
További adatok
Telekterület: 532 m2
Kert mérete: 532 m2
Erkély mérete: 38 m2
Felszereltség: -
Parkolás: -
Kilátás: -
Egyéb extrák:  
-
Hirdető adatai
Hirdető neve: Otthon Centrum
Kapcsolattartó: Incze Róbert
Hirdető telefonszáma: +36 70 716 8121
Honlap: -

Üzenetet küldhet a hirdetőnek:
Az Ön neve:
Az Ön e-mail címe:
Üzenet: