Részletes leírás
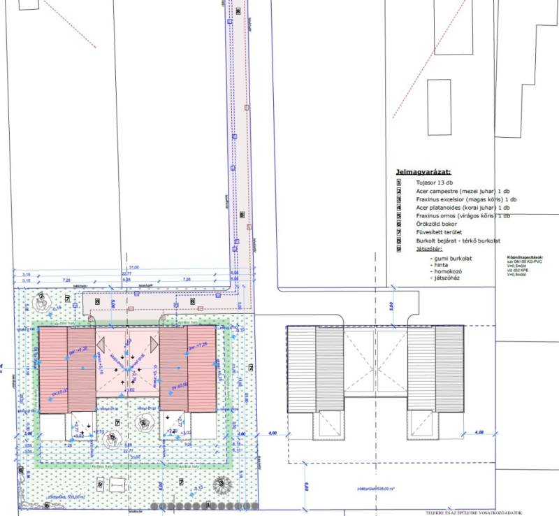
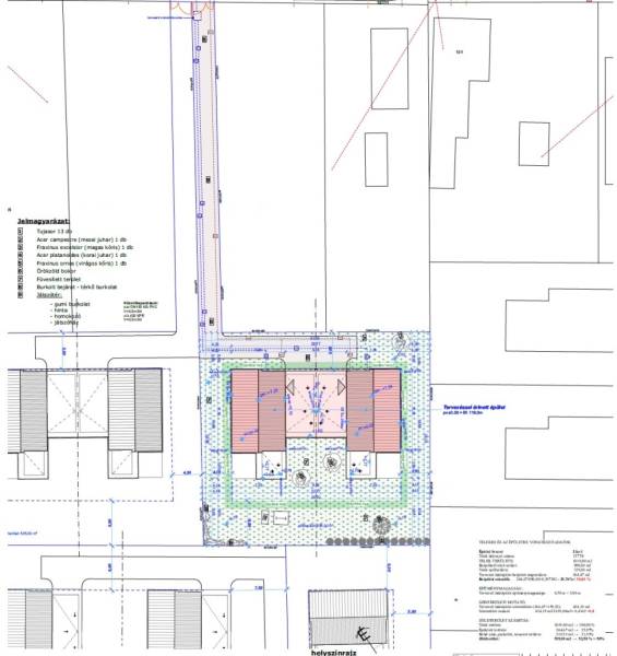
REMEK LEHETŐSÉG GYÁLON, CSAK NÁLUNK, ÜRES ÉPÍTÉSI TELKEK! Gyálon az Egressy út - Venyige köz környezetében, eladásra kínálunk 2 db. egymás mellett lévő építési telket egyben, vagy külön-külön is.Igény szerint komplett engedélyeztetett tervekkel 2 db. ikerház megépítésére, összesen 4 db. lakásra! A víz csatorna bevezetés folyamatban és az elektromos órafogadó kiépítés szintén folyamatban + az EON hálózatfejlesztési hozzájárulás is benne van az árban!Az áramot elviekben 2027. májusában hozzák, erről írásos EON papírja is van a tulajdonosnak.A telkek megközelíthetősége egy saját-privát nyeles részen lehetséges, amely 6 méter széles.TELEKRE ÉS AZ ÉPÜLETRE VONATKOZÓ ADATOK:Építési övezet: Lke-1TELEK TERÜLETE: 1019,00 m2Beépíthető telek terület: 890,00 m2Telek nyélterülete: 129,00 m2Tervezett lakóépület beépített alapterülete: 264,67 m2Beépítési százalék: 264,67/890,00=0,297382 - 29,74%< 30,00 %ÉPÍTMÉNYMAGASSÁG :Tervezett lakóépület építménymagassága: 4,58 m < 5,00 mSZINTERÜLETI MUTATÓ:Tervezett lakóépület szintterülete (264,67+159,52): 424,19 m2Szinterületi mutató: 424,19 m2/1019,00m2= 0,4162 50%A telkek eladási ára darabonként: 54,9 MFt./db.Információk szerint, az Egressy út teljes felújítása-kiszélesítése-átépítése 2028-ban várható.Az ingatlan részletes ismertetése és bemutatása előre egyeztetett időpontban lehetséges, melyet nagyon rugalmasan kezelünk, akár HÉTVÉGÉN is.További kérdéseivel kapcsolatban várom a jelentkezését.Amennyiben Önnek a vásárláshoz szüksége lenne hitelre, babaváró kölcsönre, lakástakarékra, stb., kezdeményezheti a kapcsolatfelvételt bankfüggetlen hitelügyintézőinkkel, teljesen DÍJMENTESEN.Közel 25 év szakmai tapasztalattal rendelkezem, eladó vagy kiadó ingatlana értékesítése vagy bérbeadása esetén, készséggel állok az Ön rendelkezésére is, keressen bizalommal.

Pest megye, Gyál
 

Ingatlan adatai
Irányár: 54 900 000 Ft
Típus: telek
Kategória: eladó
Alapterület: 1 019 m2
Fűtés: -
Állapota: -
Szobák száma: -
Építés éve: -
Szintek száma: -
További adatok
Telekterület: 1 019 m2
Kert mérete: -
Erkély mérete: -
Felszereltség: -
Parkolás: -
Kilátás: -
Egyéb extrák:  
-
Hirdető adatai
Hirdető neve: GDN Ingatlanhálózat
Kapcsolattartó: Nyegrutz Tamás
Hirdető telefonszáma: +36-30-560-5587
Honlap: -

Üzenetet küldhet a hirdetőnek:
Az Ön neve:
Az Ön e-mail címe:
Üzenet: