Részletes leírás
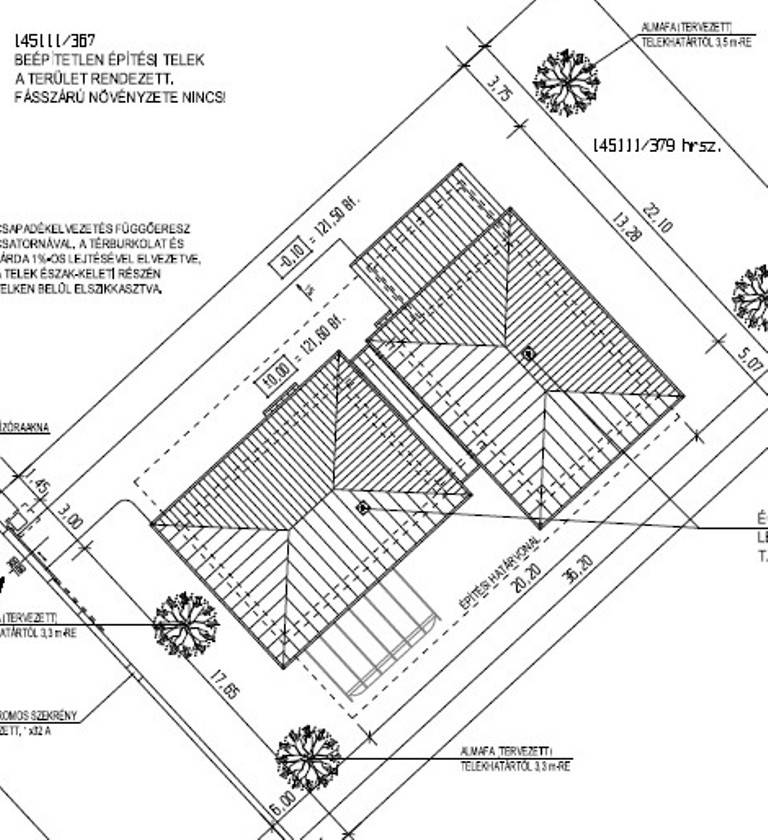
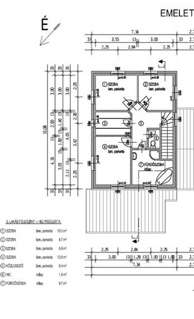
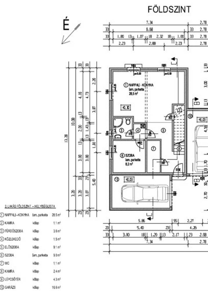
MEDENCÉS, SZAUNÁS ÚJSZERŰ IKERHÁZ ,MAGAS MŰSZAKI TARTALOMMAL, SOK EXTRÁVAL!Kizárólag nálunk XVIII. kerület új lakóparkjában almáskertben 2016-ban épült,142m2-es, nappali plusz 5 félszobás, kétszintes, ikerház 2 fürdőszobával,2 WC-vel, fedett terasszal (20m2-es),garázzsal (16m2-es), gépkocsibeállóval, 285m2-es önálló kertrésszel eladó.A telken a házak egymás mögött helyezkednek el, csak a garázsoknál érintkeznek, nincs közös fal.A ház könnyűszerkezetes,külső teherhordó falak fa vázoszlopok fa merevítéssel, közte 15cm kőzetgyapot szigeteléssel, külső dryvet szigetelés 10cm, könnyűszerkezetes födémmel, műanyag nyílászárókkal (kétrétegű,kívül barna ,belül fehér színben),natúr színű betoncseréppel.Extrák:-konyhabútor beépített gépekkel , alsó,felső fürdőben beépített szekrények- 8,5 kW-os napelem rendszer, szaldóval 2033-ig. Inverter 12 kW-os, tehát bővíthető a rendszer- teljes ház klimatizált, 2 db 3,5 kW Gree hűtő fűtő klíma, 1 db 2 kW hűtő fűtő klíma- villany: 3x32A, H tarifa: 1x32 A- LG hőszivattyú 12kW, 300 literes HMV tartály- padlófűtés (földszint és emelet is)- fatüzelésű kandalló, külső levegő bevezetéssel és hőtároló rendszerrel- elektromos kapu és elektromos garázs kapu- riasztó rendszer , szúnyogháló- automata öntözőrendszer- automata kert világítás - kombinált szauna: 4-5 fős, prémium faanyagokból épült, üvegpanorámás infra és finn szauna- medence: 6x3-as, 150cm mély, hőszivattyús fűtés (9kW), sóbontós (gondozásmentes) rendszer, ellenáramoltató rendszer úszóedzésekhez, medence világítás-kertben biztonsági kamera-fedett terasz pergolával (20m2-es)-vízóra: normál és locsoló óra, -rugalmas költözés ,jogilag rendezett , külön helyrajzi számon lévő ingatlanMagyarország piacvezető hitelközvetítője által egyedi kamatkedvezményekkel és bankfüggetlen, díjmentes hitelügyintézéssel is segítjük vásárlását. CSOK plusz hitel és piaci alapú hitel igénybe vehető az ingatlanra. Amennyiben minimum 25 millió Ft. összegű ingatlanfedezetes hitelt vesz igénybe általunk 500 Euro értékű Club Karos Spa**** wellness utalványt adunk ajándékba. (Az akció kizárólag a Money Network ügynökhálózatán keresztül beadott és folyósított jelzáloghitelekre érvényes.) Hívjon bizalommal!

Budapest, XVIII.kerület
 

Ingatlan adatai
Irányár: 179 900 000 Ft
Típus: ház
Kategória: eladó
Alapterület: 142 m2
Fűtés: -
Állapota: új
Szobák száma: 3+2
Építés éve: 2016
Szintek száma: -
További adatok
Telekterület: 800 m2
Kert mérete: 800 m2
Erkély mérete: 20 m2
Felszereltség: -
Parkolás: -
Kilátás: -
Egyéb extrák:  
-
Hirdető adatai
Hirdető neve: RARIK-1986 Kft.
Kapcsolattartó: Kabát József
Hirdető telefonszáma: 06-70-542-1053
Honlap: -

Üzenetet küldhet a hirdetőnek:
Az Ön neve:
Az Ön e-mail címe:
Üzenet: