Részletes leírás
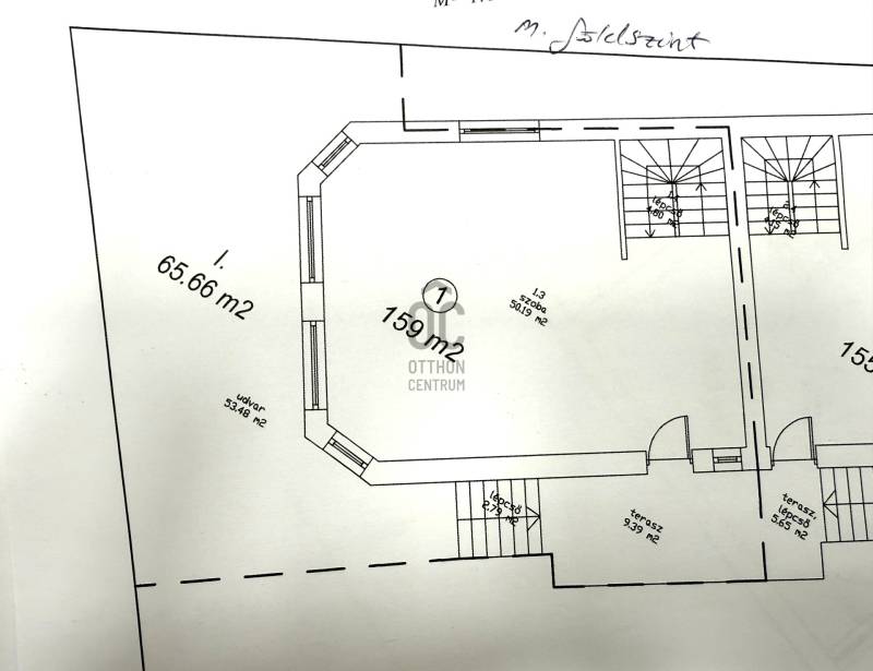
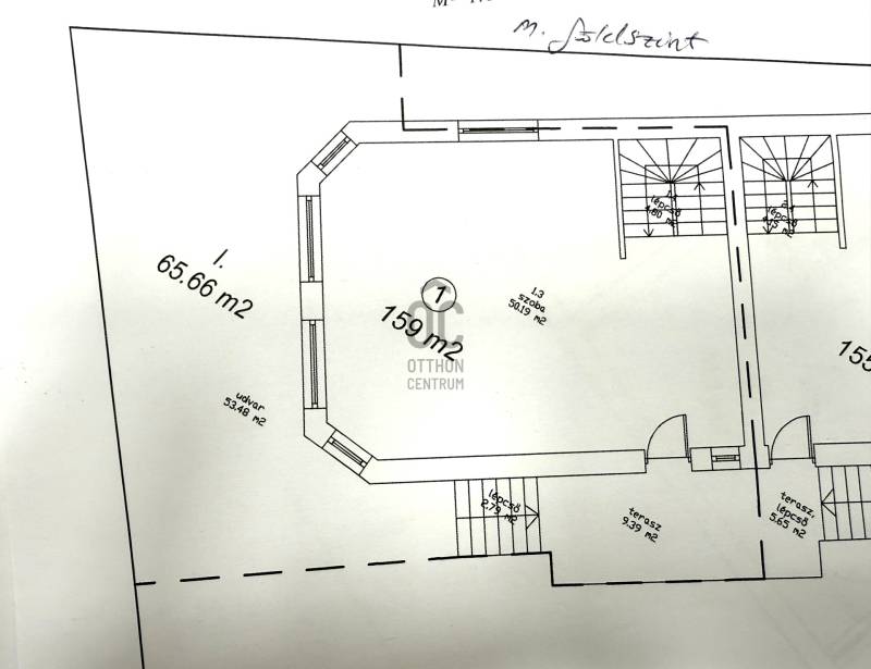
Ikerház Rákoscsabán, panelàr alatt !Álmai otthona Rákoscsaba-Újtelepen – 3 szint, 4 szoba, tágas élettér!Budapest XVII. kerületének csendes, kertvárosi részén, Rákoscsaba-Újtelepen eladó egy 2006-ban épült családi ikerház utcafronti lakása, gépkocsi beállási lehetőséggel.Az ingatlan háromszintes, szintenként kb. 55 m², így összesen ~165 m² hasznos alapterülettel rendelkezik. A szintek belső, beton lépcsővel kapcsolódnak egymáshoz.Tervezett elrendezés (igény szerint alakítható)Magasföldszint:Amerikai konyhás nappaliMellékhelyiségTetőtér:2 vagy akár 3 külön nyíló hálószobaFürdőszoba WC-velSzuterén szint:Szabadon alakítható az Ön igénye szerint:tárolóként meghagyhatóvagykialakítható 2 szobás lakószintként (dolgozó, háló, hobbi- vagy fitneszterem)Ennek kivitelezését az eladó +5 millió Ft-ért vállalja.Jelenlegi készültségi állapot (~75%)3 rétegű, új műanyag nyílászárókBeton lépcső a szintek közöttHangszigetelt fal a két lakás közöttÚj villanyóraVadonatúj 10 cm Dryvit hőszigetelésA befejezést a vevő saját ízlés szerint valósíthatja meg,vagy az eladó vállalja a kulcsrakész befejezést +20 millió Ft-ért, pontos műszaki tartalom alapján.Kulcsrakész műszaki tartalomTeljesen új közműkiépítés telekhatártól (víz, villany, csatorna)Bosch 8 kW hőszivattyú lakásonkénti hőmennyiségmérővelPadlófűtésWellis 80 literes villanybojlerBurkolatok és szaniterek beépítéseVillanyvezetékek, kapcsolókÚj beltéri ajtókBurkolt teraszokUtcai kerítésTV csövezés minden szobábanTelefon csövezés a nappalibanRiasztó előkészítés4–5 db fan-coil (nappali + hálók hűtésére)Környezet és elhelyezkedésCsendes, kertvárosi övezetGépkocsi beállási lehetőségBKK buszmegálló a közelbenBevásárlási lehetőségek pár percen belül⚖️ Tulajdoni viszonyAz ingatlan osztatlan közös tulajdon, a vevő az adott lakásnak megfelelő tulajdoni hányadot vásárolja meg.A használati megosztást ügyvéd által készített, minden jogutódra kiterjedő megállapodás szabályozza.Kinek ajánljuk?Ideális választás azoknak,akik saját ízlésük szerint szeretnék befejezni új otthonukat,vagy kedvező áron, panelár alatt keresnek családi méretű ingatlant Budapesen.Részletekért hívjon bizalommal, akár még ma!Ez az ingatlan a \"Felező csomag\" megbízási portfólióhoz tartozik. Részletek az Otthon Centrum weboldalán.

Budapest, XVII.kerület
 

Ingatlan adatai
Irányár: 77 000 000 Ft
Típus: ház
Kategória: eladó
Alapterület: 104 m2
Fűtés: -
Állapota: -
Szobák száma: 4
Építés éve: 2006
Szintek száma: -
További adatok
Telekterület: 120 m2
Kert mérete: 120 m2
Erkély mérete: 18 m2
Felszereltség: -
Parkolás: -
Kilátás: -
Egyéb extrák:  
-
Hirdető adatai
Hirdető neve: Otthon Centrum
Kapcsolattartó: Krasznai Izabella
Hirdető telefonszáma: +36 70 388 5056
Honlap: -

Üzenetet küldhet a hirdetőnek:
Az Ön neve:
Az Ön e-mail címe:
Üzenet: