Részletes leírás
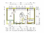
Eladó 99 modern, új kialakítású lakás Szolnok belvárosában, ahol minden adott az igényes, kifinomult élethez – vagy egy hosszú távon is jövedelmező befektetéshez.✔ 43 nm – kompakt otthon, ahol a praktikum és a kényelem találkozikBEVEZETŐ ÁR✔43 nm –41,9 m ftBerendezett mintalakás már megtekinthető, a kiválasztott lakás akár teljes bútorzattal együtt megvásárolható egyeztetés után!Minden lakás gépesített, beépített konyhabútorral együtt kerül értékesítésre!❗ Gyere, nézd meg és hozd meg a döntést rövid időn belül:✔ remek lokáció, minden pár perc sétára✔ 4 lifttel rendelkező, modern társasház✔ házközponti fűtés-hűtés✔ Schüco profil nyílászáró. 3 rétegű hőszigetelő üvegezéssel✔ Első lakásnak is kiváló lehetőség✔Letisztult stílusVárható átadás : 2026.07.31.További műszaki leírással állok rendelkezésére!Elérhetőség függvényében lehetőség van saját tároló vásárlására 590.000 ft/nm áron! (2-4 nm nagyságú önálló tárolók)Irodánkban bankfüggetlen hitel-ügyintézéssel állunk ügyfeleink rendelkezésére!A hirdetésben szereplő információkat a megbízótól kaptuk, irodánk azokért felelősséget nem vállal!Ha felkeltettem érdeklődését, kérem hívjon, forduljon hozzám bizalommal, és nézzük meg együtt !Projekt bemutatásaEladó 99 modern, új kialakítású lakás Szolnok belvárosában, ahol minden adott az igényes, kifinomult élethez – vagy egy hosszú távon is jövedelmező befektetéshez.A három méret kínálat különböző élethelyzetekre ad megoldásokat:✔ 30 nm – kompakt otthon, ahol a praktikum és a kényelem találkozik✔ 32 nm – egy otthon hálófülkével, ahol minden nm érték✔ 43 nm – okosan kihasznált terek, egy külön szobával, és saját tárolóvalBEVEZETŐ ÁRAK✔30 nm – 26,9 m ft✔ 32 nm – 29,9 m ft✔43 nm – 41,9 m ftMindhárom méretű lakásból a berendezett mintalakások már megtekinthetők, a kiválasztott lakás akár teljes bútorzattal együtt megvásárolható egyeztetés után!Minden lakás gépesített, beépített konyhabútorral együtt eladó! ❗ Gyere, nézd meg és hozd meg a döntést rövid időn belül:✔ remek lokáció, minden pár perc sétára✔ 4 lifttel rendelkező, modern társasház✔ házközponti fűtés-hűtés✔ Schüco profil nyílászáró. 3 rétegű hőszigetelő üvegezéssel✔ Első lakásnak is kiváló lehetőség✔Letisztult stílusVárható átadás : 2026.07.31. További műszaki leírással állok rendelkezésére!Elérhetőség függvényében lehetőség van saját tároló vásárlására 590.000 ft/nm áron! (2-4 nm nagyságú önálló tárolók)Irodánkban bankfüggetlen hitel-ügyintézéssel állunk ügyfeleink rendelkezésére!A hirdetésben szereplő információkat a megbízótól kaptuk, irodánk azokért felelősséget nem vállal!Ha felkeltettem érdeklődését, kérem hívjon, forduljon hozzám bizalommal, és nézzük meg együtt !

Jász-Nagykun-Szolnok megye, Szolnok
 

Ingatlan adatai
Irányár: 41 900 000 Ft
Típus: lakás (tégla)
Kategória: eladó
Alapterület: 43 m2
Fűtés: egyéb
Állapota: -
Szobák száma: 2
Építés éve: 2026
Szintek száma: -
További adatok
Telekterület: -
Kert mérete: -
Erkély mérete: -
Felszereltség: -
Parkolás: -
Kilátás: utcai
Egyéb extrák:  
-
Hirdető adatai
Hirdető neve: Otthon Centrum
Kapcsolattartó: Bakos-Dósa Ildikó
Hirdető telefonszáma: +36 70 716 9956
Honlap: -

Üzenetet küldhet a hirdetőnek:
Az Ön neve:
Az Ön e-mail címe:
Üzenet: