Részletes leírás
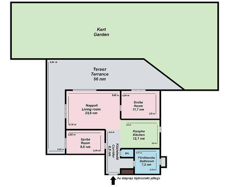
Eladó a II. kerületben, Rózsadomb egyik csendes mellékutcájában egy nyugati fekvésű, 3 szobás lakásEladásra kínálunk a II. kerület, Rózsadomb egyik nyugodt, zöldövezeti mellékutcájában egy 75 m²-es, 3 szobás (2 hálószoba + nappali), földszinti, 2006-ban teljeskörűen felújított lakást, egy zárt, rendezett társasházban.A lakáshoz 66 m²-es, kizárólagos használatú terasz és saját kertkapcsolat tartozik, amely ideális lehet kültéri étkező kialakítására, pihenő- vagy napozóhelynek, jelentősen megnövelve a lakás életterét. A lakás beépített bútorokkal felszerelt, így azonnal beköltözhető.A környék csendes és biztonságos, zöldövezeti hangulatú, ugyanakkor minden fontos szolgáltatás könnyen elérhető. Kiváló közlekedési kapcsolatokkal rendelkezik: a közelben több buszjárat is indul, és a Margit-híd budai hídfője mindössze 10 perc sétára található, így a belváros gyorsan megközelíthető.Az ingatlan elsősorban pároknak, családoknak, valamint azoknak ajánlott, akik nyugodt, zöld környezetben szeretnének élni, és értékelik a tágas terasz és a saját kert nyújtotta lehetőségeket.

Budapest, II.kerület
Borbolya utca 

Ingatlan adatai
Irányár: 170 000 000 Ft
Típus: lakás (tégla)
Kategória: eladó
Alapterület: 75 m2
Fűtés: gáz (cirko)
Állapota: felújított
Szobák száma: 3
Építés éve: 1960
Szintek száma: -
További adatok
Telekterület: -
Kert mérete: -
Erkély mérete: -
Felszereltség: -
Parkolás: -
Kilátás: kertre néző
Egyéb extrák:  
-
Hirdető adatai
Hirdető neve: MPD Hungary Kft.
Kapcsolattartó: La Cittá dell Acqua Kft.
Hirdető telefonszáma: +36704244380
Honlap: -

Üzenetet küldhet a hirdetőnek:
Az Ön neve:
Az Ön e-mail címe:
Üzenet: