Részletes leírás
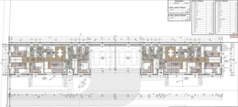
CSAK NÁLUNK – ÚJ ÉPÍTÉSŰ, KÉTLAKÁSOS IKERHÁZ ELADÓ A XXII. KERÜLETBENBudapest XXII. kerületében, a Nagytétényi út közelében kínáljuk megvételre ezt a modern, földszintes, kétlakásos ikerházat, nyugodt, kertvárosias környezetben, kiváló infrastruktúrával. Ideális választás családosoknak, családalapítás előtt állóknak, vagy mindazoknak akik tágas, hosszú távra tervezhető otthont keresnek.Az összesen 1203 m²-es telken két, külön bejáratú lakás kerül kialakításra, külön telekrésszel.Az építkezés tervezetten 2026 márciusában kezdődik, így jelen szakaszban még lehetőség van a belső elrendezés finomhangolására, illetve egyedi extrák beépítésére.Fontos kiemelni, hogy az épület külső megjelenése a helyi építési szabályozás szerint kerül kialakításra, így a homlokzati arculat nem módosítható. Ez azonban kifejezetten előnyt jelent: Nagytétény ezen részén egységes, rendezett utcakép és harmonikus építészeti környezet alakul ki, amely hosszú távon is megőrzi a környék értékét és esztétikai minőségét.A ház főbb műszaki jellemzői:– Földszintes kialakítás, amely újépítésű ingatlanoknál ritkaság a XXII. kerületben– Nyeregtetős, cserépfedéssel– E-gerendás vasbeton födém, felbetonnal– 20 cm homlokzati hőszigetelés– Hőszigetelt műanyag nyílászárók– Lakásonként 33,48 m²-es dupla garázs (akár 2 autónak)A két lakás a garázsoknál kapcsolódik egymáshoz, így a lakóterek nem közvetlenül érintkeznek, ami nagyobb nyugalmat és privát szférát biztosít a mindennapokban.I. LAKÁS – 175 MILLIÓ FTTeljes alapterület garázzsal: 152 m²Nettó lakótér: 118 m²A vételár a 152 m²-es, garázzsal együtt számított bruttó alapterületre vetítve megközelítőleg 1,2 millió Ft/m²-es árat jelent.A nettó, 118 m²-es lakótérre vetítve ez kb. 1,5 millió Ft/m², amely ebben a kategóriában stabil, átgondolt és hosszú távon is értékálló befektetést jelent.Elosztás:– tágas előtér és folyosók– 4 külön nyíló tágas hálószoba– Amerikai konyhás nappali étkezővel– kamra– 2 fürdőszoba– 3 WC– Háztartási helyiség– Terasz– Saját kertkapcsolatII. LAKÁS – 189 MILLIÓ FTTeljes alapterület garázzsal: 152,13 m²Nettó lakótér: 118,65 m²Az elrendezés megegyezik az 1-es lakással, azonban a 2. lakás kiemelt előnye a nagyobb, hátsó, privát telekrész, amely még intimebb kertkapcsolatot és nagyobb szabadságot biztosít családi programokhoz, pihenéshez vagy akár további kerti fejlesztésekhez.Műszaki tartalom – választható belső elemek:– Hidegburkolat: bruttó 10.000 Ft / m² keretösszegig– Melegburkolat (parketta): bruttó 8.000 Ft / m² keretösszegig– Beltéri ajtók: bruttó 60.000 Ft / db keretösszegigA megadott keretösszegeken belül a burkolatok és ajtók szabadon választhatók, magasabb kategória igény esetén értékkülönbözet megfizetése mellett.Környék és infrastruktúraA XXII. kerület egyik kedvelt, családi házas övezetében található ingatlan kiváló közlekedési kapcsolatokkal rendelkezik. A közelben bevásárlási lehetőségek, óvodák, iskolák, egészségügyi intézmények, valamint tömegközlekedési lehetőségek is elérhetők. Az M0-s gyorsan megközelíthető, így az autóval közlekedők számára is ideális választás.Megbízható kivitelezőAz építtető több éve aktívan jelen van az ingatlanfejlesztési szektorban. Munkáit a korszerű műszaki megoldások, a minőségi anyaghasználat jellemzi, amely stabil hátteret és biztonságot jelent a leendő tulajdonosok számára.Ez az ingatlan kényelmes, átgondolt elrendezésével, nagy tereivel és kedvező elhelyezkedésével stabil, értékálló családi otthont kínál.A hirdetésben szereplő képek látványtervek, a valóságban megvalósuló ingatlan kisebb eltéréseket mutathat.Amennyiben felkeltette érdeklődését, várom hívását vagy üzenetét, és örömmel állok rendelkezésére további információval, illetve személyes megtekintéssel kapcsolatban. Megtekintés előre egyeztetett időpontban.------------------------------------Díjmentes, bankfüggetlen hiteltanácsadással támogatjuk ügyfeleinket a számukra legelőnyösebb finanszírozási döntések meghozatalában.A hirdetésben szereplő információk tájékoztató jellegűek. A tévedés és az árváltoztatás jogát fenntartjuk. Az esetleges elírásokért és technikai hibákért felelősséget nem vállalunk.

Budapest, XXII.kerület
 

Ingatlan adatai
Irányár: 175 000 000 Ft
Típus: ház
Kategória: eladó
Alapterület: 119 m2
Fűtés: -
Állapota: új
Szobák száma: 5
Építés éve: 2026
Szintek száma: -
További adatok
Telekterület: 400 m2
Kert mérete: 400 m2
Erkély mérete: 21 m2
Felszereltség: -
Parkolás: -
Kilátás: kertre néző
Egyéb extrák:  
-
Hirdető adatai
Hirdető neve: GDN Ingatlanhálózat
Kapcsolattartó: Tromposch Edina
Hirdető telefonszáma: +36-30-220-9539
Honlap: -

Üzenetet küldhet a hirdetőnek:
Az Ön neve:
Az Ön e-mail címe:
Üzenet: