Részletes leírás
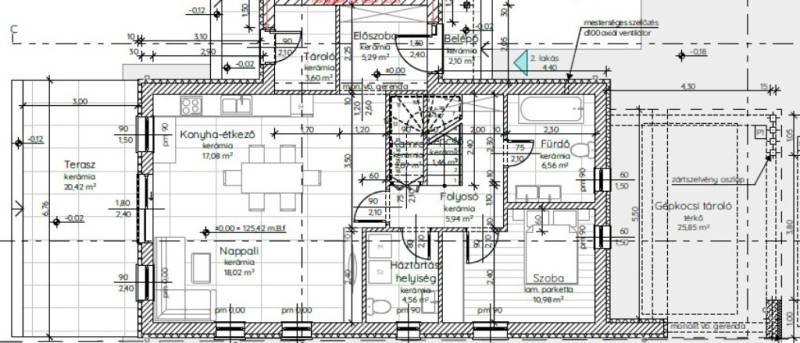
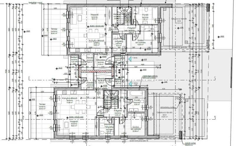
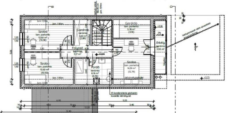
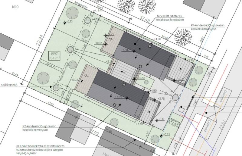
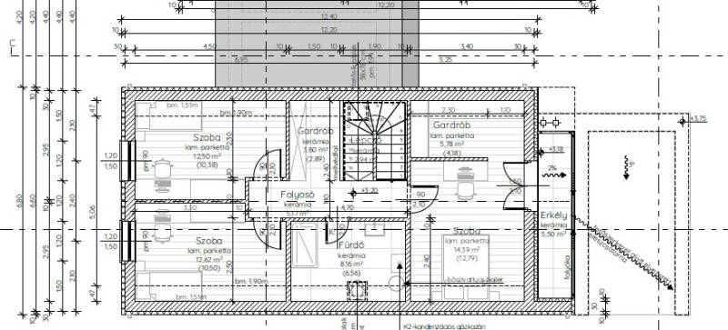
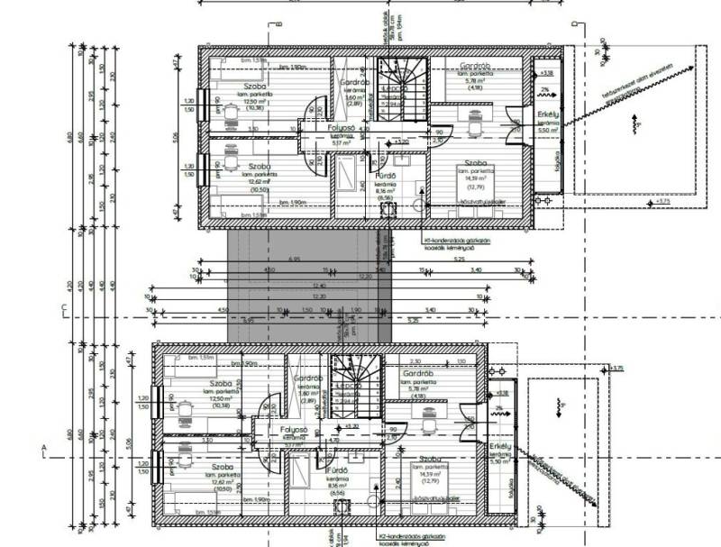
Vecsés legkedveltebb kertvárosi részén , mellékutcában újonnan épülő összesen 140 m2-es, nappali + 4 szobás, 2 fürdőszobás kétszintes, családi házak 450 m2-es telekrészekkel 2026 év végi átadással kulcsrakészen eladó. A házak egymás mellett helyezkednek el, 2 autóval fedett beállási lehetőség (37m2)az udvaron, terasz (20m2),tároló (3,6m2). Műszaki tartalom, felszereltség:Az ingatlan korszerű, költséghatékony és energiatakarékos megoldásokkal épül:- 10 cm vastag külső hőszigetelés- Tégla falazat, LEIER v Porotherm 30N+F,válaszfalak 10 Porotherm 10N+F tégla- 3 rétegű, hőszigetelt műanyag nyílászárók- 24kw kondenzációs cirkó plusz meleg víz tároló- padlófűtés minden helyiségben,2 gadrób - 25 cm födém hőszigetelés - Redőnyök , fehér színben- 2 db hűtő-fűtő klíma- Elektromos kapu- saját kertkapcsolat- nagy teraszA település infrastruktúrája kiváló: üzletek, iskola, óvoda, egészségügyi ellátás és tömegközlekedés könnyen elérhető, Budapest gyorsan megközelíthető.Magyarország piacvezető hitelközvetítője által egyedi kamatkedvezményekkel és bankfüggetlen, díjmentes hitelügyintézéssel is segítjük vásárlását. Amennyiben minimum 25 millió Ft. összegű ingatlanfedezetes hitelt vesz igénybe általunk 500 Euro értékű Club Karos Spa**** wellness utalványt adunk ajándékba. (Az akció kizárólag a Money Network ügynökhálózatán keresztül beadott és folyósított jelzáloghitelekre érvényes.) Hívjon bizalommal!

Pest megye, Vecsés
 

Ingatlan adatai
Irányár: 129 900 000 Ft
Típus: ház
Kategória: eladó
Alapterület: 140 m2
Fűtés: gáz (cirko)
Állapota: új
Szobák száma: 5
Építés éve: 2026
Szintek száma: -
További adatok
Telekterület: 450 m2
Kert mérete: 450 m2
Erkély mérete: 20 m2
Felszereltség: -
Parkolás: -
Kilátás: -
Egyéb extrák:  
-
Hirdető adatai
Hirdető neve: RARIK-1986 Kft.
Kapcsolattartó: Kabát József
Hirdető telefonszáma: 06-70-542-1053
Honlap: -

Üzenetet küldhet a hirdetőnek:
Az Ön neve:
Az Ön e-mail címe:
Üzenet: