Részletes leírás
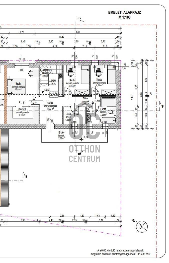
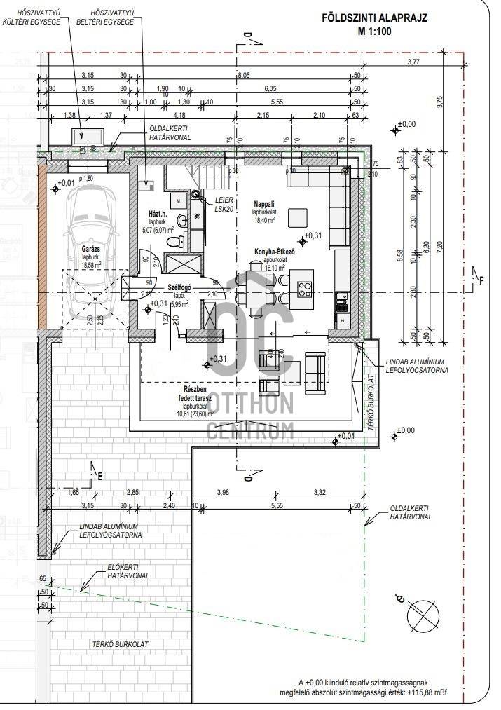
Kulcsrakész tervek, azonnali építkezés: Projekttelek Palotaújfalun!!!Már régóta az jár a fejében, hogy szeretne egy zöld, élhető, kisvárosias környezetben, de mégis Budapesten élni, akkor megtalálta az ideális helyszínt!! Kiváló lehetőség várja Rákospalota–Palotaújfalu frissen parcellázott, nívós negyedében. Megvételre kínálok egy 464 m²-es telekrészt, amely teljes körű tervdokumentációval és jogerős építési engedéllyel rendelkezik, így a munkálatok várakozás nélkül, azonnal indíthatók.Az ingatlan főbb jellemzői:A telek egy modern ikerház egyik felének ad helyet. A telekmegosztás már a jóváhagyott terveknek megfelelően megtörtént, biztosítva a jog tiszta helyzetet.Kötött külső, szabad belső: Az épület külső megjelenése és paraméterei a jogerős engedély miatt fixek, azonban a belső terek (válaszfalak, burkolatok, színek) teljesen a saját ízlésére szabhatók.Tágas élettér: A tervezett lakóegység összesen 141,77 m², elosztása pedig ideális családok számára:Földszint: Tágas amerikai konyhás nappali és praktikus háztartási helyiség.Emelet: Három különálló hálószoba és egy kényelmes fürdőszoba.Extrák: Saját, különálló garázs a vételár részét képezi.Fontos tudnivalók a kivitelezésről: Mivel az ikerház két fele szerkezetileg összefügg, a két lakóegység építését egyidejűleg kell elkezdeni. Olyan partnert keresünk, aki készen áll a projekt mielőbbi elindítására. A tervezésnél elsődleges szempont volt a privát szféra, így a lakások elszeparáltsága és a minimális áthallás garantált.Környezet és lokáció: A telek egy csendes, zöldövezeti, kizárólag új építésű házakkal beépült utcában található. A nyugalom mellett a közlekedés is kiváló:Gyors bejutás a belvárosba: Az M3-as és M0-s autópályák percek alatt elérhetők. Kiváló infrastruktúra autóval és tömegközlekedéssel egyaránt.Szeretné megtekinteni a részletes tervdokumentációt vagy a helyszínt? Szívesen segítek a további lépésekben!

Budapest, XV.kerület
 

Ingatlan adatai
Irányár: 75 000 000 Ft
Típus: telek
Kategória: eladó
Alapterület: 464 m2
Fűtés: -
Állapota: -
Szobák száma: -
Építés éve: -
Szintek száma: -
További adatok
Telekterület: 464 m2
Kert mérete: -
Erkély mérete: -
Felszereltség: -
Parkolás: -
Kilátás: -
Egyéb extrák:  
-
Hirdető adatai
Hirdető neve: Otthon Centrum
Kapcsolattartó: Nagy János
Hirdető telefonszáma: +36 70 716 9736
Honlap: -

Üzenetet küldhet a hirdetőnek:
Az Ön neve:
Az Ön e-mail címe:
Üzenet: