Részletes leírás
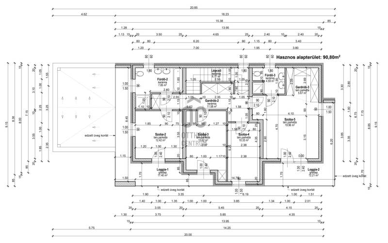
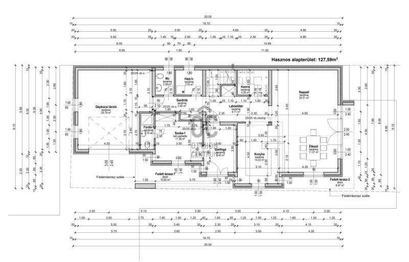
Az ingatlan, amit most bemutatunk, tökéletes választás családosok számára, akik egy új, modern otthonra vágynak Debrecen egyik legkeresettebb városrészében, Biharikertben. A projekt kezdete 2026.ÁprilisBefejezése: 2027.MárciusAz ingatlan alapterülete 218 nm, ami bőséges teret biztosít a családi élethez, és a 1066 nm-es telek lehetőséget ad a szabadidő eltöltésére, kertészkedésre, vagy akár egy medence kialakítására is. Az ingatlan kiváló állapotban van, így azonnal költözhető, ráadásul minimalista kialakítása miatt könnyen személyre szabható. A házban összesen 6 szoba található, ami elegendő teret biztosít a család minden tagjának. A tágas nappali és az amerikai konyha ideális helyszínt nyújt a közös családi étkezésekhez és baráti összejövetelekhez. A három fürdőszoba pedig garantálja, hogy sosem kell a reggeli rohanásban várakozni. A 19.62 nm-es terasz tökéletes helyszín a pihenésre, ahol a naplementében gyönyörködhetünk, miközben a gyerekek a kertben játszanak. A környék ellátottsága kiváló, hiszen számos bolt, iskola és óvoda található a közelben, így a mindennapi ügyintézés gyerekjáték. A csendes utcák és a barátságos szomszédság ideális környezetet biztosítanak a családi élethez. A közlekedés is remek, hiszen a város központja könnyen elérhető autóval és tömegközlekedéssel egyaránt. A Debreceni Egyetem és a helyi munkahelyek is gyorsan megközelíthetők, így nemcsak otthon, hanem munkahely szempontjából is remek választás. A garázsban két autó parkolására van lehetőség, ami különösen fontos lehet a családosok számára. Ez az ingatlan nem csupán egy ház, hanem egy igazi otthon, ahol a családi értékek és a közös pillanatok kapják a főszerepet.Ha bármilyen kérdésed van, vagy szeretnéd megtekinteni ezt a csodás ingatlant, bátran keresd fel csapatunkat! Mi itt vagyunk, hogy segítsünk neked megtalálni a tökéletes otthont!

Hajdú-Bihar megye, Debrecen
 

Ingatlan adatai
Irányár: 229 000 000 Ft
Típus: ház
Kategória: eladó
Alapterület: 218 m2
Fűtés: gáz (cirko)
Állapota: új
Szobák száma: 6
Építés éve: 2026
Szintek száma: -
További adatok
Telekterület: 1 066 m2
Kert mérete: 1 066 m2
Erkély mérete: 20 m2
Felszereltség: -
Parkolás: -
Kilátás: -
Egyéb extrák:  
-
Hirdető adatai
Hirdető neve: Otthon Centrum
Kapcsolattartó: Nemes Edit
Hirdető telefonszáma: +36 70 716 9906
Honlap: -

Üzenetet küldhet a hirdetőnek:
Az Ön neve:
Az Ön e-mail címe:
Üzenet: