Részletes leírás
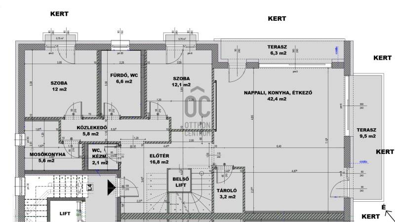
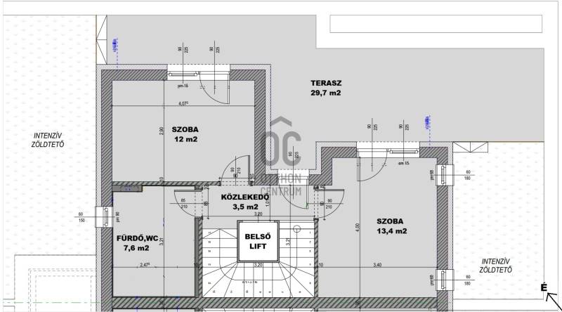
XII. ORBÁNHEGY, CSENDES, ÚJÉPÍTÉSŰ 5 SZOBÁS, 46 m2 TERASSZAL, LAKÁSON BELÜL SAJÁT LIFTTELXII. Kerület ORBÁNHEGY körzetében, CSENDES (átmenőforgalomtól mentes), ZÖLDÖVEZETI ŐSFÁS MELLÉKUTCÁBAN, SÍK, téglalap alakú, 1127 m2-es TELKEN épülő, 4 LAKÁSOS, LIFTES TÁRSASHÁZBAN kínálunk eladásra, egy FÖLDSZINTI, DK-i tájolású, KERTRE NÉZŐ, 165 m2-es (46 m2 terasz 1/3 méretének a beszámítása mellett. A terasz, és a lakáson belüli falak alatti területek nélküli méret 150 m2) 5 SZOBÁS, 2 FÜRDŐSZOBÁS, BELSŐ KÉT SZINTES, LAKÁSON BELÜL SAJÁT LIFTTEL, 2 db TEREMGARÁZS HELLYEL (+17 Mft/db), és egy db 14 m2 tárolóval (+18 Mft) rendelkező, PRÉMIUMKATEGÓRIÁS újépítésű lakást.Az ingatlan autóval és tömegközlekedéssel is jól megközelíthető: buszmegálló 5 perc sétatávolságra, ill. a MOM PARK és a HEGYVIDÉK BEVÁSÁRLÓKÖZPONT is PERCEK ALATT ELÉRHETŐ.Elérhető lakások•L1 lakás: 105,63 m² + 12 m² terasz – 378 MFt•L2 lakás: 113 m² + 12 m² terasz – 398 MFt•L3 lakás: 150 m² + 53 m² terasz/erkély – 580 MFt•L4 lakás: 150 m² + 46 m² terasz/erkély – 570 MFtMŰSZAKI TARTALOM – PRÉMIUM SZINTŰ MEGOLDÁSOKAz épület a 2022. évi AA+ energetikai követelményeknek megfelelően, a legmodernebb gépészeti technológiákkal és KNX intelligens épületautomatika rendszerrel kerül kivitelezésre.Lakásonként egyedi gépészet:•Mennyezeti hűtés–fűtés és padlófűtés, harmatpont-érzékelővel•Panasonic víz–levegő hőszivattyús rendszer a fűtés és a használati melegvíz biztosítására•KNX intelligens otthon rendszer, melynek segítségével akár mobiltelefonról, távolról is vezérelhető a fűtés, hűtés, világítás stb.•Zehnder hővisszanyerős szellőztetőrendszer, folyamatos friss, szűrt levegővelTovábbi műszaki és kényelmi elemek:•Háromrétegű hőszigetelt üvegezésű fa nyílászárók•Távirányítással működtethető alumínium redőnyrendszer•Falsíkban záródó belső ajtók•Minőségi hideg- és melegburkolatok•Villeroy & Boch szaniterek és fürdőszobabútorok•Hansgrohe csaptelepek•Hüppe zuhanykabinok•Okosotthon-kompatibilis kapcsolók és konnektorok•Fűtött lehajtó a mélygarázsba•Automata garázs- és kertkapu•Riasztórendszer-, TV- és internet-előkészítés•Videó kaputelefon•Épített kert automata öntözőrendszerrel•Kerti világítás•Az épületben a teremgarázs szintről induló felvonó kerül beépítésre BELSŐÉPÍTÉSZET ÉS EGYEDI IGÉNYEK:A lakások a Geppetto Belsőépítész Iroda által készített részletes belsőépítészeti kiviteli tervek alapján valósulnak meg.A kivitelezés során – a műszaki lehetőségek figyelembevételével – lehetőség van a lakások vevői igény szerinti egyedi módosítására.A lakások átadásának időpontja: 2027. II. félévFIZETÉSI ÜTEMEZÉS:•Szerződéskötéskor: 10% foglaló + 10% vételárelőleg•A fennmaradó vételár megfizetése a készültségi szintnek megfelelően, további 6 részletben történikTISZTELT ÉRDEKLŐDŐ!TÖBB MINT 20 ÉVE FOGLALKOZOM INGATLANOK ÉRTÉKESÍTÉSÉVEL MAGYARORSZÁG PIACVEZETŐ INGATLANKÖZVETÍTŐ HÁLÓZATÁNÁL, AZ OTTHON CENTRUMNÁL. AMENNYIBEN SZÁNDÉKÁBAN ÁLL INGATLANT ELADNI - A LEGRÖVIDEBB IDŐN BELÜL, GARANTÁLT JOGI, ÉS BANKI HÁTTÉRREL - KERESSEN BIZALOMMAL, HOGY EGY HELYSZÍNI FELMÉRÉST KÖVETŐ INGYENES ÉRTÉKMEGÁLLAPÍTÁS UTÁN, EGYÜTT TUDJUNK MŰKÖDNI AZ ÖN INGATLANÁNAK AZ ELADÁSÁBAN IS!Projekt bemutatásaXII. ORBÁNHEGY, CSENDES, ÚJÉPÍTÉSŰ 3, 4, és 5 SZOBÁS PRÉMIUMKATEGÓRIÁS LAKÁSOKXII. Kerület ORBÁNHEGY körzetében, CSENDES (átmenőforgalomtól mentes), ZÖLDÖVEZETI ŐSFÁS MELLÉKUTCÁBAN, SÍK, téglalap alakú, 1127 m2-es TELKEN épülő, 4 LAKÁSOS, LIFTES TÁRSASHÁZBAN kínálunk eladásra, 4 db, DNY-i és DK-i tájolású, KERTRE NÉZŐ, 111,6 – 176 m2-ig (teraszok 1/2, és 1/3 méreteinek a beszámítása mellett) 3, 4 és 5 SZOBÁS, TEREMGARÁZS HELYEKKEL (+17 Mft/db), FELSZÍNI AUTÓBEÁLLÓKKAL (+13 Mft/db), és 14 m2 tárolókkal (+18 Mft/db) rendelkező, PRÉMIUMKATEGÓRIÁS újépítésű lakásokat.Az ingatlan autóval és tömegközlekedéssel is jól megközelíthető: buszmegálló 5 perc sétatávolságra, ill. a MOM PARK és a HEGYVIDÉK BEVÁSÁRLÓKÖZPONT is PERCEK ALATT ELÉRHETŐ.Elérhető lakások•L1 lakás: 105,63 m² + 12 m² terasz – 378 MFt•L2 lakás: 113 m² + 12 m² terasz – 398 MFt•L3 lakás: 150 m² + 53 m² terasz/erkély – 580 MFt•L4 lakás: 150 m² + 46 m² terasz/erkély – 570 MFtMŰSZAKI TARTALOM – PRÉMIUM SZINTŰ MEGOLDÁSOKAz épület a 2022. évi AA+ energetikai követelményeknek megfelelően, a legmodernebb gépészeti technológiákkal és KNX intelligens épületautomatika rendszerrel kerül kivitelezésre.Lakásonként egyedi gépészet:•Mennyezeti hűtés–fűtés és padlófűtés, harmatpont-érzékelővel•Panasonic víz–levegő hőszivattyús rendszer a fűtés és a használati melegvíz biztosítására•KNX intelligens otthon rendszer, melynek segítségével akár mobiltelefonról, távolról is vezérelhető a fűtés, hűtés, világítás stb.•Zehnder hővisszanyerős szellőztetőrendszer, folyamatos friss, szűrt levegővelTovábbi műszaki és kényelmi elemek:•Háromrétegű hőszigetelt üvegezésű fa nyílászárók•Távirányítással működtethető alumínium redőnyrendszer•Falsíkban záródó belső ajtók•Minőségi hideg- és melegburkolatok•Villeroy & Boch szaniterek és fürdőszobabútorok•Hansgrohe csaptelepek•Hüppe zuhanykabinok•Okosotthon-kompatibilis kapcsolók és konnektorok•Fűtött lehajtó a mélygarázsba•Automata garázs- és kertkapu•Riasztórendszer-, TV- és internet-előkészítés•Videó kaputelefon•Épített kert automata öntözőrendszerrel•Kerti világítás•Az épületben a teremgarázs szintről induló felvonó kerül beépítésre BELSŐÉPÍTÉSZET ÉS EGYEDI IGÉNYEK:A lakások a Geppetto Belsőépítész Iroda által készített részletes belsőépítészeti kiviteli tervek alapján valósulnak meg.A kivitelezés során – a műszaki lehetőségek figyelembevételével – lehetőség van a lakások vevői igény szerinti egyedi módosítására.A lakások átadásának időpontja: 2027. II. félévFIZETÉSI ÜTEMEZÉS:•Szerződéskötéskor: 10% foglaló + 10% vételárelőleg•A fennmaradó vételár megfizetése a készültségi szintnek megfelelően, további 6 részletben történikTISZTELT ÉRDEKLŐDŐ!TÖBB MINT 20 ÉVE FOGLALKOZOM INGATLANOK ÉRTÉKESÍTÉSÉVEL MAGYARORSZÁG PIACVEZETŐ INGATLANKÖZVETÍTŐ HÁLÓZATÁNÁL, AZ OTTHON CENTRUMNÁL. AMENNYIBEN SZÁNDÉKÁBAN ÁLL INGATLANT ELADNI - A LEGRÖVIDEBB IDŐN BELÜL, GARANTÁLT JOGI, ÉS BANKI HÁTTÉRREL - KERESSEN BIZALOMMAL, HOGY EGY HELYSZÍNI FELMÉRÉST KÖVETŐ INGYENES ÉRTÉKMEGÁLLAPÍTÁS UTÁN, EGYÜTT TUDJUNK MŰKÖDNI AZ ÖN INGATLANÁNAK AZ ELADÁSÁBAN IS!

Budapest, XII.kerület
 

Ingatlan adatai
Irányár: 570 000 000 Ft
Típus: lakás (újépítésű)
Kategória: eladó
Alapterület: 165 m2
Fűtés: -
Állapota: új
Szobák száma: 5
Építés éve: 2026
Szintek száma: -
További adatok
Telekterület: -
Kert mérete: -
Erkély mérete: 46 m2
Felszereltség: -
Parkolás: -
Kilátás: kertre néző
Egyéb extrák:  
-
Hirdető adatai
Hirdető neve: Otthon Centrum
Kapcsolattartó: Csopaki Balázs
Hirdető telefonszáma: +36 70 716 8476
Honlap: -

Üzenetet küldhet a hirdetőnek:
Az Ön neve:
Az Ön e-mail címe:
Üzenet: