Részletes leírás
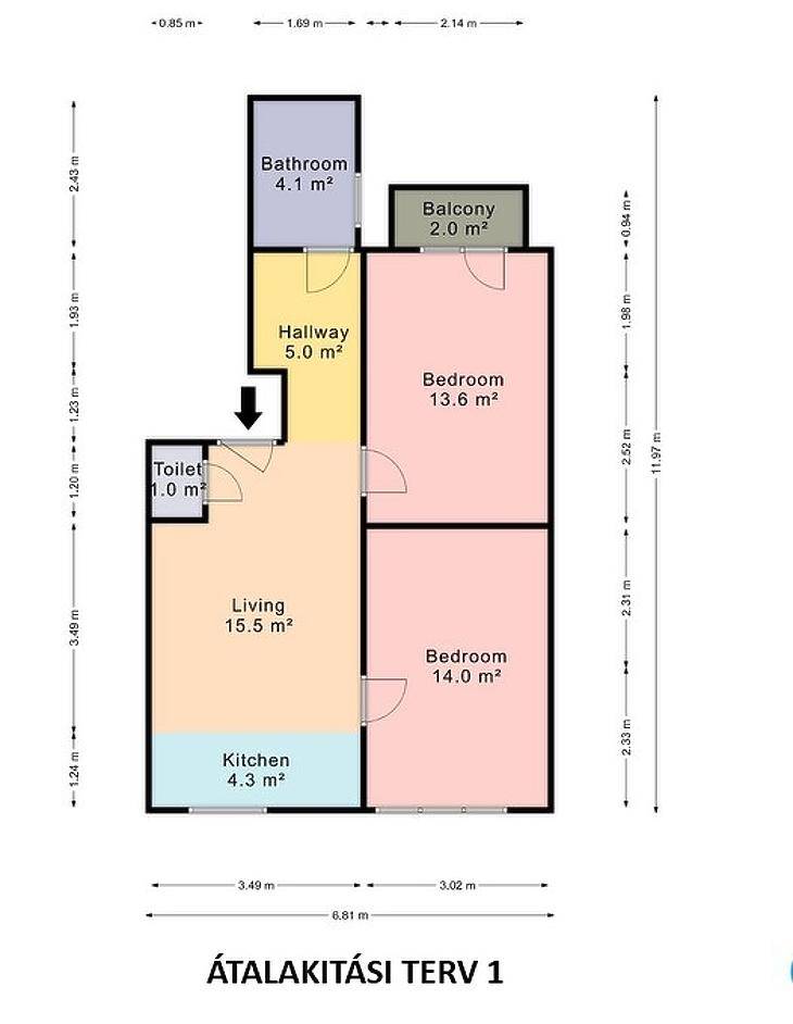
Budapest XIII. kerületében, a Visegrádi utcában eladó egy 60 nm-es, felújított, első emeleti lakás egy jó állapotú, kevés lakásos Bauhaus stílusú épületben. A nyugati tájolású ingatlan utcai és belső udvari kilátással is rendelkezik, 3 méteres belmagasságának és mindössze egy tartóoszlopának köszönhetően a keretfalakon kívül szabadon alakítható. Két szobás, 2 nm-es erkély tartozik hozzá, fűtése gáz cirkó. Jelenleg kozmetikai szalonként működik, diszkréció miatt csak néhány fotó érhető el. A lokáció kiváló: Thurzó park mellett helyezkedik el, remek közlekedéssel (M3-as metró, számos busz, és villamos), bevásárlási lehetőségekkel, éttermekkel, pár perc sétára. Kérdés, illetve megtekintési szándék esetén hívjon minket bizalommal! Ügyfeleink részére díjmenetes bankfüggetlen hitelügyintézést tudunk kínálni!

Budapest, XIII.kerület
Visegrádi utca 

Ingatlan adatai
Irányár: 93 900 000 Ft
Típus: lakás (tégla)
Kategória: eladó
Alapterület: 60 m2
Fűtés: gáz (cirko)
Állapota: felújított
Szobák száma: 2
Építés éve: 1940
Szintek száma: -
További adatok
Telekterület: -
Kert mérete: -
Erkély mérete: -
Felszereltség: -
Parkolás: -
Kilátás: utcai
Egyéb extrák:  
-
Hirdető adatai
Hirdető neve: MPD Hungary Kft.
Kapcsolattartó: Casa Profitto Nuovo Kft.
Hirdető telefonszáma: +36704147759
Honlap: -

Üzenetet küldhet a hirdetőnek:
Az Ön neve:
Az Ön e-mail címe:
Üzenet: