Részletes leírás
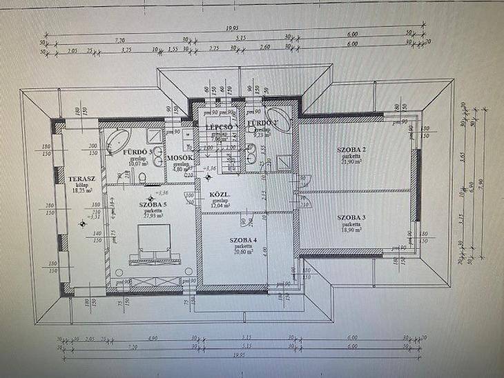
ÁLMAI OTTHONA ÉPÜL SZENTGYÖRGYTELEPEN!Eladó egy 300 m²-es, 6 szobás, luxus okos otthon Budapest XVI. kerületének egyik legcsendesebb mellékutcájában – 1078 m²-es, parkosított telken!ÚJ ÉPÍTÉSŰ, KÖRBEJÁRHATÓ, ENERGIA HATÉKONY OTTHON – MINDEN IGÉNYT KISZOLGÁL!Főbb jellemzők:•30-as Porotherm tégla falazat + 20 cm prémium hőszigetelés (REVCO)•A+ energetikai besorolás, „H” tarifa kiépítve•Modern Mitsubishi Zubadan 14KW hőszivattyús fűtés padlófűtéssel + törölközőszárítós radiátorok•6 db hűtő-fűtő klíma az árban•Elektromos autótöltés előkészítve•Napelem rendszer előkészítés•Motoros, távirányítós redőnyök + szúnyoghálók•Okos otthon rendszer – riasztó, kamerák, mozgásérzékelők•Luxus burkolatok – egyedileg választhatók a kivitelezővel egyeztetveTökéletes elrendezés – világos, élhető terek!Földszint:•Tágas előszoba•Amerikai konyhás nappali + étkező•1 szoba•Fürdőszoba mellékhelyiséggel•Közlekedő•Kétállásos, 40 m²-es garázs•Kerti terasz (66,38nm)Emelet:•4 külön nyíló szoba•2 fürdőszoba (kád + zuhanyzó + WC)•Külön mosókonyha•Tágas közlekedő•Tetőterasz (18,25nm)Parkolás:•2 autó számára garázs•További 3–4 autó számára beállási lehetőség a telken belülLokáció – kiváló közlekedés, nyugodt környezet:•Pár perc sétára: 7G, 46, 130, 996 A buszok•Csendes, zöldövezeti környezet, mégis gyorsan elérhető belvárosFinanszírozás:•Hitelre is megvásárolható•CSOK támogatás igénybe vehető•Díjmentes, bankfüggetlen hitelügyintézés – egyedi kedvezményekkelÁra: 369,9 M FtÁtadás várhatóan: 2026. I. negyedévNe maradjon le róla! Kérjen még ma időpontot a megtekintésre!Vevőink számára a közvetítés DÍJMENTES!Ez a luxusingatlan nem csupán egy ház, hanem egy életstílus.Költözzön a jövőbe – kényelmesen, okosan, kompromisszumok nélkül!

Budapest, XVI.kerület
Rákosszentmihály 

Ingatlan adatai
Irányár: 369 900 000 Ft
Típus: ház
Kategória: eladó
Alapterület: 300 m2
Fűtés: egyéb
Állapota: új
Szobák száma: 6
Építés éve: 2025
Szintek száma: -
További adatok
Telekterület: 1 078 m2
Kert mérete: 1 078 m2
Erkély mérete: -
Felszereltség: -
Parkolás: -
Kilátás: kertre néző
Egyéb extrák:  
-
Hirdető adatai
Hirdető neve: MPD Hungary Kft.
Kapcsolattartó: Szentmihályi Házak Ingatlan Kft.
Hirdető telefonszáma: +36704585029
Honlap: -

Üzenetet küldhet a hirdetőnek:
Az Ön neve:
Az Ön e-mail címe:
Üzenet: