Részletes leírás
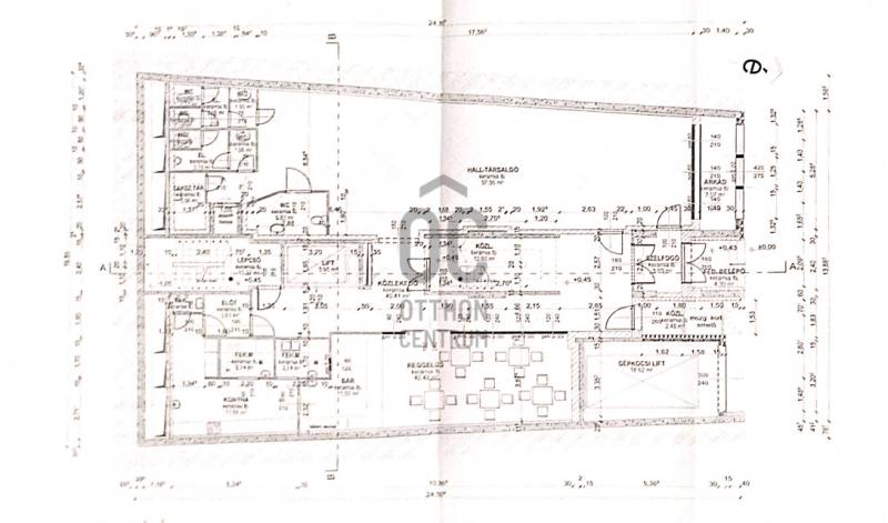
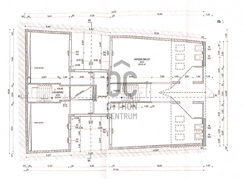
Budapest VIII. kerületének egyik legdinamikusabban fejlődő részén, Józsefváros frekventált elhelyezkedésű területén kínálunk megvételre egy 2.883 m² alapterületű, befejezendő állapotú, többfunkciós fejlesztésre alkalmas épületet, amely kivételes befektetési potenciált hordoz magában.Az ingatlan 7 szint + földszint kialakítású, modern szerkezeti adottságokkal rendelkezik.Az épület különlegessége, hogy –3 szint mélységben pinceszintekkel rendelkezik,(egyforma méretben) így liftes parkolás, mélygarázs vagy automata parkolórendszer kialakítása is lehetséges, ami a belvárosi lokációban rendkívül értékes és ritka adottság.Szerkezeti rendszer – méretekkelElem Szerkezet Méret / vastagságFödém Monolit vasbeton20–22 cmFő teherhordó falak Tégla + vasbeton30 cmVálaszfalakTégla10–12 cmHomlokzati fal Tégla + hőszigetelés30 cm tégla + 10 cm EPSTetőfödémVasbeton22–25 cmErkélylemezVasbeton18–20 cmHőszigetelési rétegrendTerület RétegrendHomlokzat30 cm tégla + 10 cm grafitos EPSTető22 cm vb. + 15 cm hőszigetelés + víz szigetelésZöldtető VB födém + 15 cm XPS + víz szigetelés + drén + termőrétegFödémek20–22 cm vasbetonNyílászárók2 rétegű hőszigetelt üvegGépészetRendszer LeírásFűtés Központi cirkóMeleg víz KözpontiVízvezeték Hideg + meleg + cirkulációCsatorna Központi hálózatBefektetői előny – műszaki Vasbeton szerkezet → időtálló10–15 cm hőszigetelés → alacsony rezsi Tégla falazat → jó értéktartás Zöldtető → jobb nyári klíma Jó hangszigetelésParkolószintek száma–1 szint,–2 szint, –3 szint Összesen: 3 teljes mélygarázs szintParkolóhely2,5 m × 5,0 m = 12,5 m²Közlekedősávval együtt25–30 m² / autóMűszaki kialakításElem MegoldásSzerkezetVasbeton pillér–gerendaFödémvastagság25–30 cm vasbetonRámpaVasbeton, csúszásgátló bevonattalSzellőzés Gépiesített elszívás (CO érzékelővel)Világítás LED, mozgás érzékelőTűzvédelem Tűzszakaszok, sprinkler előkészítésBelmagasságmin. 2,20 mTeherbírás>2,5 t / gépjárműA földszinten melegkonyhás vendéglátó egység (étterem, bár, kávézó) is kialakítható, míg az alsó szinteken –3 szintig liftes parkolórendszer tervezhető, ami a belvárosi elhelyezkedés miatt kiemelkedő versenyelőnyt jelent.Az épület jelenleg üres, így a leendő tulajdonos teljes szabadságot kap a funkcionális kialakításban: ideális lehet apartmanháznak, irodaháznak, hotelnek vagy hostelneegészségügyi, oktatási vagy szolgáltató központnak ,illetve vegyes funkciójú (lakó + kereskedelmi) fejlesztésnek.A lokáció kiemelkedő: Józsefváros Budapest egyik leggyorsabban megújuló városrésze, kiváló tömegközlekedési kapcsolatokkal (metró, villamos, busz), valamint sétatávolságban elérhető üzletekkel, éttermekkel, szolgáltatásokkal és egyetemi intézményekkel.A környék folyamatos fejlődése, a növekvő kereslet és a belvárosi elhelyezkedés garantálja, hogy az ingatlan hosszú távon is stabil, értékálló és magas hozamú befektetés.Ritka lehetőség olyan befektetők számára, akik egy valódi, nagy léptékű belvárosi projektben gondolkodnak, saját koncepció alapján.Egyedi igényekre szabott lakáshitelekkel állunk rendelkezésére.Bankfüggetlen Hitelcentrumunk az országban elérhető összes bank és hitelintézet ajánlatát versenyezteti az Ön számára díjmentesen.Munkatársaink nagy szakmai tapasztalattal, teljes körű CSOK PLUSZ és OTTHON START PROGRAM ügyintézéssel várják Önt előre egyeztetett időpontban akár a normál munkaidő után is.Bővebb információért és a megtekintéssel kapcsolatban hívjon bizalommal!

Budapest, VIII.kerület
 

Ingatlan adatai
Irányár: 1 500 000 000 Ft
Típus: kereskedelmi/ipari ingatlan
Kategória: eladó
Alapterület: 2 883 m2
Fűtés: -
Állapota: -
Szobák száma: -
Építés éve: 2013
Szintek száma: -
További adatok
Telekterület: -
Kert mérete: -
Erkély mérete: -
Felszereltség: -
Parkolás: -
Kilátás: -
Egyéb extrák:  
-
Hirdető adatai
Hirdető neve: Otthon Centrum
Kapcsolattartó: Mauterer Szilvia
Hirdető telefonszáma: +36 70 716 8786
Honlap: -

Üzenetet küldhet a hirdetőnek:
Az Ön neve:
Az Ön e-mail címe:
Üzenet: