Részletes leírás
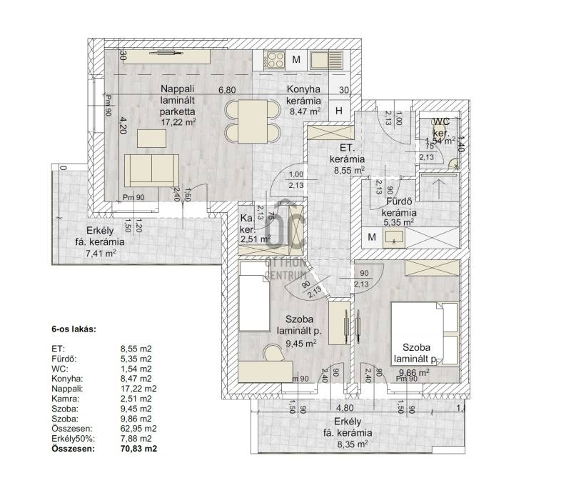
Prémium minőségű, teljesen berendezett, alig lakott lakás eladó Hegykőn !Hegykő kedvelt, nyugodt részén, Soprontól mindössze 17 km-re, 2020-ban épült, modern társasházban kínálunk megvételre egy rendkívül igényesen kialakított, azonnal költözhető lakást. Főbb paraméterek:Alapterület: 71 m²Emelet: 1. emeletElrendezés: amerikai konyhás nappali , 2 hálószoba, 2 erkély, külön WC, kamraFűtés: házközponti fűtés ( Hibrid hőszivattyú, gáz ) , padlófűtéssel, radiátorokkalHűtés: klímaberendezésParkolás: saját gépkocsi-beálló ( +2,9 M Ft )Állapot: újszerű, prémium kivitelezés, minőségi anyagokkal, berendezéssel.✨ Amitől igazán különleges:- Teljes berendezéssel és bútorzattal eladó – csak költözni kell ( tényleg teljes berendezéssel, beleértve mosó és szárítógépet bútorokat, MINDENT! )- Igényes konyhabútor Bosch konyhagépekkel ( sütő, mikró, kerámia főzőlap, elszívó , mosogató, hűtő ) - Modern, letisztult belső design- Minőségi bútorok, burkolatok és egyedi megoldások- Világos, jól élhető terek- Műanyag külső nyílászárók, 3 rétegű üvegezéssel,- Motoros, alumínium redőnyök- Kiváló energiahatékonyság, alacsony fenntartási költségek- A lakást alig lakták, csak időszakos tartózkodásra használták. ElhelyezkedésHegykő kiváló infrastruktúrával rendelkező, folyamatosan fejlődő település, termálfürdőjéről és nyugodt környezetéről ismert. Ideális választás állandó lakhatásra, nyaralónak vagy befektetésnek is egyaránt hiszen a jelenlegi tulaj vissza is bérelné.ÖsszegzésEz a lakás tökéletes választás azok számára, akik modern, igényes otthont keresnek kompromisszumok nélkül, és fontos számukra a jó környezet és akár az azonnali költözés lehetősége.Hitelre van szüksége??Az Otthon Centrum az ország egyik legnagyobb és legmegbízhatóbb hitelközvetítőjeként, teljes körű és díjmentes hitelügyintézéssel, biztosításkötéssel áll rendelkezésére!Kérje személyre szabott ajánlatunkat Kollégáinktól!

Győr-Moson-Sopron megye, Hegykő
 

Ingatlan adatai
Irányár: 89 990 000 Ft
Típus: lakás (tégla)
Kategória: eladó
Alapterület: 71 m2
Fűtés: házközponti egyedi méréssel
Állapota: -
Szobák száma: 3
Építés éve: 2020
Szintek száma: -
További adatok
Telekterület: -
Kert mérete: -
Erkély mérete: 16 m2
Felszereltség: -
Parkolás: -
Kilátás: utcai
Egyéb extrák:  
-
Hirdető adatai
Hirdető neve: Otthon Centrum
Kapcsolattartó: Németh Zsolt
Hirdető telefonszáma: +36 70 388 5886
Honlap: -

Üzenetet küldhet a hirdetőnek:
Az Ön neve:
Az Ön e-mail címe:
Üzenet: