Részletes leírás
Projekt bemutatásaAki többre vágyik, mint egy átlagos lakópark, most hazaérkezett! Itt élni, itt lakástulajdonosnak lenni, egyet jelent a minőséggel.Az épületrőlA pesti diplomatanegyed legszebb utcájában épül, a megjelenésében, műszaki tartalmában és a lakáskínálata tekintetében egyaránt unikális, Liget Villa Lakópark. Az épületbe érve, egy elegáns lobby és recepcióra érkezünk majd. Innen a három épületet egy kerti úton, passzázs köti majd össze. A tervezés során nagy hangsúlyt kapott a családi igényekre tervezett lakás minőségi használhatósága. Ablakos konyhák, master bedroom-ok, dupla fürdőszobák, gardrób és háztartási helyiségek is helyet kapnak a lakásban. Kiemelten jól bútorzható, két irányba tájolt lakások kerülnek kialakításra. A földszinti lakásokhoz 50-100 m2-es privát kertek, míg a közös területeken tájépítész által tervezett reprezentatív kertet alakítunk ki. A lakásokban mennyezeti hűtés-fűtés biztosítja a téli-nyári kellemes komfortérzetet. A nyílászárók 3 rétegű üveggel, alu-fa kivitelben kerülnek beépítésre. A lakások ára tartalmazza alapárban az alu elektromos redőnyöket és okosotthon kiépítést is. Magas minőségű olasz és spanyol hidegburkolatválasztékban akár 60x60 cm-es lapok is válaszhatóak majd. A fa parketta és az átlag feletti minőség szaniterek, szintén alapárban válaszhatóak a lakásokba. Az épületek alatti mélygarázsban gépkocsibeállók és tárolók kerülnek kialakításra. A környékről:A környék közlekedése kiváló. 5 perc sétával elérhető a Andrássy úton a kisföldalatti. A szomszédos Balzac utcában és Dózsa György úton is számos buszjárat és troli is közlekedik. A város számos pontjára, akár átszállás nélkül is eljuthatunk. Ha pedig autóval közlekedünk, az M3 autópálya pár perc alatt elérhető. A Városligeti fasor két oldalán található szervízúton, parkolnia is lehet a Liget Villa Lakóparkba érkezőknek.Előnyök:A Liget Villa Lakpark lakásai, tökéletes választás azoknak, akik szeretnék élvezni a városi kényelmet anélkül, hogy lemondanának a természet közelségéről és a csendes életformáról. A belváros és a zöld liget is sétatávolságban elérhető. A gyerekek számára paradicsom a Városliget. Játszóterek, tó, sportpályák, állatkert, minden, amit egy gyerek csak kívánhat egy parkban. A közelben pedig a kultúrát és a sportos életformát kedvelők, egyaránt megtalálják a számukra fontos helyszíneket. Néprajzi, Szépművészeti, Mezőgazdasági múzeumok, a Magyar Zene Háza, a Műcsarnok mind-mind gazdag élményt nyújtanak az oda látogatóknak. A Városliget fasor pedig már önmagában egy oázis a városi környezetben. Hatalmas gesztenyefák, gyönyörű villaépületek, követségek, gimnázium, templom mellett sétálhatunk el nap mint nap. Ide nagyon jó lesz minden nap hazajönni.

Budapest, VII.kerület
 

Ingatlan adatai
Irányár: 348 950 000 Ft
Típus: lakás (újépítésű)
Kategória: eladó
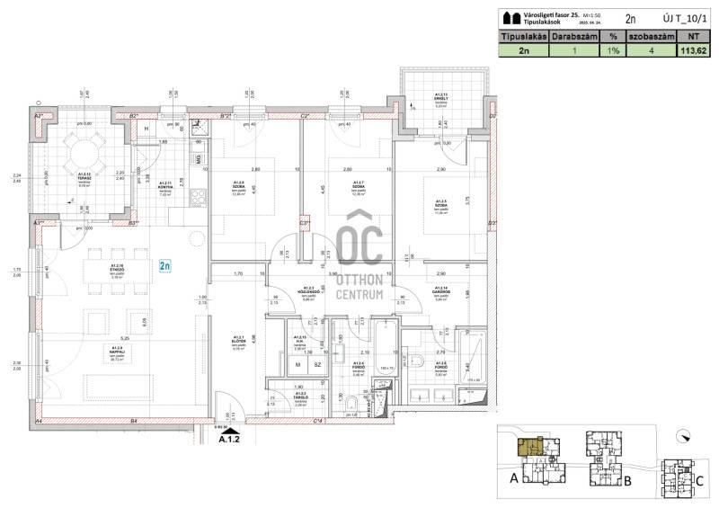
Alapterület: 114 m2
Fűtés: -
Állapota: új
Szobák száma: 4
Építés éve: 2027
Szintek száma: -
További adatok
Telekterület: -
Kert mérete: -
Erkély mérete: 15 m2
Felszereltség: -
Parkolás: -
Kilátás: utcai
Egyéb extrák:  
-
Hirdető adatai
Hirdető neve: Otthon Centrum
Kapcsolattartó: Vincze Edit
Hirdető telefonszáma: +36 70 454 0093
Honlap: -

Üzenetet küldhet a hirdetőnek:
Az Ön neve:
Az Ön e-mail címe:
Üzenet: