Részletes leírás
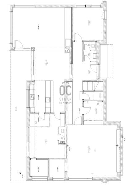
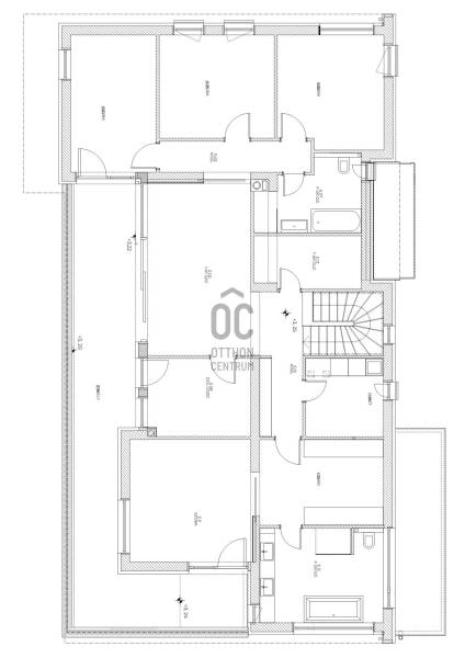
Prémium modern családi ház 2 nappalival, 7 szobával, szaunával – Madárhegy legszebb részén, örök panorámávalBudapest XI. kerületének egyik legkeresettebb, exkluzív lakóövezetében, Madárhegy csendes, rendezett utcájában kínálunk megvételre egy valóban különleges, modern minimál stílusú családi házat. Az ingatlan ritka értéke a teljes intimitás, a természet közelsége és az a nyugalom, amely hosszú távon is stabil értéket és élhető mindennapokat biztosít.Ez az otthon nemcsak méreteiben, hanem gondolkodásmódjában is prémium: két tágas nappalival, hét különálló szobával, szaunával és energiatudatos, alacsony fenntartású műszaki megoldásokkal készült – mindazzal, amire egy modern, családközpontú élethez szükség van.Főbb méretek, alapadatokTeljes lakóterület: 323 nmTerasz: 61 nmErkély: 37 nmKert: kb. 1400 nmTelek mérete: 1661 nmGarázs: 2 autó részére, zártFöldszint – a közös élmények tereA földszint szíve a nagyvonalúan megnyitott nappali–étkező–konyha egység, ahol a háromrétegű, nagyméretű üvegfelületek természetes fényt és közvetlen kapcsolatot biztosítanak a terasszal és a kerttel. Ezek a nyitott terek ideálisak a család számára: közös étkezésekhez, beszélgetésekhez, ünnepekhez vagy akár baráti összejövetelekhez.Földszint:Előtér: 9,15 nmNappali: 32 nmÉtkező: 17,6 nmKonyha: 13,7 nmWC: 3,3 nmDolgozószoba / vendégszoba: 14 nmSportszoba / spórolásra is alkalmas multifunkciós szoba: 18 nmGarázs: 37 nmA földszinti sportszoba igény szerint alakítható edzőtérnek, hobbihelyiségnek vagy akár energiatakarékos tároló- és gépészeti kiegészítő térnek, így a ház működése hosszú távon is gazdaságos marad.Emelet – privát terek és nyugalomAz emeleten kapott helyet a második nappali, amely tökéletes családi pihenőtér, gyerekeknek kialakított lounge vagy csendes esti kikapcsolódás helyszíne lehet. A szint elrendezése ideális nagycsalád számára is: minden hálószoba világos, jól bútorozható és funkcionálisan elkülönül.Közlekedő: 12,4 nmFürdőszoba: 7,7 nmSzobák: 13,5 nm | 13,6 nm | 13,5 nm | 21 nmSzülői háló: 17 nm – teraszkapcsolattal és panorámávalVendégszoba: 9,2 nmSzülői fürdő: 13,2 nmA szülői háló saját, prémium felszereltségű fürdővel és közvetlen teraszkapcsolattal rendelkezik, ahonnan zavartalan kilátás nyílik a zöld környezetre. A földszinten kialakított szauna a mindennapok részévé teszi a pihenést és a regenerálódást.A magas minőségben kialakított konyhát egyedileg gyártott, praktikus beépített bútorok, AEG háztartási gépek és indukciós főzőlap teszik teljessé, míg a bárszékek kellemes teret biztosítanak a kötetlen konyhai beszélgetésekhez. A mindennapi komfortot vízlágyító rendszer és padlófűtés biztosítja.Az enteriőr hangulatát gondosan megtervezett világítás, dizájner lámpák és igényesen kiválasztott burkolatok határozzák meg, amelyek minden részletükben az esztétikumot és a minőséget képviselik. A háztartási helyiség beépített szekrényekkel és praktikus pakolófelületekkel segíti a mosó- és szárítógép melletti házimunkát.Az ingatlan teljes bútorzattal kerül értékesítésre, mivel a berendezések jelentős része egyedileg gyártott, kifejezetten ehhez az otthonhoz tervezett darab.Környezet és elhelyezkedésMadárhegy egyik legnagyobb értéke az egységes utcakép, az alacsony beépítettség és a zöld környezet. A házat utcafronti növényfal védi, így a kert és a terasz teljes privát szférát biztosít.Rövid időn belül elérhetők:több óvoda és bölcsődekiváló állami és magániskolák, valamint nemzetközi intézmények Újbudánbevásárlási lehetőségek, sport- és kirándulóhelyekA környék presztízse folyamatosan növekszik, ami az ingatlant nemcsak szerethető otthonná, hanem biztos hosszú távú befektetéssé is teszi.Műszaki tartalom – energiatudatos prémiumDaikin 11 kW-os hőszivattyú – mennyezethűtés-fűtés és padlófűtésHelios hővisszanyerős szellőztető rendszerLoxone okosotthon rendszer – fűtés, hűtés, árnyékolás telefonról vezérelhetőSchneider ipari kategóriás elektromos elosztó9,5 kW-os napelemes rendszer 8 kW-os Huawei inverterrel.Szaldó elszámolás 2030-igÁtlagos villanyszámla: kb. 5.000 Ft/hóTeljeskörű medence-előkészítés a kertbenEz az ingatlan azoknak készült, akik nem kompromisszumot keresnek, hanem minőséget, tágas közös tereket, családi élményeket és hosszú távon fenntartható megoldásokat Budapest egyik legjobb részén.Vegye fel velem a kapcsolatot, és egyeztessünk egy személyes megtekintést – ez az otthon élőben mutatja meg igazán, miért lehet könnyű beleszeretni.

Budapest, XI.kerület
 

Ingatlan adatai
Irányár: 685 000 000 Ft
Típus: ház
Kategória: eladó
Alapterület: 323 m2
Fűtés: -
Állapota: -
Szobák száma: 9
Építés éve: 2018
Szintek száma: -
További adatok
Telekterület: 1 661 m2
Kert mérete: 1 661 m2
Erkély mérete: 98 m2
Felszereltség: -
Parkolás: -
Kilátás: -
Egyéb extrák:  
-
Hirdető adatai
Hirdető neve: Otthon Centrum
Kapcsolattartó: Bikali Beatrix
Hirdető telefonszáma: +36 70 469 3721
Honlap: -

Üzenetet küldhet a hirdetőnek:
Az Ön neve:
Az Ön e-mail címe:
Üzenet: