Részletes leírás
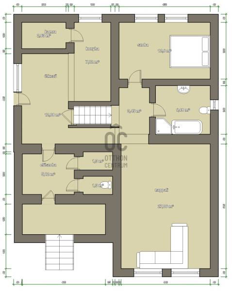
Abonyban, eladásra kínálom ezt az igényesen karbantartott családi házat. Ebbe már csak költöznie kell. Jellemzői:- beton alap, tégla falazat, - 140nm belső hasznos alapterület, - 3 szintes, 4. szintre további szoba kialakítható, - 3 külön nyíló szoba, - plusz tágas, világos nappali, egy csodálatos kandallóval,- pár éve vásárolt, minőségi Baxi, kombi kazán látja el a központifűtést és állítja elő a melegvizet,- plusz újszerű vegyestüzelésű kazán, - 3 hűtő- fűtő klíma, - szuterén szinten, két tágas tároló, - garázs és a kazánház található, - elektromos garázskapu,- riasztórendszer,- hőszigetelt fa nyílászárók, - felújított villanyvezetékek, - külső 10cm nikecell szigetelés, - 40cm födémszigetelés,- zsindely tető, - 800nm parkosított telek.Közelben buszmegálló található. Könnyen elérhető Budapest, az M4 autópályán. Szomszéd városok, Cegléd, Szolnok is 10 perc autóval. Keressen bizalommal, tekintsük meg együtt! Irodánkban bankfüggetlen hitelügyintézéssel állunk ügyfeleink rendelkezésére.A hirdetésben szereplő információk a megbízótól származnak, azért az iroda felelősséget nem vállal.

Pest megye, Abony
 

Ingatlan adatai
Irányár: 76 000 000 Ft
Típus: ház
Kategória: eladó
Alapterület: 140 m2
Fűtés: gáz (cirko)
Állapota: -
Szobák száma: 4
Építés éve: 1980
Szintek száma: -
További adatok
Telekterület: 785 m2
Kert mérete: 785 m2
Erkély mérete: -
Felszereltség: -
Parkolás: -
Kilátás: -
Egyéb extrák:  
-
Hirdető adatai
Hirdető neve: Otthon Centrum
Kapcsolattartó: Rimóczi Ágnes
Hirdető telefonszáma: +36 70 461 9121
Honlap: -

Üzenetet küldhet a hirdetőnek:
Az Ön neve:
Az Ön e-mail címe:
Üzenet: