Részletes leírás
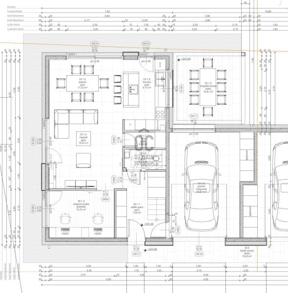
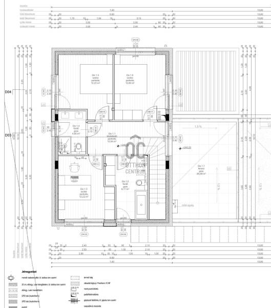
A budai agglomeráció egyik legkedveltebb településén Budajenőn természetközeli környezetben kínálunk megvásárlásra egy újépítésű családi házat 433 nm-es telekkel. A lakóépület kizárólag a földszinten érintkezik a szomszéddal, itt is a két garázs fala ér össze, az emeleten egyáltalán nincs közös fal. 4 házból álló mini lakópark kulturált, intelligens szomszédokkal, már csak ez az egy ingatlan eladó. A belső elosztás tágas, a mai modern igényeknek maximálisan megfelelő, hatalmas üvegfelületek minden helyiségben. Korszerű technológia, magas műszaki tartalom: megújuló energia, hőszivattyús fűtés (Bosch, padlófűtés, mobil appról vezérelhető), mennyezethűtés, napelem előkészítés solar átvezető cseréppel, H tarifa, kamera, riasztó, klíma előkészítés, elektromos autó töltő előkészítés, 20 cm grafitos homlokzati szigetelés, 3 rétegű üvegezésű ablakok, redőny előkészítve, extra tetőszigetelés, fűtött garázs, térkövezett autóbeálló. A ház belső kétszintes, a földszinten a tágas, kertkapcsolatos nagy konyha-étkező-nappali a lakás központja, ezen a szinten kapott helyet egy háló vagy dolgozószoba, egy mosdó, nagy előszoba és a garázs, ahol tárolásra is marad hely. Az emeletre kényelmes lépcső vezet, ahol 3 nagy méretű hálószoba, két fürdőszoba és egy zöld tetőterasz került kialakításra. Burkolatok, szaniterek, belső ajtók megadott kereteken belül választhatók, a vételár részét képezik. Befejezés, birtokbaadás 2-3 hónapon belül. Használatbavételi engedély megvan, az ingatlan tehermentes, hitelezhető. A településen sok a gyermekes, fiatal család, a helyi óvoda kifejezetten jó. Igényes, szép kivitelezés.

Pest megye, Budajenő
 

Ingatlan adatai
Irányár: 178 900 000 Ft
Típus: ház
Kategória: eladó
Alapterület: 153 m2
Fűtés: -
Állapota: új
Szobák száma: 5
Építés éve: 2023
Szintek száma: -
További adatok
Telekterület: 431 m2
Kert mérete: 431 m2
Erkély mérete: 27 m2
Felszereltség: -
Parkolás: -
Kilátás: -
Egyéb extrák:  
-
Hirdető adatai
Hirdető neve: Otthon Centrum
Kapcsolattartó: Sipos Zoltánné
Hirdető telefonszáma: +36 70 469 3031
Honlap: -

Üzenetet küldhet a hirdetőnek:
Az Ön neve:
Az Ön e-mail címe:
Üzenet: