Részletes leírás
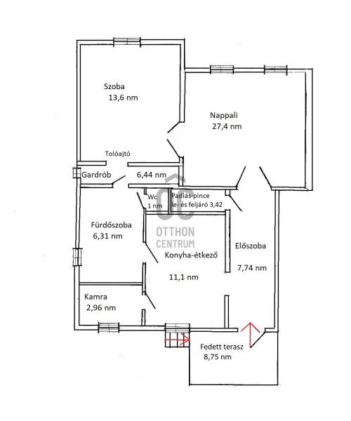
XVII. kerületben a méltán kedvelt Rákosligeten, csendes mellékutcában kínálunk megvásárlásra egy teljeskörűen felújított, FÖLDSZINTES kialakítású, nagypolgári jellegű kertes házat 480 nm-es parkosított telekkel, nagy garázzsal, ahol két autó egymás mellett kényelmesen parkolhat. A felújítás során kicserélték a nyílászárókat hőszigetelt üvegezésű műanyag ablakokra (redőny, szúnyogháló van), az elektromos hálózatot áthúzták, a vízcsöveket a fürdőszoba és a konyha felújításakor szintén cserélték. A homlokzat 10 cm-es dryvit szigetelést és új színezést kapott. A belső elosztás kényelmes és praktikus: a fedett teraszról nyílik a bejárat, a nagy előszobában bőven van hely gardróbszekrényeknek. Innen nyílik a világos, tágas konyha-étkező beépített újszerű bútorzattal, mely a vételár részét képezi. A nagy méretű kamrában van a villanybojler. A fürdőszobában épített zuhanykabin kapott helyet, igény esetén egy sarokkád is elfér. Külön helyiségben található a wc. A tágas nappaliban egy klíma is beépítésre került. A hálószobából le lett választva egy gardrób, így sok tárolási lehetőség van a házban. Szépek a burkolatok, szaniterek, a konyhabútor, a szobákban kiváló állapotú a fa parketta, a belső ajtók elegáns, dupla szárnyas nagypolgári ajtók. A lakás alatt van egy pince, mely két helyiségből áll, itt van lent a gázkazán és a vegyes tüzelésű kazán tartalék fűtésre. Mindkét helyiség ablakos, világos, tárolásra, konditeremnek is kiváló. A füvesített kertben több gyümölcsfa, díszfa is van, locsolási vízmérő van (nem kell csatorna díjat fizetni). A környék kiváló, csendes, rendezett lakóházakkal beépített. Buszmegálló, bevásárlási lehetőség, orvosi rendelő, gyógyszertár rövid sétával elérhető, vonatállomás is pár buszmegálló, innen a Keleti-pályaudvar 17 perc. Tehermentes ingatlan, szabadon hitelezhető.Ez az ingatlan a \"Felező csomag\" megbízási portfólióhoz tartozik. Részletek az Otthon Centrum weboldalán.

Budapest, XVII.kerület
 

Ingatlan adatai
Irányár: 96 900 000 Ft
Típus: ház
Kategória: eladó
Alapterület: 80 m2
Fűtés: gáz (cirko)
Állapota: -
Szobák száma: 2
Építés éve: 1968
Szintek száma: -
További adatok
Telekterület: 480 m2
Kert mérete: 480 m2
Erkély mérete: 9 m2
Felszereltség: -
Parkolás: -
Kilátás: -
Egyéb extrák:  
-
Hirdető adatai
Hirdető neve: Otthon Centrum
Kapcsolattartó: Sipos Zoltánné
Hirdető telefonszáma: +36 70 469 3031
Honlap: -

Üzenetet küldhet a hirdetőnek:
Az Ön neve:
Az Ön e-mail címe:
Üzenet: