Részletes leírás
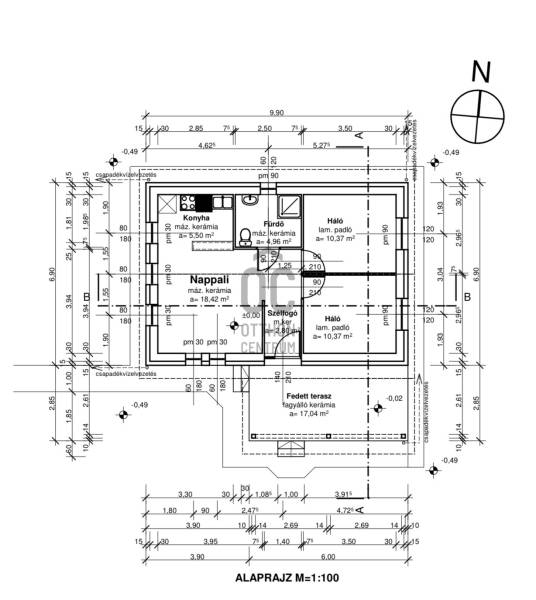
Eladó új építésű ingatlan Balatonkeresztúron !Fedezze fel ezt a különleges lehetőséget, amely ideális otthont kínál Balatonkeresztúron, Somogy vármegyében. Az ingatlan egy újonnan épülő ház, amely prémium kivitelezésének köszönhetően várja új lakóit.Ennek előnye ,hogy az új tulajdonos választhatja ki a burkolatokat és még néhány dolgot.Átadása 2026.A ház jellemzői :- 60 nm alapterülettel fog rendelkezni ,amelyhez egy 450 nm-es telek tartozik- Osztatlan közös telek, amely használati megállapodás keretében hasznosítható- A házat 2 hálószobával, nappalival, fürdővel tervezték, amelyek lehetőséget adnak a kényelmes és modern életvitelre.- A világos nappali ideális helyszíne a baráti összejöveteleknek.- A ház egyedi tervezésű, amely a modern életstílushoz igazodik.- A klíma gondoskodik a kellemes hőmérsékletről a nyári melegben és a téli hidegben egyaránt- Az ingatlan 2026 végén kerül átadásra !!Balatonkeresztúr csendes, biztonságos település, amely ideális hely mindenki számára. A közlekedési lehetőségek kiválóak: a közeli buszmegállók és vasútállomás gyors hozzáférést biztosítanak a környező városokhoz és a Balaton partjához.A településen található üzletek, éttermek és szórakozási lehetőségek mind hozzájárulnak ahhoz, hogy itt élni valóban élvezetes legyen.Ne hagyja ki ezt az egyedülálló lehetőséget, hogy egy modern, világos és tágas otthonra találjon Balatonkeresztúron!Ha bármilyen kérdése van, vagy szeretne többet megtudni az ingatlanról, bizalommal keressen minket!

Somogy megye, Balatonmáriafürdő
 

Ingatlan adatai
Irányár: 64 990 000 Ft
Típus: ház
Kategória: eladó
Alapterület: 60 m2
Fűtés: elektromos
Állapota: új
Szobák száma: 3
Építés éve: 2026
Szintek száma: -
További adatok
Telekterület: 450 m2
Kert mérete: 450 m2
Erkély mérete: -
Felszereltség: -
Parkolás: -
Kilátás: -
Egyéb extrák:  
-
Hirdető adatai
Hirdető neve: Otthon Centrum
Kapcsolattartó: Sipos Etelka
Hirdető telefonszáma: +36 70 461 9191
Honlap: -

Üzenetet küldhet a hirdetőnek:
Az Ön neve:
Az Ön e-mail címe:
Üzenet: