Részletes leírás
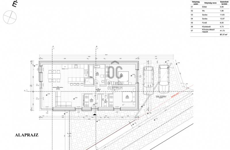
Fedezze fel álmai otthonát Zala vármegyében, Nemesbük csendes és idilli környezetében, a Gesztenyeligetben! 3% OTTHON START ÉS FALUSI CSOK IGÉNYBE VEHETŐ!VÁRHATÓ ÁTADÁS 2026 III. NEGYEDÉVA 4 lakóegységből álló Gesztenyeliget lakóparkban lesz elérhető 2026-ban az új építésű, modern kivitelű tégla lakóház, amely tökéletes választás fiatal párok és családok számára, akik saját otthonra vágynak, vagy befektetési lehetőséget keresnek. Az ingatlan 87,17 nm hasznos alapterülettel rendelkezik, amely 2 tágas szobát, nagy méretű nappali/konyha/étkezőt és egy modern fürdőszobát foglal magában. A ház elrendezése ideális a kényelmes mindennapokhoz. A fűtés elektromos fűtőpanelek és padlófűtés által biztosított, ami lehetővé teszi a gazdaságos üzemeltetést és a könnyű karbantartást. Az ingatlan panorámás kilátást kínál, a környező erdőségre, dombokra, amely minden reggel új élményekkel ajándékozza meg lakóit. A környék nyugodt, biztonságos és zöldövezeti, így ideális helyszín a pihenésre és a feltöltődésre. az ingatlan főbb jellemzői:- egyedi építésű földszintes lakóház- INGATLAN NYILVÁNTARTÁS SZERINT: LAKÓHÁZ- kulcsrakész átadás- 87,17 nm hasznos alapterület- letisztult formák- csendes, természetközeli fekvés, hangulatos gesztenyefák ölelésében- festői környezet- privát lakópark, amely 3.649 nm területen 4 db családi házból áll - a lakóépülethez térkövezett terasz és 2 gépkocsi számára beálló is tartozik (85,26nm)- kizárólagos garázs használati jog az utcafronti épületben - kedvező DNY-i tájolás- háromrétegű üveggel szerelt alumínium szerkezetű nyílászárók- fürdőszoba zuhannyal, bidével és WC-vel felszerelt- fűtés: Norvég NOBU elektromos fűtőpanelek, egyedi méréssel, a fürdőszobában és a nappaliban elektromos padlófűtés.- klíma előkészítés- riasztó előkészítés - napelem előkészítés - LEGRAND típusú elektromos szerelvények- monolit vasbeton födém- PTH 30 NF hőszigetelő BAUMIT habarcsban falazva- a külső homlokzaton Grafit hőszigetelés a Prefa állókarcos lemezborítás /20 cm kőzetgyapot hőszigeteléssel/ alattPRAKTIKUS BELSŐ KIALAKÍTÁS, TÁGAS TEREKKEL:- előtér- vendég WC- szoba- szoba- fürdőszoba- közlekedő- nappali,/ konyha/ étkező (41,73nm)- térkövezett terasz és gépkocsi beálló 2 autó részére RUGALMAS FIZETÉSI FELTÉTELEK: SZERZŐDÉSKÖTÉS MÁR 10% FOGLALÓVAL, TOVÁBBI FIZETÉSI ÜTEMEZÉS AZ ÉPÍTÉSI MUNKÁLATOK ELŐREHALADTÁVAL. A KIVITELEZŐ CÉG üzemeltetőként fog gondoskodni az épület fenntartásáról, karbantartásáról, szolgáltatásairól. Nemesbük egy 700 lakosú csendes, rendezett település a világhírű Hévízi-tó közvetlen szomszédságában. Nemcsak festői környezetet kínál, hanem a közlekedési lehetőségek terén is kedvező adottságokkal bír. A település jól megközelíthető autóval, hiszen az M7-es autópálya és a a 76-os főút közelsége lehetővé teszi a gyors eljutást Zalaegerszegre, Keszthelyre, Hévízre, Budapest kb . 2 órás autóútra található. A közeli autóbusz megálló és az elérhető főbb közlekedési utak lehetővé teszik a gyors és egyszerű közlekedést Zalaegerszeg, az ismert gyógyfürdők, mint Hévíz (3,5 Km) , Kehidakustány és Zalakaros irányába. Keszthely (13Km) közelsége számos lehetőséget kínál, legyen szó bevásárlásról, szórakozásról vagy kulturális programokról. A környék gazdag természeti szépségekben, az aktív szabadidős tevékenységek kedvelői is megtalálják számításaikat. A közeli közintézmények, iskolák, óvodák és egészségügyi szolgáltatások, mind hozzájárulnak a környék vonzerejéhez, így a családosok számára is ideális választás lehet. Az ingatlan elhelyezkedése és modern kialakítása egyaránt vonzó lehet a fiatal felnőttek és befektetők számára, akik értékelik a kényelmet és a praktikusságot.Az ingatlan ideális választás lehet mindazok számára, akik a városi élet előnyeit és a természet közelségét is szeretnék élvezni. A környék gazdag kulturális és szabadidős lehetőségekben, hiszen a közeli termálfürdők (Hévíz termál tó, Zalakaros, Kehidakustány) és a természetvédelmi területek számos kikapcsolódási lehetőséget kínálnak.Egy kiváló lehetőség arra, hogy különleges, természetközeli otthonra leljen, amely minden igényét kielégíti.Ha kérdései vannak az ingatlannal vagy a vásárlási folyamattal kapcsolatban, keressen bizalommal!Az adatok tájékoztató jellegűek.

Zala megye, Nemesbük
 

Ingatlan adatai
Irányár: 94 500 000 Ft
Típus: ház
Kategória: eladó
Alapterület: 87 m2
Fűtés: -
Állapota: új
Szobák száma: 3
Építés éve: 2026
Szintek száma: -
További adatok
Telekterület: 3 649 m2
Kert mérete: 3 649 m2
Erkély mérete: 85 m2
Felszereltség: -
Parkolás: -
Kilátás: -
Egyéb extrák:  
-
Hirdető adatai
Hirdető neve: Otthon Centrum
Kapcsolattartó: Schwarcz-Szajkó Judit
Hirdető telefonszáma: +36 70 412 5636
Honlap: -

Üzenetet küldhet a hirdetőnek:
Az Ön neve:
Az Ön e-mail címe:
Üzenet: