Részletes leírás
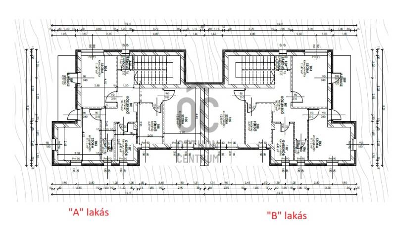
Az ingatlan főbb tulajdonságai:- Tégla falazat szigetelve- 3 szoba + nappali- 2 Fürdő- Garázs- Fűtése hőszivattyúval történikHirdetési adatok a tulajdonostól beszerzet információkon alapulnak, tájékoztató jellegűekAmennyiben vásárláshoz hitelre is szüksége van független hitel tanácsadónk ingyenesen tud Önnek segítséget nyújtani a legjobb konstrukciók kiválasztásában és a folyamat lebonyolításában.Irodánk kereső ügyfeleinknek teljes körű szolgáltatást nyújt, szakszerű tanácsadással, energetikai tanúsítvány elkészítésével, hitelügyintézéssel és profi ügyvédi segítséggel.

Szabolcs-Szatmár-Bereg megye, Nyíregyháza
 

Ingatlan adatai
Irányár: 120 000 000 Ft
Típus: ház
Kategória: eladó
Alapterület: 149 m2
Fűtés: -
Állapota: új
Szobák száma: 3
Építés éve: 2025
Szintek száma: -
További adatok
Telekterület: 300 m2
Kert mérete: 300 m2
Erkély mérete: 3 m2
Felszereltség: -
Parkolás: -
Kilátás: -
Egyéb extrák:  
-
Hirdető adatai
Hirdető neve: Otthon Centrum
Kapcsolattartó: Aranyos Péter
Hirdető telefonszáma: +36 70 469 3696
Honlap: -

Üzenetet küldhet a hirdetőnek:
Az Ön neve:
Az Ön e-mail címe:
Üzenet: