Részletes leírás
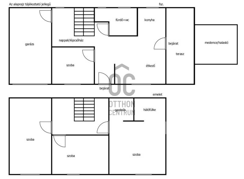
A Vasi-Hegyhát keleti részén, a dimbes-dombos, erdők és szőlőhegyek ölelésében található Csipkereken vált eladóvá egy családi ház, mely számos lehetőséget rejt magában.Az 1993-ban épült családi ház téglaépítésű. Nyílászárói hő- és hangszigetelt fa ablakok. Az otthon melegét egy hangulatos cserépkályha biztosítja -további helyiségekben radiátoros hőleadással-, a melegvíz-ellátást villanybojler szolgáltatja.Az ingatlan praktikus elosztású, a földszinten egy tágas konyha-étkező-nappali került kialakításra, mely nagyobb családok számára is tökéletes helyet biztosít a családi étkezésekhez. 4 szobája különnyíló, így mindenki számára adott a lehetőség kialakítani saját kis terét.A ház előtt nagy méretű terasz húzódik, ahol élvezheti a madárcsicsergést reggeli kávéja elfogyasztása közben. Közvetlenül előtte egy medence/halastó is helyet kapott (2,20 m mély), rendbetételét követően sok élményt nyújthat családja számára, vagy kertje ékes díszévé válhat.Az 1798 nm-es terület sok lehetőséget rejt magában: itt található egy vendégház (képeken jelölve), amely egy kisebb felújítást követően tökéletes lehetőséget biztosít kiadásra, vagy, akár egy külön lakrész biztosítására valamely családtagja számára.A terület, nagyságából adódóan állattartásra, vagy további mezőgazdasági tevékenységek végzésére is kiváló, kialakításra került egy 48 nm-es istálló is, mely rendkívül hasznos lehet azon érdeklődők számára, akik a fent említett tevékenységekben gondolkoznak mindamellett, hogy egy családi házat keresnek családjuk számára.A településen orvosi rendelő, fogorvos, óvoda, posta járat, bolt található. Közvetlenül a szomszéd faluban általános iskola elérhető. Hitelre van szüksége? Az Otthon Centrum az ország egyik legnagyobb és legmegbízhatóbb hitelközvetítőjeként, teljes körű és díjmentes hitelügyintézéssel, biztosításkötéssel áll rendelkezésére!Kérje személyre szabott ajánlatunkat kollégáinktól!

Vas megye, Csipkerek
 

Ingatlan adatai
Irányár: 49 900 000 Ft
Típus: ház
Kategória: eladó
Alapterület: 108 m2
Fűtés: egyéb
Állapota: -
Szobák száma: 5
Építés éve: 1993
Szintek száma: -
További adatok
Telekterület: 1 798 m2
Kert mérete: 1 798 m2
Erkély mérete: -
Felszereltség: -
Parkolás: -
Kilátás: -
Egyéb extrák:  
-
Hirdető adatai
Hirdető neve: Otthon Centrum
Kapcsolattartó: Szolnoki Nóra
Hirdető telefonszáma: +36 70 388 5831
Honlap: -

Üzenetet küldhet a hirdetőnek:
Az Ön neve:
Az Ön e-mail címe:
Üzenet: