Részletes leírás
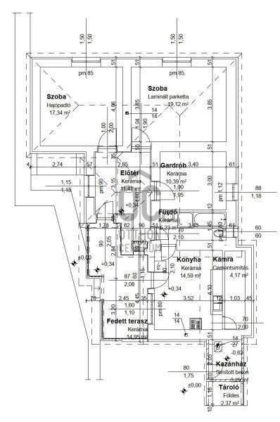
A Szabolcs-Szatmár-Bereg vármegyében, Kisvarsány szívében található ház kiváló választás mindazok számára, akik a vidéki élet nyugalmát keresik, mégis közel akarnak maradni a város nyújtotta lehetőségekhez. Ez a használt ingatlan nettó 80 m2 alapterülettel rendelkezik, amely ideális otthont biztosít egy család számára. Két tágas szobájával és a fürdőszobájával kényelmes életteret kínál. Az ingatlan állapota jó, így azonnal költözhető. A fűtés gáz cirkó rendszerrel megoldott, ami biztosítja a meleget a hideg hónapokban. Az elmúlt években felújításon esett át, ez kiterjedt a külső hőszigetelésre, és a műanyag nyílászárók beépítésére A telek mérete 2420 négyzetméter, amely bőséges lehetőséget biztosít a kertészkedéshez vagy akár egy újabb épület felépítéséhez. A terület csendes, biztonságos, ideális helyszín a gyermekek számára, ahol szabadon játszhatnak, és a felnőttek is élvezhetik a természet közelségét. A közlekedési lehetőségek szempontjából Kisvarsány kiválóan megközelíthető. Autóval könnyen elérheti Vásárosnaményt , míg a tömegközlekedési lehetőségek biztosítják, hogy a közelben lévő városokat elérjék. Ha felkeltette érdeklődését és további kérdései lennének, bizalommal keressen meg. Vevő ügyfeleink részére minden szolgáltatás díjmentes !

Szabolcs-Szatmár-Bereg megye, Kisvarsány
 

Ingatlan adatai
Irányár: 16 200 000 Ft
Típus: ház
Kategória: eladó
Alapterület: 80 m2
Fűtés: gáz (cirko)
Állapota: -
Szobák száma: 2
Építés éve: 1970
Szintek száma: -
További adatok
Telekterület: 2 420 m2
Kert mérete: 2 420 m2
Erkély mérete: -
Felszereltség: -
Parkolás: -
Kilátás: -
Egyéb extrák:  
-
Hirdető adatai
Hirdető neve: Otthon Centrum
Kapcsolattartó: Gyöngyösi Sándor
Hirdető telefonszáma: +36 70 469 3486
Honlap: -

Üzenetet küldhet a hirdetőnek:
Az Ön neve:
Az Ön e-mail címe:
Üzenet: