Részletes leírás
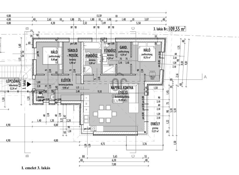
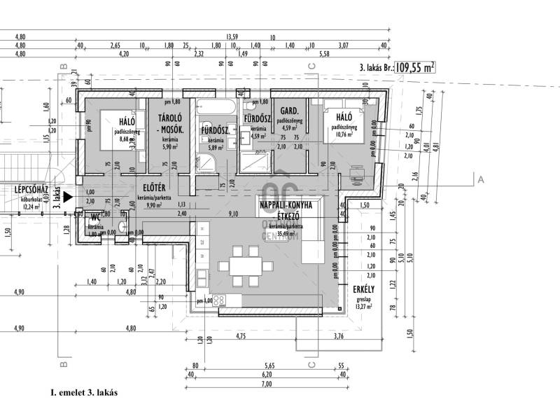
I.EMELET 3-AS LAKÁS- 87,6 m2 lakótér + 13,27 m2 terasz- Helyiségekelőszoba :9.9 m²wc-kézmosó :1.8 m²szoba : 8.68 m²mosókonyha : 5.9 m²fürdőszoba-wc :5.89 m²nappali-konyha: 35.49 m²szoba: 10.76 m²gardrób: 4.59 m²fürdőszoba-wc :4.59 m²Projekt bemutatásaAZ OTTHON CENTRUM KIEMELT KÍNÁLATÁBAN!Fedezze fel ezt a kivételes adottságokkal rendelkező, modern stílusú, 4 lakásos társasházat Hévíz egyik legkedveltebb, családbarát övezetében! A projekt egyediségét az igényes építészeti megoldások és a korszerű építészet adja , mely garantálja a hosszútávú energiatakarékosságot, kényelmet és a mindennapok nyugalmát.A lakások tágas elrendezésűek, világos nappalikkal, nagy üvegfelületekkel és exkluzív teraszokkal rendelkeznek.Az ingatlan lokációját tekintve zavartalan kikapcsolódást és nyugalmat biztosít egész évben.Hévíz a Balaton nyugati partján fekszik, néhány kilométerre a magyar tenger partjától, növelve ezáltal az ingatlan értékét.Várható kulcsrakész átadás : 2026. agusztus 31.FŐBB JELLEMZŐK-Exkluzív, modern megjelenésű épület-Energiatakarékos és költséghatékony-Csendes, zöldövezeti elhelyezkedés-Napsütötte, tágas belső terek-Privát teraszok és erkélyek minden lakáshoz-Parkolási lehetőség az udvarbanMŰSZAKI TARTALOM-Építés éve: 2025.-Falazat: 30 cm vastag Porotherm tégla-Homlokzati szigetelés: 15 cm vastag hőszigetelés-Födémszerkezet: Monolit vasbeton födém-Tető: Antracit színű cserépfedés-Nyílászárók: 3 rétegű üvegezésű, műanyag szerkezetű ablakok-Redőnyök: Elektromos működtetésű árnyékolók-Fűtés: Daikin hőszivattyús rendszer padlófűtéssel – energiatakarékos és korszerű-Melegvízellátás: szintén a hőszivattyú biztosítja-Hűtés: Fan-coil rendszer minden lakásban-Vízlágyító rendszer a hosszabb gépészeti élettartam érdekében-H tarifás áram – kedvezményes, energiahatékony működés-Lakásonként külön mérőórák biztosítják a pontos elszámolást-Tágas, napfényes belső terek-Saját teraszok, erkélyek és udvari gépkocsi beállóAjánljuk:-Családoknak, akik értékelik a csendes, biztonságos környezetet-Nyugdíjasoknak, akik hosszú távra keresnek kényelmes és gazdaságosan fenntartható otthont-Befektetőknek, akik Hévíz turisztikai értékében látják a lehetőséget – akár hosszú távú, akár rövid távú bérbeadás céljábólEz az ingatlan nem csupán egy otthon, hanem egy tudatos döntés a kényelem, a minőség és az értékállóság mellett.Akár saját részre, akár befektetési célra keres ingatlant – itt minden adott a hosszú távú elégedettséghez.További információért és megtekintésért keressen bizalommal!Ez az ingatlan a \"Felező csomag\" megbízási portfólióhoz tartozik. Részletek az Otthon Centrum weboldalán.

Zala megye, Hévíz
 

Ingatlan adatai
Irányár: 125 900 000 Ft
Típus: lakás (újépítésű)
Kategória: eladó
Alapterület: 101 m2
Fűtés: -
Állapota: új
Szobák száma: 3
Építés éve: 2025
Szintek száma: -
További adatok
Telekterület: -
Kert mérete: -
Erkély mérete: 13 m2
Felszereltség: -
Parkolás: -
Kilátás: kertre néző
Egyéb extrák:  
-
Hirdető adatai
Hirdető neve: Otthon Centrum
Kapcsolattartó: Molnár Henriett
Hirdető telefonszáma: +36 70 412 5631
Honlap: -

Üzenetet küldhet a hirdetőnek:
Az Ön neve:
Az Ön e-mail címe:
Üzenet: