Részletes leírás
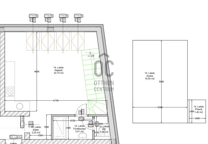
Projekt bemutatása100 %-OS KÉSZÜLTSÉGI ÚJ ÉPÍTÉSŰ TÁRSASHÁZI LAKÁSOK, ÜZLETHELYISÉGEK ÉS GARÁZSOK NYÍREGYHÁZA BELVÁROSÁBAN!4400 Nyíregyháza, belvárosi 14 lakásos társasház és 4 üzlethelyiség, 8 garázs prémium műszaki tartalommal!Az épület főbb jellemzői:• 3 szintes társasház• Nettó alapterület: 439,17 m²• Épület teljes magassága: 12,81 méter• Fűtés-hűtés:• 3 db 16 kW teljesítményű Cascade CRS-CQ16Pd/NhH-M hőszivattyú• Minden helyiségben padlófűtés• Fűtési rendszer rézcsöves megoldással, kaucsuk alapú párazáró szigeteléssel• Melegvíz ellátás:• Hőszivattyúval történik• Központi hidegvíz szűrés a belépési ponton• Víz- és csatornahálózat:• Belső vízvezetékek: ötrétegű PE-RT/Al/PE-RT műanyagcsövek presszes kötésekkel• Külön hőszigetelés a falban és padlóban futó vízcsöveken• Külön sarokszelepek minden csaptelep elé• Kondenzvíz-elvezetés split klímákhoz• Szellőzés:• Ablakokon és ajtókon keresztül természetes szellőzés• WC helyiségekben peremelszívásos berendezés• Csapadékvíz elvezetés: ereszcsatornás rendszerrel szikkasztó gödörbe vagy közmű hálózatra kötve• Villamos teljesítményigény:• Kültéri egység: 3,44 kW (3 fázis)• Beltéri egység: 6 kW (3 fázis)• Grundfos Alpha2 25-60 keringtető szivattyú: 34 W (1 fázis)További kiemelt műszaki jellemzők:• Modern, energiatakarékos kivitelezés a legújabb szabványok szerint• Teljes körű műszaki, tűzvédelmi, munkavédelmi és környezetvédelmi megfelelés• Munkaterületek biztonsági és egészségvédelmi tervvel• Szakszerű hulladékkezelés és környezetbarát technológiák• Első osztályú épületgépészeti rendszerekFelelős tervező: Bíró Roland (G-T/15-0655)100%-OS KÉSZÜLTSÉGI ÁLLAPOTBAN, 2025. JÚNIUS ÁTADÁSSAL! ELÉRHETŐEK MÉG:• 1. LAKÁS: 1. EMELET:Össz.: 75 nm + 6.6nm Terasz:Nappali: 25,54 nmÉtkező-Konyha: 4,4 nmKamra: 1,26 nmSzoba: 12 nmSzoba: 12,42 nmFürdő:4,34 nmWC: 1,27 nmMosókonyha: 2,38 nmKözlekedő: 4,2 nmKézmosó: 1,67 nm+ Terasz (6,6nm)ÁRA: 72.036.000.FtAz ingatlanhoz (tulajdoni lap szerint) tartozik még, 2 db zárt udvari beálló,.A lakás+2db beálló ára: 75.000.000 FtA projekt kiváló választás mind saját otthonnak, mind befektetésnek üzlethelyiségekkel kombinálva!Legyen részese egy új, modern lakóközösségnek Nyíregyháza egyik legdinamikusabban fejlődő részén!Várom hívását!

Szabolcs-Szatmár-Bereg megye, Nyíregyháza
 

Ingatlan adatai
Irányár: 39 000 000 Ft
Típus: lakás (újépítésű)
Kategória: eladó
Alapterület: 39 m2
Fűtés: -
Állapota: új
Szobák száma: 2
Építés éve: 2025
Szintek száma: -
További adatok
Telekterület: -
Kert mérete: -
Erkély mérete: -
Felszereltség: -
Parkolás: -
Kilátás: udvari
Egyéb extrák:  
-
Hirdető adatai
Hirdető neve: Otthon Centrum
Kapcsolattartó: Kosztyu -Tóbiás Nikolett
Hirdető telefonszáma: +36 70 469 3361
Honlap: -

Üzenetet küldhet a hirdetőnek:
Az Ön neve:
Az Ön e-mail címe:
Üzenet: