Részletes leírás
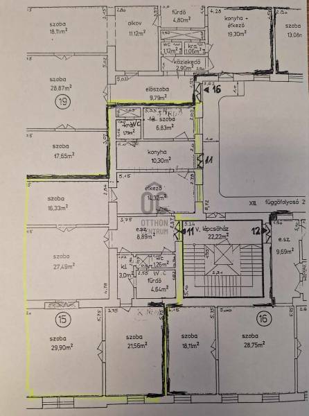
146 m²-es, kétlakásos ingatlan eladó a Nyugatinál – befektetésnek vagy saját célra is kiváló lehetőség!Budapest egyik legkeresettebb részén, a Teréz körút és Podmaniczky utca kereszteződésében, a Nyugati pályaudvar mellett, rendezett, liftes társasház 2. emeletén kínálunk eladásra egy 146 m²-es, 5 szobás ingatlant.Jelenleg két külön bejáratú, különválasztott lakásként funkcionál, de igény szerint könnyedén egybenyitható egy tágas otthonná vagy irodahelyiséggé.A jelenlegi elosztás:Kisebb lakás (~50 m²): amerikai konyhás nappali, hálószoba, fürdőszoba, külön WC.Nagyobb lakás (~100 m²): étkezős konyha, két nagyméretű szoba (29,9 m² és 27,5 m²), fürdőszoba WC-vel, külön vendégmosdó, előszoba. Kialakítása lehetővé teszi további szobák kialakítását is.Az ingatlan 2014-ben teljes körű felújításon esett át: nyílászárók cseréje, villamos- és vízvezetékek, valamint fűtés korszerűsítése is megtörtént. Azóta is rendszeresen karbantartott, szobái klimatizáltak, azonnal költözhető állapotban van.Jogilag rendezett:1/1 tulajdonteher- és igénymentesKiváló választás akár:befektetésként (a kisebb lakás eddig is kiadásra használt),saját célra,irodának vagy rendelőnek (a házban több ilyen funkciójú ingatlan is található).További előnyök:Kulturált lakóközösség, tiszta, gondozott társasházKözös költség: 20.000 FtRezsi (átlagos használat mellett): kb. 39.000 Ft/hóKözlekedés: 3-as metró, 4-6 villamos, 72-es troli pár perc sétaA közelben található a WestEnd City Center, Eiffel Park, kávézók, éttermek, boltok – minden, ami a belvárosi életstílushoz szükséges.Ne hagyja ki ezt a különleges lehetőséget!Egyedi igényekre szabott lakáshitelekkel állunk rendelkezésére. Bank független hitelcentrumunk az országban elérhető összes bank és hitelintézet ajánlatát versenyezteti az Ön számára díjmentesen.Munkatársaink nagy szakmai tapasztalattal várják Önt az előre egyeztetett időpontban akár a normál munkaidő után is.Bővebb információért és a megtekintéssel kapcsolatban hívjon bizalommal!Ez az ingatlan a \"Felező csomag\" megbízási portfólióhoz tartozik. Részletek az Otthon Centrum weboldalán.

Budapest, VI.kerület
 

Ingatlan adatai
Irányár: 169 000 000 Ft
Típus: lakás (tégla)
Kategória: eladó
Alapterület: 146 m2
Fűtés: gáz (cirko)
Állapota: -
Szobák száma: 5
Építés éve: -
Szintek száma: -
További adatok
Telekterület: -
Kert mérete: -
Erkély mérete: -
Felszereltség: -
Parkolás: -
Kilátás: utcai
Egyéb extrák:  
-
Hirdető adatai
Hirdető neve: Otthon Centrum
Kapcsolattartó: Szuromi Mirella
Hirdető telefonszáma: +36 70 716 8181
Honlap: -

Üzenetet küldhet a hirdetőnek:
Az Ön neve:
Az Ön e-mail címe:
Üzenet: