Részletes leírás
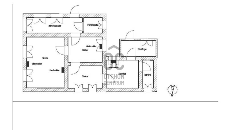
A Tisza-tó fővárosa, Tiszafüred közelében található kisközségben, Tiszaszentimrén, csendes utcában kínálok eladásra egy autentikus családi házatA település rendelkezik mindazon középületekkel, melyek az oktatáshoz, a művelődéshez, az egészségügyhöz és szociális ellátáshoz nélkülözhetetlenek. Minden utca szilárd burkolattal van ellátva. A kikapcsolódásra vágyóknak, a vízi sport szerelmeseinek, a horgászat kedvelőinek a Tisza-tó közelsége nyújt lehetőséget. A kirándulni vágyók egy órán belül gyönyörködhetnek a Hortobágy-puszta végtelenségében, vagy túrázhatnak az Északi-középhegység erdeiben. A gyógyulni vágyók felkereshetik Tiszafüred, Tiszaörs, Berekfürdő gyógyító hatású meleg vizes strandjait.Közel a Tisza-tóhoz, mégis távol annak zajától, csendes, biztonságos település várja a horgászni, vadászni, pihenni vágyó vendégeket. A környező utcákban és a szomszédságban is már holland és német tulajdonosok vásároltak maguknak ingatlant üdülés céljából.Az udvar és a kert rendezett szépen karban tartott állapotban várja leendő új gazdáját.A karban tartott épület vályogból épült. A beépített veranda téglából készült.Az épületben három szoba, és egy fürdőszoba lett kialakítva, valamint konyha és kamra is van.A fűtés gázkonvektorokkal lett megoldva, de található egy cserépkályha is az épületben.Amennyiben további felvilágosítást szeretne, keressen bizalommal!Teljes körű hitel ügyintézéssel és az ingatlan adásvételéhez szükséges ügyvédi háttérrel is állok vevőink rendelkezésére.#tiszató #tiszaszentimre #elegáns #felújított #komfortos #költözhető #kertkapcsolat #vályog #üdülő #családias #nyugodt #rendezett #eladó #egyedi #modern #jólokalizáció

Jász-Nagykun-Szolnok megye, Tiszaszentimre
 

Ingatlan adatai
Irányár: 14 900 000 Ft
Típus: ház
Kategória: eladó
Alapterület: 77 m2
Fűtés: gáz (konvektor)
Állapota: -
Szobák száma: 3
Építés éve: 1965
Szintek száma: -
További adatok
Telekterület: 1 099 m2
Kert mérete: 1 099 m2
Erkély mérete: -
Felszereltség: -
Parkolás: -
Kilátás: -
Egyéb extrák:  
-
Hirdető adatai
Hirdető neve: Otthon Centrum
Kapcsolattartó: Lang Zsolt
Hirdető telefonszáma: +36 70 412 3651
Honlap: -

Üzenetet küldhet a hirdetőnek:
Az Ön neve:
Az Ön e-mail címe:
Üzenet: