Részletes leírás
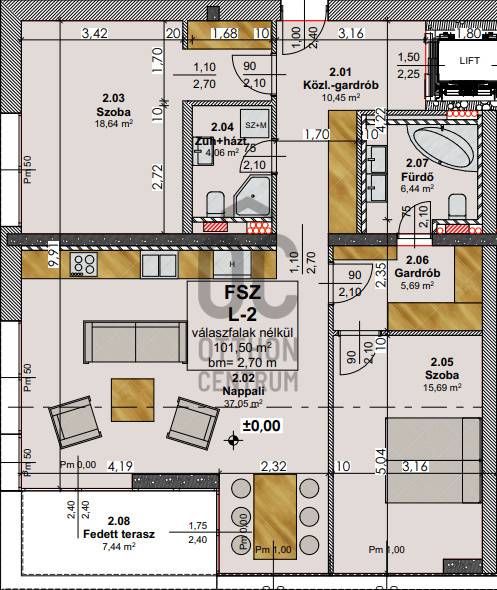
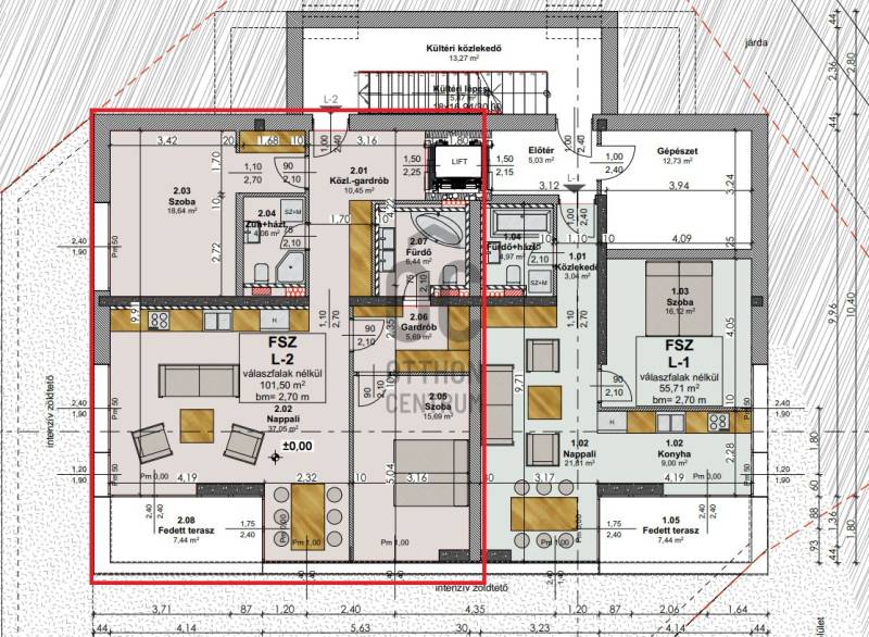
Földszinti kertkapcsolatos nappali+2 szobás lakás kizárólagos használatú kertrésszel!A szobák majd dupla méretűek egy átlag szobamérethez képest! Dupla fürdőszobás kialakítás!A lakáshoz tartozik még 2 db garázshely további 13.000.000 Ft/ db áronés 1 db tároló, amelynek ára további 5.000.000 FtA garázshely és a tároló a vételáron felül értendő.Projekt bemutatásaElőértékesítésben már Ön is lekötheti a 7 exkluzív lakás egyikét!Rózsadombot nem véletlenül tartják Budapest legimpozánsabb és legnívósabb részének.. közel a város, mégis a túlzsúfoltság és a belvárosi érzet azonnal elillan amikor belépünk Budapest különleges villanegyedébe. A város közepén emelkedő városrészt az átlagemberek képzeletében egyfajta misztikum övezi és már messziről feltekintve megcsodálhatjuk a büszke hivalkodó villákkal ékített hegyoldalt. A terület már évtizedek óta a luxus és a gazdagság jelképe, egyfajta státusz szimbólum, aki itt él az egy elit réteg részese.Amennyiben csak kényelemre vágyik jó helyen jár:minden szolgáltatás megtalálható a közvetlen lokációban!- rangos iskolák- sportolási lehetőségek-tökéletes tömegközlekedés, a Széll Kálmán térről az egész várost könnyedén elérheti!- üzletek, éttermek, mozi, bankok, telefonszolgáltatók, egészségügyi szolgáltatók, és a szolgáltatások összessége elérhető a Mammut bevásárlóközpontban- továbbá 5 percre található kutyafuttató ahová leviheti házi kedvencét is!Az épületünk kiváló adottságokkal fog rendelkezni, központi, könnyen megközelíthető, mégis csendes és zöld környezetben helyezkedik el.A 3 szintes újépítésű társasházban 7 lakás kerül kialakításra, amely prémium minőségű anyagokkal és modern műszaki megoldásokkal összességével került megtervezésre!Szintenként csupán 2 lakás kerül kialakításra, különösen ügyelve a privát terekre és a legfelső emeleten az egész szintes penthouse magasodik a város fölé!A lakások már a II. emelettől budai panorámával rendelkeznek!Egy prémium ingatlanhoz prémium belső dukál!A választható belső kialakítás mellett az alaprajzi kialakítás is személyre szabható, így minden lakás a vevő egyéniségét és elképzeléseit tükrözi!A lakások mindegyikét elneveztük, mivel nincs 2 azonos, mivel a Rózsadombon járunk minden lakás nevét egy virág ihlette.MŰSZAKI TARTALOMA műszaki tartalom minden pontban megfelel a legkomolyabb elvárásoknak!Prémium minőségű burkolatok, szaniterek és belső ajtók a vevők elképzelései szerint!A lakások hűtését és fűtését hőszivattyú biztosítja!teremgarázshely 18 MFT/dbtároló egyedi áron vásárolható!TÖMEGKÖZLEKEDÉSbuszok: 11, 91, 191, 111, 149, 291, 931Ne hagyja ki ezt a ritka lehetőséget, hogy egy új, modern otthon részese legyen ezen a csendes, zöld környéken!Tegye meg az első lépést a kényelmes és modern otthona felé és hívjon fel, amennyiben Ön isegy csendes, zöld környéken szeretne élni mindennapjait!A részletekért, kérem hívjon!

Budapest, II.kerület
 

Ingatlan adatai
Irányár: 332 325 000 Ft
Típus: lakás (újépítésű)
Kategória: eladó
Alapterület: 102 m2
Fűtés: -
Állapota: új
Szobák száma: 3
Építés éve: 2027
Szintek száma: -
További adatok
Telekterület: -
Kert mérete: -
Erkély mérete: 7 m2
Felszereltség: -
Parkolás: -
Kilátás: udvari
Egyéb extrák:  
-
Hirdető adatai
Hirdető neve: Otthon Centrum
Kapcsolattartó: Arany Bálint
Hirdető telefonszáma: +36 70 388 6116
Honlap: -

Üzenetet küldhet a hirdetőnek:
Az Ön neve:
Az Ön e-mail címe:
Üzenet: