Részletes leírás
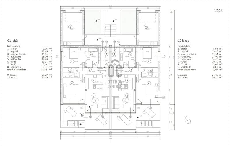
Eladásra kínálunk Székesfehérvár vonzáskörzetében a Fehérvárcsurgói víztározó közvetlen partján, rekreációs vízparti területen, 93m2-es, IKER apartmanházakat.A modern kivitelezésű ikerházak, kedvező energetikai besorolással, magas műszaki tartalommal rendelkeznek.Az új építésű ikerházak kialakítása alaprajz szerint: - előszoba- amerikai konyha + étkező- nappali- 2 hálószoba- 2 fürdőszoba- közlekedő- háztartási helyiség, - garázs- teraszLegfőbb jellemzők: • hőszivattyú• passzív ház szintű szigetelés• automata szellőző rendszer• megújuló zöld energia• gondozásmentes zöld tető• 625 m2-es telek• automata öntöző rendszer, • elektromos kapu és elektromos garázs kapu, video telefon a kapunál• elektromos motoros redőnyök• beépített szúnyoghálók• melegburkolati padló• hidegburkolatokA villapark minden egyes pontjáról a csodálatos panorámát csodálhatjuk.Az ingatlanokat úgy terveztük, hogy funkciójában kiszolgálja egy család minden kényelmét és a praktikumot.Az épülő házakat erdő veszi körül, így a nyugodt, csendes környezet garantált. A csekély gépjárműforgalom miatt ideális választás kisgyermekes családoknak.A villaparktól a Károlyi Kastély néhány percre, a központ egy rövid autóútra található. A tó és környéke kiváló túrázó, horgász- és vadászparadicsom, számos kikapcsolódási és rekreációs lehetőséggel.Aki a csendre, nyugalomra vágyik a zöldövezetben, luxus környezetben szeretne élni, de fontos hogy elérhető távolságra legyen a város nyüzsgése is, annak kiváló választás a Gaia Villa Park.Székesfehérvár 15 percre (16km), Budapest egy óra távolságra (80km), Veszprém negyven percre (45km), a Balaton elérése ötven percet (65km) vesz igénybe. A \"sógorok\" Ausztria (Bécs) két óra (200km) alatt elérhető.Hitelre van szüksége? Az Otthon Centrumnál bankfüggetlen tanácsadó kollégánk, díjmentes bank semleges hitelügyintézéssel áll rendelkezésére.Segítségére lesz az önnek legmegfelelőbb konstrukció kiválasztásában.További információért és megtekintési időpontért hívjon bizalommal a hét bármely napján!

Fejér megye, Fehérvárcsurgó
 

Ingatlan adatai
Irányár: 98 000 000 Ft
Típus: ház
Kategória: eladó
Alapterület: 93 m2
Fűtés: -
Állapota: új
Szobák száma: 3
Építés éve: 2025
Szintek száma: -
További adatok
Telekterület: 625 m2
Kert mérete: 625 m2
Erkély mérete: 26 m2
Felszereltség: -
Parkolás: -
Kilátás: -
Egyéb extrák:  
-
Hirdető adatai
Hirdető neve: Otthon Centrum
Kapcsolattartó: Traubert Pál
Hirdető telefonszáma: +36 70 412 5101
Honlap: -

Üzenetet küldhet a hirdetőnek:
Az Ön neve:
Az Ön e-mail címe:
Üzenet: