Részletes leírás
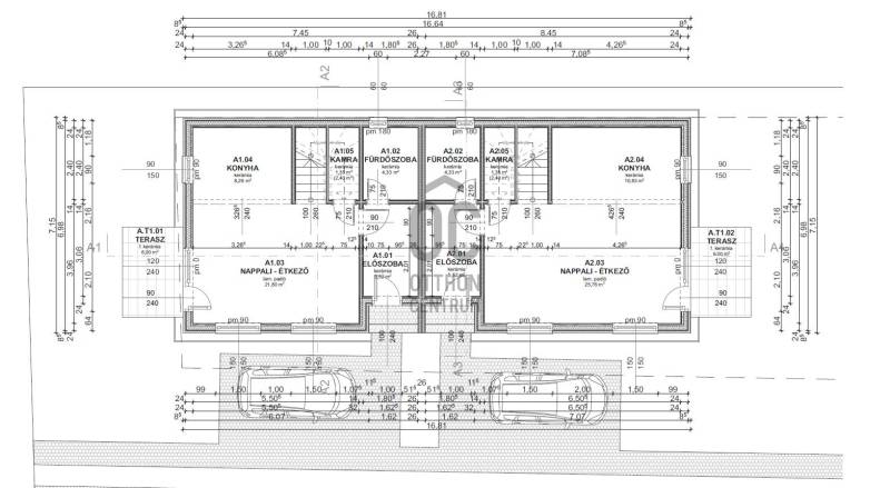
Együtt laknátok, de mégis külön? Állandó otthonnak, nyaralónak, befektetésnek egyaránt alkalmas ez a 4 lakásos társasház.A 904 nm-es telken 4db lakás (88,23-100,66nm) került kialakításra a legkorszerűbb technikával. Mindegyik saját terasszal (6nm), privát kert résszel (200nm), nyitott autóbeállóval rendelkezik. Műszaki leírás:-Az épület alapozása gyengén vasalt monolit vasbeton gerendarács sávalapokkal történt. -A külső teherhordó falszerkezetek és a belső teherhordó illetve nem teherhordó válaszfalak is Horizont vékony falú acél vázszerkezetű szerelt falak. -A vázszerkezet bordái között 14cm szálas hőszigetelés kerül elhelyezésre, erre 8 cm vastag Dryvit hőszigetelő lemez került. -A padlószerkezetben 15cm expandált polisztirolhab, a tetőszerkezetben 25 cm szálas ásványgyapot réteg biztosítja a megfelelő hőszigetelést. -A lábazati részen 8 cm szigetelés készült. -Az alapvető közművek (víz, villany, csatorna) ellátása az utcai hálózatról történik, a közművek biztosítottak. -Az épület fűtési energiaellátását elektromos üzemű levegős hőszivattyúval biztosítjuk szekunder oldalon padlófűtési körök kialakításával. Az épület beosztása:Földszinten található egy előszoba, nappali-étkező, konyha, fürdőszoba, kamra.Tetőtérben 3 db hálószoba, fürdőszoba, közlekedő helyiség került kialakításra.Ajándék konyhabútor a 2025. június 30-ig megkötött adásvételi szerződés esetén!A feltüntetett ár 5% ÁFÁ-t tartalmaz!CSOK igényelhető!

Somogy megye, Balatonszárszó
 

Ingatlan adatai
Irányár: 107 463 300 Ft
Típus: ház
Kategória: eladó
Alapterület: 88 m2
Fűtés: -
Állapota: új
Szobák száma: 4
Építés éve: 2023
Szintek száma: -
További adatok
Telekterület: 200 m2
Kert mérete: 200 m2
Erkély mérete: 6 m2
Felszereltség: -
Parkolás: -
Kilátás: -
Egyéb extrák:  
-
Hirdető adatai
Hirdető neve: Otthon Centrum
Kapcsolattartó: Csizmadia-Schveiger Eszter
Hirdető telefonszáma: +36 70 388 6291
Honlap: -

Üzenetet küldhet a hirdetőnek:
Az Ön neve:
Az Ön e-mail címe:
Üzenet: