Részletes leírás
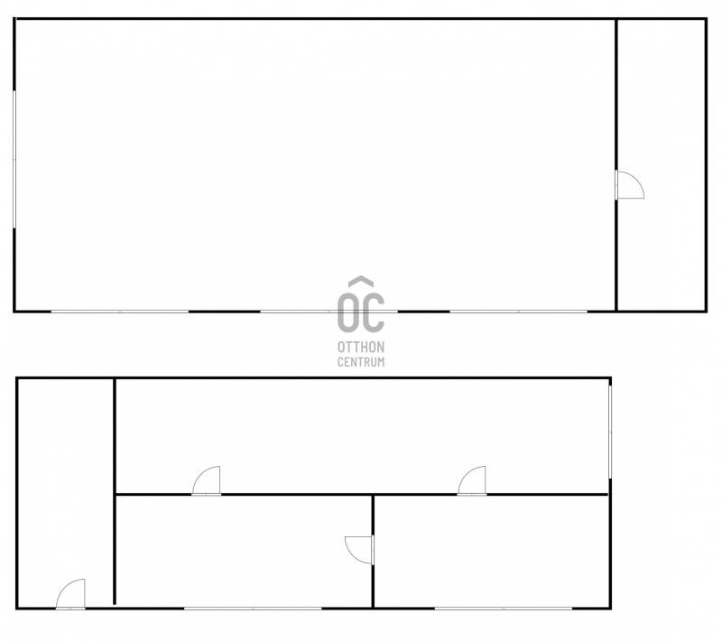
Nagykálló az M3 autópálya mentén, közvetlen csatlakozással rendelkező település.A telephely kamionnal is megközelíthető.Az ingatlan főbb tulajdonságai:- Teljes terület nagysága 8500 m2- Aszfaltozott út- 2 üzemcsarnok - 1 műhely és raktár- Külső bak daru 1. Csarnok 725 m2- daruval ellátott üzemhelyiség2. Csarnok 627 m23. Műhely és raktár 484 m2A telephely ideális gyártó és szerelő tevékenységre is.Teljes közműves (víz, gáz, villany, csatorna)----Vállalkozói hitelek ügyintézését is vállaljuk!Bővebb Infóér kérem hívjon!

Szabolcs-Szatmár-Bereg megye, Nagykálló
 

Ingatlan adatai
Irányár: 170 000 000 Ft
Típus: kereskedelmi/ipari ingatlan
Kategória: eladó
Alapterület: 2 079 m2
Fűtés: -
Állapota: -
Szobák száma: -
Építés éve: -
Szintek száma: -
További adatok
Telekterület: -
Kert mérete: -
Erkély mérete: -
Felszereltség: -
Parkolás: -
Kilátás: -
Egyéb extrák:  
-
Hirdető adatai
Hirdető neve: Otthon Centrum
Kapcsolattartó: Aranyos Péter
Hirdető telefonszáma: +36 70 469 3696
Honlap: -

Üzenetet küldhet a hirdetőnek:
Az Ön neve:
Az Ön e-mail címe:
Üzenet: