Részletes leírás
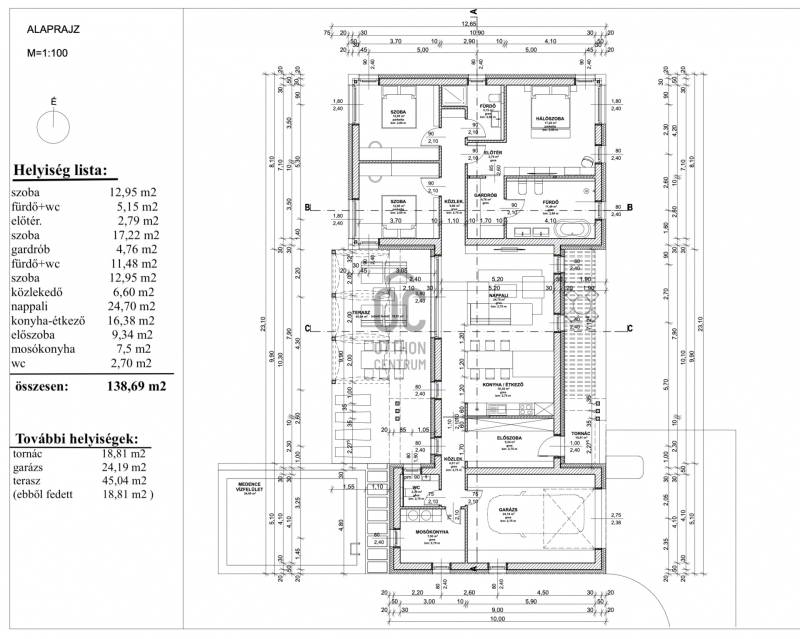
Az építkezés 2022-ben év vette kezdetét.A kulcsra kész állapoton túl a vételár tartalmazza a teljes berendezést, lakberendezési tervek alapján.A belsőépítészeti koncepció elegáns megalkotásához segítő kezet nyújt a lakberendező, aki személyre szabottan alakítja ki a belső dizájnt . A hidegburkolatok magas minőségűek, Olaszországból érkeznek, emelett a valódi fából készült melegburkolatok is kiemelkedő színvonalat képviselnek. tervezőasztalától elkezdve, a modern építési megoldásokon, a gondos szakértők munkásságán és a makulátlan, precíz külső - belső kivitelezésen át ,egészen a kulcsra kész állapotig végigkíséri az építkezés folyamatát .Minden szakág esetében a beépített anyag/segédanyag neves és nagymúltú gyártó termékei közül kerül ki! A 1005 m2 kert parkosításra kerül, dísznövényzettel, automata öntözőrendszerrel, valamint 24 m2 gépesített úszómedence is kiépítésre kerül.A luxus családi ház prémium minősége ,frappáns formatervezése és kialakítása , hozzájárul a családok, színvonalas életre vágyók számára, hogy mind otthonként, mind nyaralóként használva élmény legyen az itt töltött idő!Tegye meg az első lépést, tekintse meg leendő új otthonának helyszínét! A KÜLSŐ HOMLOKZATI KÉPEK A MÁR ELADOTT, HASONLÓ PARAMÉTEREKKEL RENDELKEZŐ TÍPUSHÁZ KÜLSŐ FOTÓI, MELYEKET A KULCSRAKÉSZ ÁLLAPOT SZEMLÉLTETÉSEKÉNT TETTÜNK FEL !A BELSŐ KÉPEK PEDIG LÁTVÁNYTERVEK!AZ LUXUSINGATLAN FŐBB JELLEMZŐI- jó lokáció- külső fal 30 cm Wienerberger Porotherm téglából épül, 20 cm-es EPS homlokzati szigetelést és tört fehér, dörzsölt nemes vakolatot kap, belső fal 10 cm Porotherm válaszfal- monolit vasbeton koszorú, a lakóterek felett könnyűszerkezetű födém készül 25 cm-es Cellulóz szigeteléssel-nyílászárok : 3 rétegű műanya, kívül antracit , belül fehér, beépített redőnytokkal és elektromos redőnnyel felszereltek- a tető antracit Bramac betoncseréppel fedett, csatorna/bádogelemek antracit színű Lindab- 45,04 cm külső terasz padlózata fagyálló kerámiával burkolt- a külső terasz 18,81 m2 -en fedett- a bejáratnál elhelyezkedő 18,81 m2 tornác pergolával felszerelt-belső terek padlózata: prémium kategóriás , kerámiaburkolat, olajozott tölgyfa és Quickstep laminált parketta- tágas, napfényes terek jellemzik- nappali, konyha-étkező egybenyitott-szaniterek /csapok /csaptelepek GROHE termékek közül kerül beszerelésre-mennyezeti látvány kartonozás, rejtett LED hangulatvilágítással-fűtés: hőszivattyú-2 db inverteres hűtő-fűtő klíma-24,19 m2 egy férőhelyes garázs, HÖRMANN garázskapuval , elektromos autó hálózati öltési lehetőség-1005m2 telek kerítéssel, helyenként épített kerítéssel határolt, hozzájárulva az intimitás megőrzéséhez- parkosított ,zöld növényzettel, automata öntözőrendszerrel- 24 m2 gépesített úszómedence-napelem előkészítés (!)BÚTORZAT / BERENDEZÉSI TÁRGYAK ELŐZETES LISTÁJA-előszobabútor-egyedi tervezésű és gyártású konyhabútor konyhaszigettel és 3 db bárszékkel-beépíthető konyhagépek: Whirlpool v. Bosh termékek- 6 személyes étkezőgarnitúra- sarok ülőgarnitúra-dohányzóasztal-TV komód ( tv nélkül)-szobák komplett bútorzata lakberendezési tervek alapján-lámpatestek-függönyök kompletten-falak festése/ tapétázása koncepciós tervezet alapjánLOKÁCIÓElérhető távolságon belül éttermek, bolt, gyógyszertár , strandolási lehetőség ,orvosi rendelő , autószerviz , sportolási lehetőség , Balaton part 15 perc séta.Keszthely alig 2 km , mely tovább gyarapítja a kikapcsolódási lehetőség széles skáláját .Vonyarcvashegy 3 km, Balatongyörök pedig 6 km, Hévíz pedig 10 km-re helyezkedik el, élvezze egész évben akár a gyógyfürdő adta pozitív hatásokat!Hévíz-Balaton Repülőtér 20 km, Budapest pedig körülbelül 2 órányira elérhető az új M76-os autóútnak köszönhetően!AMENNYIBEN FELKELTETTEM ÉRDEKLŐDÉSÉT, VÁROM HÍVÁSÁT AZ ORSZÁG LEGNAGYOBB ÉS LEGELISMERTEBB INGATLANKÖZVETÍTŐ HÁLÓZATA NEVÉBEN!

Zala megye, Gyenesdiás
 

Ingatlan adatai
Irányár: 251 636 100 Ft
Típus: ház
Kategória: eladó
Alapterület: 225 m2
Fűtés: -
Állapota: új
Szobák száma: 4
Építés éve: 2022
Szintek száma: -
További adatok
Telekterület: 1 005 m2
Kert mérete: 1 005 m2
Erkély mérete: 45 m2
Felszereltség: -
Parkolás: -
Kilátás: -
Egyéb extrák:  
-
Hirdető adatai
Hirdető neve: Otthon Centrum
Kapcsolattartó: Molnár Henriett
Hirdető telefonszáma: +36 70 412 5631
Honlap: -

Üzenetet küldhet a hirdetőnek:
Az Ön neve:
Az Ön e-mail címe:
Üzenet: