Részletes leírás
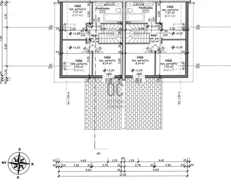
Az ingatlan hasznos alapterülete 88 négyzetméter, amelyben négy tágas szoba és két fürdőszoba található. A terasz mérete 13,52 négyzetméter, ahol a reggeli kávédat vagy a barátaiddal eltöltött estéidet élvezheted a friss levegőn. A megújuló hőszivattyús fűtési rendszernek köszönhetően nemcsak gazdaságos, hanem környezetbarát megoldást is kínál. A klímaberendezés pedig biztosítja, hogy a nyári hónapokban is kellemes hőmérsékletet varázsolhass otthonodba. Az ingatlan környezete csendes és biztonságos, ideális helyszín a nyugodt hétköznapokhoz és a baráti összejövetelekhez. A tömegközlekedés is jól kiépített, buszmegálló 5 perc sétára található Debrecen a 4405-ös járattal érhető el! A lakás jellemzői:- fémszerekezet teherhordó falakkal és hanggátló elválasztó téglafalakkal épült- nettó lakótér 76 m2, mely magában foglal 4 lakószobát, 2 fürdőszobát és nappalit külön- a lakásokhoz osztatlan közös megosztással került kialakításra a saját telekrész, ezen ingatlanhoz okirat szerint 317 m2 csatlakozik- a lakások külön mérő órákkal felszereltek (Villany óra, külön hőszivattyú, fúrt kút külön szivattyúval, lakásonként 10m3-es zárt szennyvíz tározó és klíma berendezés 3,5 kW kapacitással)- a lakásokban mindenütt padlófűtés van kiépítve- nyílászárók 3 rétegű üvegezéssel ellátott műanyag ablakok, a tetőtérben fa nyílászárók- padlástérben 30 cm szigetlés, a homloztaon 15 cm hőszegetelés készült.- átadás: 2026 május- alapterület 76 m2 + 3.45 m2 kazánház+ 13,52 m2-es teraszAz ingatlan babaváróval és CSOK+-al vásárolható!Az Otthon Start hitel 2026. januártól igénybe vehető az ingatlanra, azonban 20%-os önerő szükséges!Ha szeretnél többet megtudni erről a kivételes ingatlanról, vagy kérdéseid lennének a vásárlással kapcsolatban, bátran keresd fel a hirdetésünket! Bizalommal állunk rendelkezésedre, hogy segítsünk megtalálni álmaid otthonát vagy befektetési lehetőségedet. Ne hagyd ki ezt a páratlan ajánlatot, hiszen ez a lehetőség gyorsan el fog tűnni a piacon!

Hajdú-Bihar megye, Hajdúsámson
 

Ingatlan adatai
Irányár: 63 900 000 Ft
Típus: ház
Kategória: eladó
Alapterület: 76 m2
Fűtés: -
Állapota: új
Szobák száma: 4
Építés éve: 2025
Szintek száma: -
További adatok
Telekterület: 317 m2
Kert mérete: 317 m2
Erkély mérete: 14 m2
Felszereltség: -
Parkolás: -
Kilátás: -
Egyéb extrák:  
-
Hirdető adatai
Hirdető neve: Otthon Centrum
Kapcsolattartó: Rákosné Tímea
Hirdető telefonszáma: +36 70 412 5026
Honlap: -

Üzenetet küldhet a hirdetőnek:
Az Ön neve:
Az Ön e-mail címe:
Üzenet: