Részletes leírás
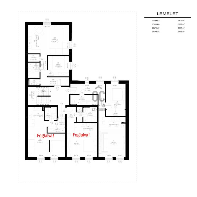
2 szobás 1 emeleti új építésű társasházban - lakás foglalható!Válogasson kedvére a különböző méretű és elrendezésű lakások között.Legyen Ön a tulajdonosa egy új építésű, szép lakásnak!7 lakásos társasház egy 417 m2-es telekre épül Balmazújváros Belvárosában.34 m2 - 57 m2-es lakások leköthetőek 20%-os önerővel, november 30-ig még ezen az áron. A társasház főfalai 30 N+F falazó blokkal készülnek, külső felületen 15 cm vastagságú AUSTROTHERM AT-N100 hőszigeteléssel, vakolt felülettel.A külső nyílászárók műanyagok 3 rétegű üvegezésű ablakokkal, redőnyökkel.Az épület fűtése gázkazánnal történik, a melegvíz ellátása gázüzemű kazánnal történik.A lakásokban padlófűtéses hőleadás lesz, mért hőmennyiség mérővel történik az egyéni elszámolás.A vételár tartalmazza az 5%-os ÁFÁ-t!Igény szerint további beállók vásárolhatók, melyek vételára 4 millió Ft, vagy garázs mely 7 milliós árat képvisel.A hirdetésben szereplő 1. emeleti, lakás 57 m2-es.Belső elosztása: előtér, konyha-étkező, nappali, 1 hálószoba, fürdőszoba, kamraKulcsrakész ára : 51.200.000 FtA megbízható kivitelező, számos referenciával.Minden korosztály számára ideális választás!Tervezett műszaki átadás: 2026 év vége (hatósági átadás 2027. március)Az ingatlanra CSOK+ 2 gyermekre és babaváró igénybevehető!A lakás az Otthona Start hitel által is finanszírozható min: 20%-os önerővel!További részletekért keressen bizalommal! Amennyiben a vásárláshoz hitelre van szüksége irodánkban teljes körű szolgáltatással várjuk!

Hajdú-Bihar megye, Balmazújváros
 

Ingatlan adatai
Irányár: 51 200 000 Ft
Típus: lakás (újépítésű)
Kategória: eladó
Alapterület: 57 m2
Fűtés: gáz (cirko)
Állapota: új
Szobák száma: 2
Építés éve: 2026
Szintek száma: -
További adatok
Telekterület: -
Kert mérete: -
Erkély mérete: -
Felszereltség: -
Parkolás: -
Kilátás: udvari
Egyéb extrák:  
-
Hirdető adatai
Hirdető neve: Otthon Centrum
Kapcsolattartó: Rákosné Tímea
Hirdető telefonszáma: +36 70 412 5026
Honlap: -

Üzenetet küldhet a hirdetőnek:
Az Ön neve:
Az Ön e-mail címe:
Üzenet: