Részletes leírás
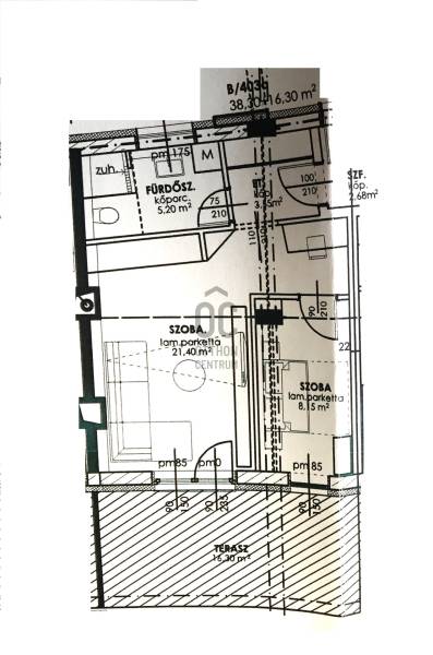
Belvárosi luxus társasházDebrecen abszolút Belvárosában, de mégis csendes övezetben, modern, egyedi megjelenésűű, liftes társasház épül a földszinten 4 üzlettel és a -1 szinten teremgarázs parkolókkal. A lakások között vannak földszinti kertkapcsolatosak, és penthouse jellegűek is. A projekt tervezésénél, az elsődleges szempont az otthonos, élhető lakások építése volt. Az épületben helyet kapó lakások mindegyike egyedileg kialakított tágas terekkel, jó funkcionalitással és nagy méretű loggiákkal, teraszokkal rendelkezik. A lakások minőségi anyagok felhasználásával készülnek, a legkorszerűbb 3 rétegű üvegezésű ablakokkal, hőszivattyús klímával ellátottak. A belvárosban található ingatlan pár perc sétára található a Nagytemplomtól, a Piactól és a Bevásárló központoktól. Egyéb információért hívjon bizalommal. Ez a 4. emeleti lakás 38,3 nm-es, nappali-étkező-konyha, + 1 szobás, 16,3 nm-es terasszal.Projekt bemutatása-

Hajdú-Bihar megye, Debrecen
 

Ingatlan adatai
Irányár: 65 308 000 Ft
Típus: lakás (újépítésű)
Kategória: eladó
Alapterület: 38 m2
Fűtés: távfűtés
Állapota: új
Szobák száma: 2
Építés éve: 2026
Szintek száma: -
További adatok
Telekterület: -
Kert mérete: -
Erkély mérete: 16 m2
Felszereltség: -
Parkolás: -
Kilátás: kertre néző
Egyéb extrák:  
-
Hirdető adatai
Hirdető neve: Otthon Centrum
Kapcsolattartó: Rácz Zsolt
Hirdető telefonszáma: +36 70 469 3726
Honlap: -

Üzenetet küldhet a hirdetőnek:
Az Ön neve:
Az Ön e-mail címe:
Üzenet: