Részletes leírás
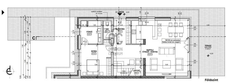
Debrecentől pár perces távolságra, Pallag irányában, új lakópark épül.A Nagyerdő közvetlen szomszédságában, nyolcholdas területen, 32 családnak nyújt otthont a lakópark.A telkek nagysága és elhelyezkedése lehetővé teszi, hogy olyan ingatlanok épüljenek, melyek elsődleges célja:- természetközeliség- intimitás- exkluzivitás- egyediség- zárt közösség.A teljesen közművesített telkeket térkövezett belső útról lehet megközelíteni.Fekvésének köszönhetően további építkezés a lakóparkon túl nem lesz, ezért nem kell tartania a túlzsúfolt lakókörnyezettől.Pallagon a pár éve működő Nemzetközi Iskola, óvoda, középiskola lehetőséget nyújt gyermekei számára a tanulás és sport igényeinek.AZ ÉPÍTKEZÉS BEFEJEZŐDÖTT!Az ikerházak 2.lakása: 147 nm alapterületű, nagy teraszos, nappali + 3 szobás, 433 nm-es telekrésszel.Földszint:- nappali étkezőkonyha kialakítással és kamrával (50 nm)- dolgozószoba (16 nm)- fürdőszoba épített tusolóval és káddal (8 nm) - külön mosdó kézmosóval (4 nm)- előszoba (11 nm)- terasz (32 nm)Emelet:- 2 hálószoba (14, 17 nm)- fürdőszoba tusolóval és káddal, valamint mosdóval ( 8 nm)- gardrób (3 nm)- mosókonyha, gépészet ( 6 nm)- közlekedő ( 6nm).Bankfüggetlen hitelügyintézést banki kollégánk teljeskörűen és ingyen bonyolítja Önnek irodánkban, da akár otthonában is!

Hajdú-Bihar megye, Debrecen
 

Ingatlan adatai
Irányár: 160 125 000 Ft
Típus: ház
Kategória: eladó
Alapterület: 147 m2
Fűtés: gáz (cirko)
Állapota: új
Szobák száma: 4
Építés éve: 2022
Szintek száma: -
További adatok
Telekterület: 433 m2
Kert mérete: 433 m2
Erkély mérete: 33 m2
Felszereltség: -
Parkolás: -
Kilátás: -
Egyéb extrák:  
-
Hirdető adatai
Hirdető neve: Otthon Centrum
Kapcsolattartó: Némethné Zsuzsa
Hirdető telefonszáma: +36 70 412 3861
Honlap: -

Üzenetet küldhet a hirdetőnek:
Az Ön neve:
Az Ön e-mail címe:
Üzenet: