Részletes leírás
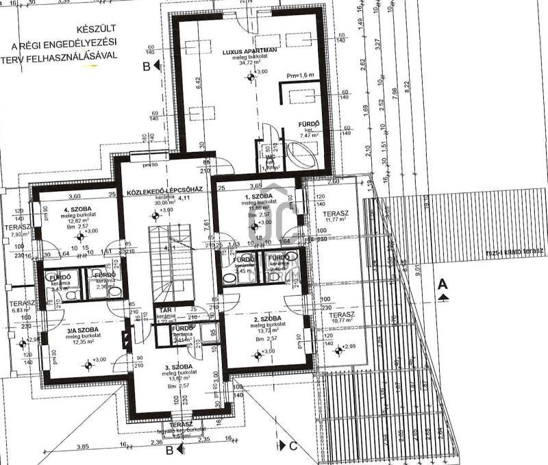
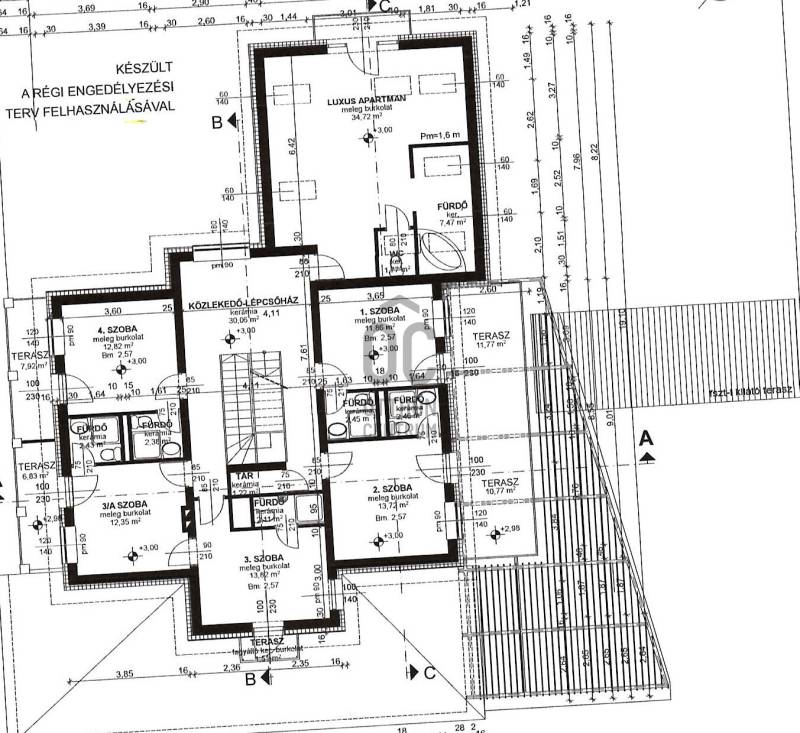
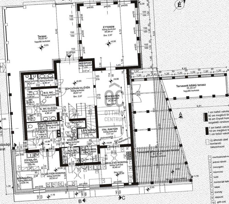
Pilisszentkereszt, DOBOGÓKŐ, „PLATÁN” panzió és étterem eladó A Platán Panzió és étterem jól bevezetett, rengeteg visszatérő vendéggel és közel 100%-os kihasználtsággal üzemel. PLATÁN PANZIÓ- ÉTTEREM - 928 nm 4 szinten- 3255 nm telek- 10 szoba/apartman saját fürdőszobákkal + teljes kiszolgáló kapacitással, parkolóval- luxus apartmanok + normál hotel szobák- étterem konyha + recepció + férfi/női mosdók- a konyha teljesen megújult , korszerű lett az elmúlt évben.- kettő terasz további lehetőséget ad a betérő vendégek fogadására, étkeztetésére- a teljes belső felújítás néhány évvel ezelőtt elkezdődött, nagy része megvalósult.- folyamatos korszerűsítés, felújítás továbbra is cél.- következő nagy beruházás a terasz újjá építése lesz.- a panzió wellness részleggel bővíthető, az előkészületek megtörténtek ehhez a tervek, engedélyek megvannak.- hőszivattyús fűtés „MITSHUBISHI ZUBADAN” hőszivattyúval - műanyag nyílászárók, 3 rétegű üveggel A Platán Panzió egész évben nyereségesen működik.A panzió magán tulajdonban van, az üzemeltető cég is megvásárolható. A befektetett összeg számítások szerint 7 év alatt megtérül.Több lehetőséget is felkínál a tulajdonos:- részletfizetéssel is eladó- a hotel résztulajdonban is eladó– a tulajdonos további segítséget nyújt a működésben.- A jelenlegi dolgozók szívesen dolgoznak utána is a panzióban, étteremben, akár munkavállalói szerződést is aláírnak évekre. -Ha Dobogókőn szeretnének élni is, akár az alatta utcában lévő a CSALÁDI HÁZ is megvásárolható további 250 Millió Ft-ért. ( A családi ház 2022- ben épült, új, modern, külön HRSZ. számon! )

Pest megye, Pilisszentkereszt
 

Ingatlan adatai
Irányár: 850 000 000 Ft
Típus: kereskedelmi/ipari ingatlan
Kategória: eladó
Alapterület: 928 m2
Fűtés: -
Állapota: -
Szobák száma: -
Építés éve: 1985
Szintek száma: -
További adatok
Telekterület: -
Kert mérete: -
Erkély mérete: -
Felszereltség: -
Parkolás: -
Kilátás: -
Egyéb extrák:  
-
Hirdető adatai
Hirdető neve: Otthon Centrum
Kapcsolattartó: Soproni Brigitta
Hirdető telefonszáma: +36 70 716 8491
Honlap: -

Üzenetet küldhet a hirdetőnek:
Az Ön neve:
Az Ön e-mail címe:
Üzenet: