Részletes leírás
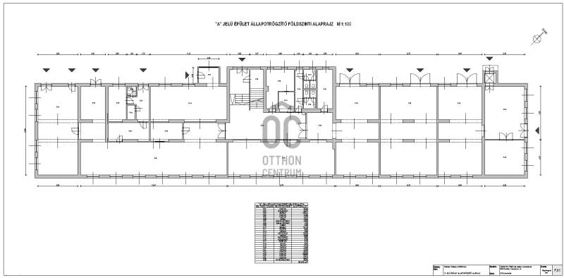
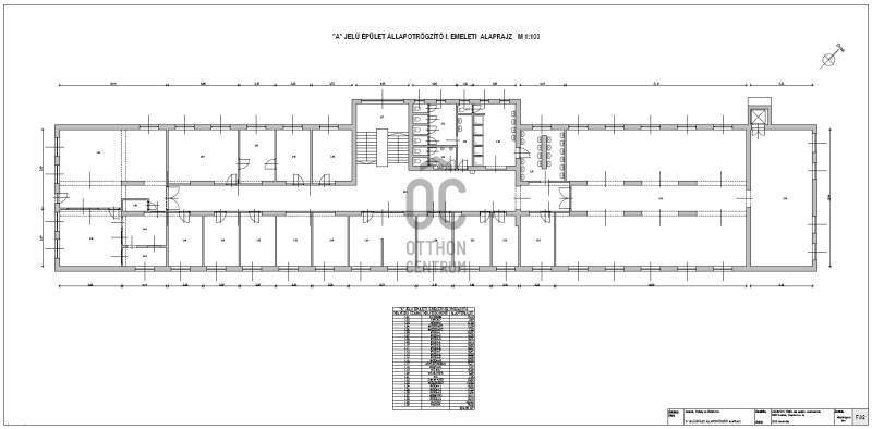
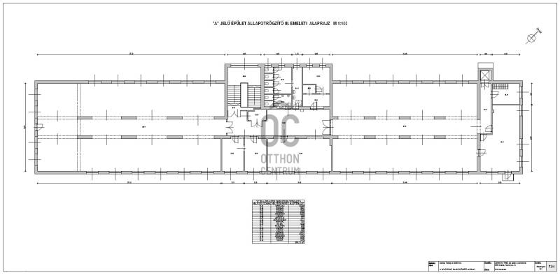
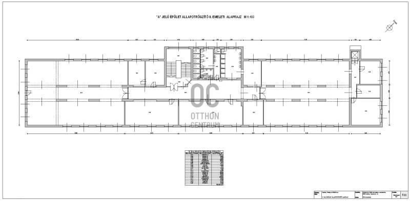
A Szolnokot elkerülő új M4 autópálya nyugati lejárójának közelében ELADÁSRA kínálom a 1200 nm2 nagyságú telken lévő 3800 nm2 összes alapterületű 4 szintes épületből álló telephelyet.A fő épület 4 szintes (földszint és 3 emelet), szintenként 950 nm2. Rendelkezik teherlifttel, amely rakodható az udvarról és az épületben lévő raktárból is. Az épület saját kazánházzal. 4 db kazánnal és radiátoros központi fűtéssel rendelkezik. Szintenként vannak női, férfi mosdók, zuhanyzók és öltözők. Valamikor varrodaként működött, szintenként két nagy varroda csarnokkal, előkészítő helységekkel, irodákkal. A telephely önálló áram-fogadóval rendelkezik, ahonnan földkábelen keresztül van elvezetve az épületekhez az áram. A telephely kiváló elhelyezkedése réven, Szolnok M4 felőli nyugati kapuja, számtalan hasznosítási lehetőséget hordoz magában.

Jász-Nagykun-Szolnok megye, Szolnok
 

Ingatlan adatai
Irányár: 140 000 000 Ft
Típus: kereskedelmi/ipari ingatlan
Kategória: eladó
Alapterület: 3 800 m2
Fűtés: -
Állapota: -
Szobák száma: -
Építés éve: 1970
Szintek száma: -
További adatok
Telekterület: -
Kert mérete: -
Erkély mérete: -
Felszereltség: -
Parkolás: -
Kilátás: -
Egyéb extrák:  
-
Hirdető adatai
Hirdető neve: Otthon Centrum
Kapcsolattartó: Szűcsné Rácz Erzsébet
Hirdető telefonszáma: +36 70 469 3171
Honlap: -

Üzenetet küldhet a hirdetőnek:
Az Ön neve:
Az Ön e-mail címe:
Üzenet: