Részletes leírás
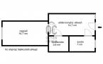
Az I. kerületben, Víziváros legszebb részén eladó lakás, páratlan panorámával- Budapest egyik leghangulatosabb terén, a Corvin téren található ingatlan- jó állapotú társasház 3. emeletén- kiváló elosztású, 1,5 szobás, világos lakás- belépve előtér, konyha és étkező található- a 7 nm-es, ablakos félszoba a csendes belső udvarra néz, reggel úszik napfényben- a nappaliból lélegzetelállító panoráma nyílik a Halászbástyára és környezetére- a nappali falai hangszigeteltek, Baxi gáz cirkó - a tulajdoni lapon 1 szobás lakás, jelenlegi elosztását a 10 évvel ezelőtti felújítás során nyerte el- a közös költség 11 200 Ft- tartalmazza a vízhasználatot, a teljes rezsi 26 500 Ft- a Duna- parti sétány, panorámával a Parlamentre 100 m-re található- pár perc sétára számos busz és villamosjárat- boltok, éttermek, kávézók a közelben- tehermentes ingatlan Ideális választás lehet mindazok számára, akik egy kényelmes, jól megközelíthető otthont keresnek, vagy éppen befektetési lehetőséget fontolgatnak a fővárosban. A Víziváros egy olyan hely, ahol a történelmi atmoszféra és a modern életstílus találkozik. Az ingatlan elhelyezkedése lehetővé teszi, hogy a város kulturális és szórakoztató programjait könnyedén élvezhesse, miközben otthona a nyugalom szigete marad. Amennyiben felkeltette érdeklődését ez a kivételes ingatlan, ne habozzon kapcsolatba lépni velem. Szívesen válaszolok minden kérdésére, és segítek Önnek megtalálni a tökéletes otthont vagy befektetési lehetőséget Budapest egyik legkeresettebb városrészében. Kérem, ne habozzon, hiszen az ilyen lehetőségek gyorsan elkelnek!

Budapest, I.kerület
 

Ingatlan adatai
Irányár: 94 900 000 Ft
Típus: lakás (tégla)
Kategória: eladó
Alapterület: 42 m2
Fűtés: gáz (cirko)
Állapota: -
Szobák száma: 2
Építés éve: 1920
Szintek száma: -
További adatok
Telekterület: -
Kert mérete: -
Erkély mérete: -
Felszereltség: -
Parkolás: -
Kilátás: utcai
Egyéb extrák:  
-
Hirdető adatai
Hirdető neve: Otthon Centrum
Kapcsolattartó: Pleck Márta
Hirdető telefonszáma: +36 70 716 8896
Honlap: -

Üzenetet küldhet a hirdetőnek:
Az Ön neve:
Az Ön e-mail címe:
Üzenet: