Részletes leírás
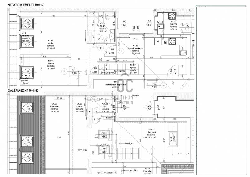
VII. New York Kávéházhoz közel, liftes társasház legfelső 4. emeletén új építésű belső kétszintes lakás eladó.-nettó 77,3nm, -alsó szint: 1 nappali, 1 háló, fürdőszoba +Wc, konyha étkezővel,-emelet: hálószoba, mosdó, gardrób helyiség.- Igényes kivitelezés,- hűtő-fűtő klíma,- csendes, világos- utcai nézetA közelben minden megtalálható, ami a kényelmes belvárosi életet szolgálja.#belváros#újépítés#modern#belsőkétszint#csendes#jóközlekedés#3szoba#

Budapest, VII.kerület
 

Ingatlan adatai
Irányár: 118 900 000 Ft
Típus: lakás (újépítésű)
Kategória: eladó
Alapterület: 77 m2
Fűtés: elektromos
Állapota: új
Szobák száma: 3
Építés éve: 1930
Szintek száma: -
További adatok
Telekterület: -
Kert mérete: -
Erkély mérete: -
Felszereltség: -
Parkolás: -
Kilátás: udvari
Egyéb extrák:  
-
Hirdető adatai
Hirdető neve: Otthon Centrum
Kapcsolattartó: Sarus Valéria
Hirdető telefonszáma: +36 70 388 5241
Honlap: -

Üzenetet küldhet a hirdetőnek:
Az Ön neve:
Az Ön e-mail címe:
Üzenet: