Részletes leírás
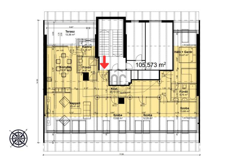
Ha unja már a túlárazott tucat lakásokat és szeretne egy olyan ingatlan tulajdonosa lenni, ami valóban kiemelkedik a tömegből, értékálló és egyedi, akkor ez a lehetőség Önre vár!A KÖRNYEZETRŐL:➡️ Budapest, XI. kerület, Lágymányos.➡️ Móricz Zsigmond körtér 10 percre.➡️ Tömegközlekedés és infrastruktúra kiváló.➡️ Az Allee bevásárlóközpont 5 perces sétatávolság.➡️ A közelben minden elérhető, ami a hétköznapokhoz szükséges.➡️ Parkolás az utcán, fizetős övezetben.A HÁZRÓL:✅ 1942-ben épült, 7 emeletes, 28 db lakást magában foglaló téglaépület✅ Külső homlokzata jó, lépcsőháza átlagos állapotú.✅ A közös részeken az ablakok pár éve lettek kicserélve modern, műanyag keretes, hőszigetelt nyílászárókra.✅ 2023-ban fejeződött be a társasház belső homlokzatának szigetelése.✅ Lakóközössége kifejezetten közvetlen, csendes és barátságos.AZ INGATLANRÓL:✅ Jelenleg a TETŐTÉR BEÉPÍTETLEN, a kivitelezési munkálatok a leendő tulajdonos igényeinek figyelembevételével kezdődnek el.✅ A kivitelezés során új acélvázas tetőszerkezet kerül kialakításra, 30 cm-es kőzetgyapot szigeteléssel, Tondach cserepezéssel.✅ A meglévő, építész iroda által készített tervek szerint nappali + 4 szobás, teraszos lakás kerül kialakításra.✅ 11 db Fakro rendszerű, 3 rétegű, fa tetőtéri ablak kerül beépítésre.✅ A belső válaszfalak 10-es ytong-ból vagy igény szerint gipszkartonból kerülnek kialakításra,✅ A belmagasság 265 cm lesz, a szerelvények az álmennyezet felett, illetve a padlózatban kerülnek elvezetésre.✅ A teljes elektromos hálózat a mai kornak megfelelő paraméterekkel kerül kialakításra.✅ Az ingatlan fűtése a leendő vevő egyedi igényének megfelelően klímával vagy hőszivattyúval lesz megoldva.✅ A kivitelezés során kialakításra kerül egy 13 m2-es terasz, mely az épületek közötti csendes belső zöld terület, illetve a Gellért hegy felé fog nézni.✅ A kerámia burkolatok, lamináltpadló, kapcsolók, szaniterek, megbeszélés szerint a vételár részét képzik.AZ INGATLAN MEGTEKINTHETŐ:➡️ személyesen,➡️ online személyes bejelentkezéssel.LÁTVÁNYTERVEK:✅ Az ingatlanról készült látványtervek nem a végleges állapotot, hanem a lakásban rejlő lehetőségeket kívánják bemutatni.✅ A végleges elosztás, illetve a felhasznált burkolatok egyedileg a leendő tulajdonos igényeinek megfelelően kerülnek véglegesítésre.FINANSZÍROZÁSBAN (ONLINE ÜGYINTÉZÉSSEL IS) SEGÍTÜNK:❗ Bank-független hitelcenterünk díjmentesen versenyezteti minden bank és hitelintézet ajánlatát.❗ Önnek nincs más dolga, mint beszélgetni munkatársunkkal, majd a megversenyeztetett ajánlatokból kiválasztani a hosszútávon is a legmegfelelőbb konstrukciót.❗•Szakértőink 20 éves szakmai tapasztalattal és egyedi igényekre szabott, fogyasztóbarát lakáshitelekkel, babaváró hitellel, teljes körű CSOK PLUSZ ügyintézéssel várják Önt.❗ Előre egyeztetve akár a normál munkaidő után is.További információkért, kérem keressen bizalommal!

Budapest, XI.kerület
 

Ingatlan adatai
Irányár: 174 000 000 Ft
Típus: lakás (újépítésű)
Kategória: eladó
Alapterület: 106 m2
Fűtés: -
Állapota: új
Szobák száma: 5
Építés éve: 1942
Szintek száma: -
További adatok
Telekterület: -
Kert mérete: -
Erkély mérete: 13 m2
Felszereltség: -
Parkolás: -
Kilátás: kertre néző
Egyéb extrák:  
-
Hirdető adatai
Hirdető neve: Otthon Centrum
Kapcsolattartó: Baucsek Károly
Hirdető telefonszáma: +36 70 716 8166
Honlap: -

Üzenetet küldhet a hirdetőnek:
Az Ön neve:
Az Ön e-mail címe:
Üzenet: